新盤樓書|KOKO MARE面積310至1078方呎 標準戶兩房佔近80%
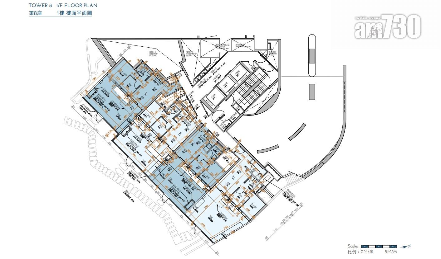
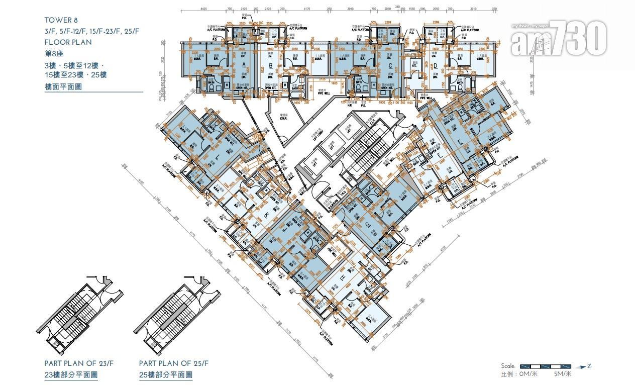
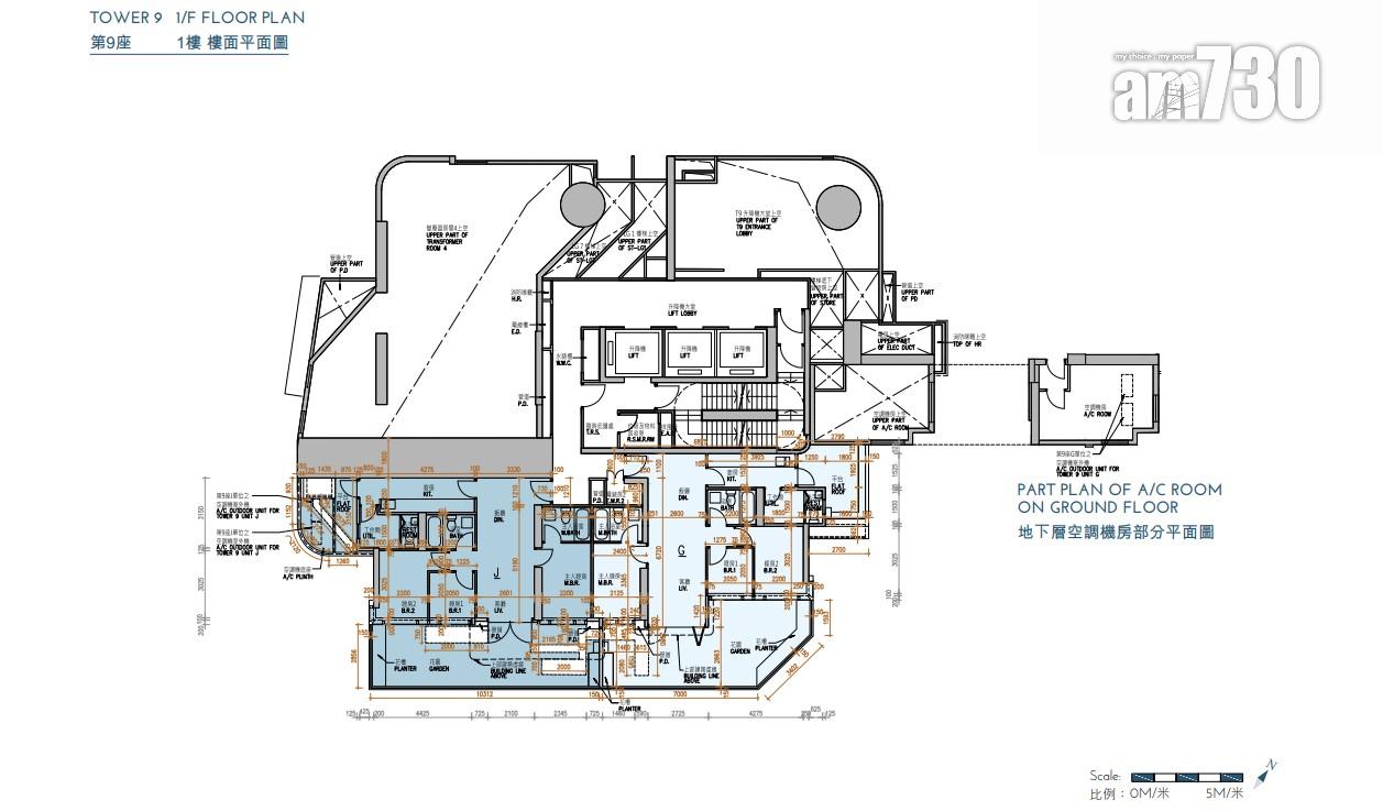
位於藍田高嶺道3號、會德豐地產KOKO HILLS第3B期KOKO MARE今天(16日)上載售樓說明書,由第8座及第9座組成,樓高同為22層,提供444伙。第8座標準樓層設11伙,第9座標準樓層設10伙,每層備有3部升降機。
該盤單位戶型涵蓋一房至三房,當中標準戶僅提供一房及兩房間隔,一房開放式廚房提供60伙,實用面積介乎310至334方呎;兩房涉350伙,佔全盤約79%,細分為開放式廚房及獨立廚房,實用面積介乎416至529方呎。至於餘下34伙為連平台、天台或花園特色戶,當中包括3伙三房間隔的特色戶,實用面積介乎724至1,078方呎。
全盤面積最細為第9座3至26樓的F室,實用面積310方呎,一房間隔。面積最大為第9座26樓G室,為天際平台特色戶,三房間隔,實用面積1,078方呎,連171方呎平台及740方呎天台。
單位布局方面,第8座A至D單位,以及第9座A至D及K單位,全部都為兩房(梗廚)及兩房(開放式廚房)單位,中高層可飽覽維港景觀,低層單位可享內園景及50米泳池雙重景觀。
至於向東南單位:有9柱單位向東南,即8座H至L單位,以及9座E至J單位,佔單位總數近半,可飽覽維港鯉魚門段及油塘灣景觀,即使是低層單位都能欣賞海景,當中更包括2個一房單位。另外,向北單位即8座E、F、G單位,享翠綠山景,中高層能望見曬草灣游樂場景觀。
KOKO MARE預計關鍵日期為2024年6月30日,樓花期長約15個月。



















