新盤樓書|觀塘Bal Residence提供156伙 面積300至793方呎 主攻一房
位於觀塘恆安街18號、由麗新發展(488)與市區重建局合作的觀塘Bal Residence,今日(23日)正式上載售樓說明書,屬單幢式物業,提供156伙,單位實用面積介乎300至793方呎,戶型涵蓋一房至三房。
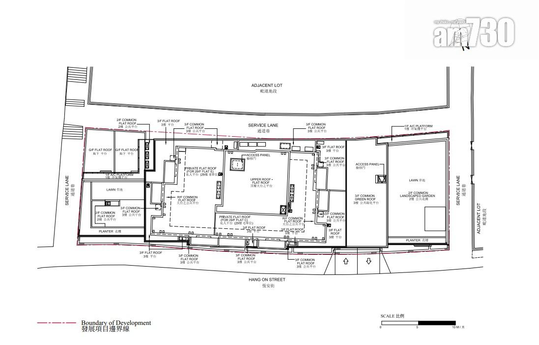
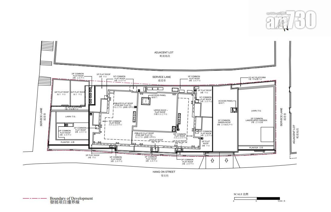
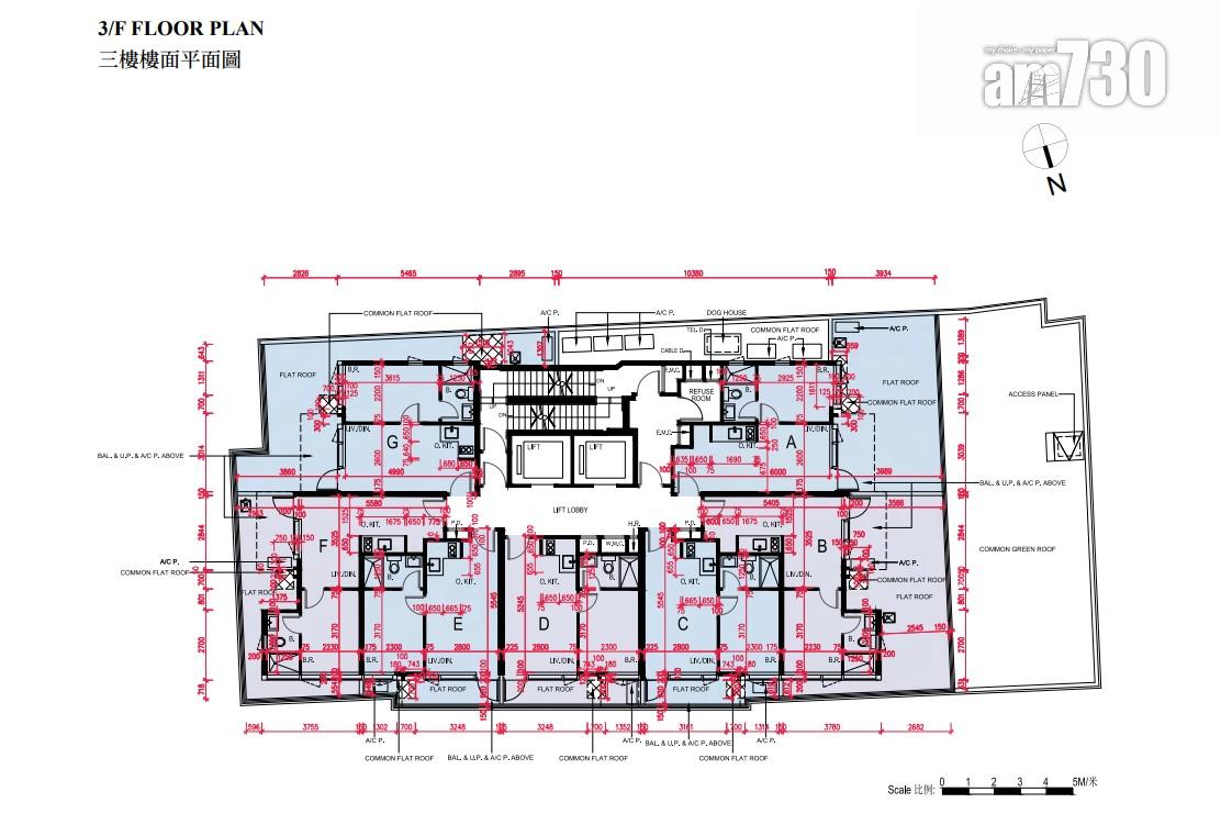
以項目標準樓層為例,1層7伙設計,設有2部升降機。3樓至26樓單位全屬一房間隔,實用面積介乎300至349方呎;而3樓屬連平台特色單位,平台面積介乎43至280方呎。
全盤面積最細單位為3樓A室,實用面積300方呎,另連272方呎平台,一房間隔。面積最大單位為29樓C室,實用面積793方呎,另連464方呎天台,屬三房連套房加儲物室連廁所間隔。
「Club Balans」為Pet Friendly會所
項目設有總面積約2,485方呎會所「Club Balans」,為Pet Friendly會所,特別設有Pet Garden等設施,令住客與愛寵共享歡樂時刻。另設有12個停車位,當中7個為住宅停車位,1個住宅電單車停車位。
Bal Residence預計關鍵日期為2024年3月31日,樓花期長約13個月。售樓處及示範設於油塘崇信街6號地下,設有2個一房交樓標準示範單位。













