東邊街九號樓書|設76伙 面積227至508呎 一房佔八成|西營盤新盤
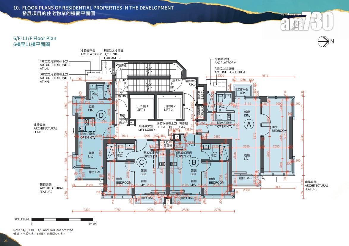
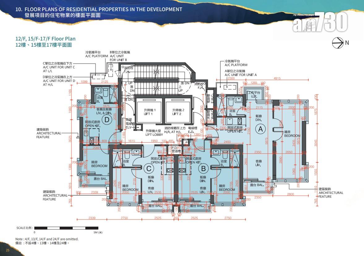
由萬麗(香港)發展、佳兆業資本「代建代管代售」的西營盤新盤「東邊街九號」,為1座樓高23層住宅物業,提供76伙,戶型涵蓋開放式、一房及兩房,實用面積介乎227至508方呎,當中主打一房佔約80%。
據樓書顯示,標準樓層設有4伙,備有兩部升降機。全盤面積最細單位為5樓D室,實用面積227方呎,連54方呎平台,開放式間隔,長形開則,以開放式廚房分隔客廳及飯廳。至於面積最大為6至17樓A室,實用面積508方呎,一房開放式廚房間隔,採用雙門設計。
地下至2樓設有商舖
「東邊街九號」不設住客停車位,地下至2樓設有商舖,3樓為健身室,住客會所面積399方呎。
發展商透露,項目已獲批入伙紙,短期內公布首張價單,定價會參考港島區及鄰近鐵路站樓盤,開價後會開放現樓示範單位予公眾參觀,最快7月內開售。項目鄰近港鐵西營盤站A2出口,步行一分鐘即可抵達,5分鐘迅達中環站 ,途經3站可轉乘6綫,貫通多個商業及消閒地標。此外,項目傲踞各個樞紐,亦連接各大交通幹道,只需5分鐘即可到達中環核心商業區。
















