柏蔚森II樓書出爐 提供750伙 兩房佔逾86% 一戶型首度供應|啟德新盤
由新世界發展(017)及遠東發展(035)合作的「柏蔚森」最新上載壓軸一期「柏蔚森II」售樓說明書,提供750伙,實用面積介乎262至451方呎,戶型涵蓋一房至三房,主打兩房佔全盤逾86%;預計將於短期推出市場。
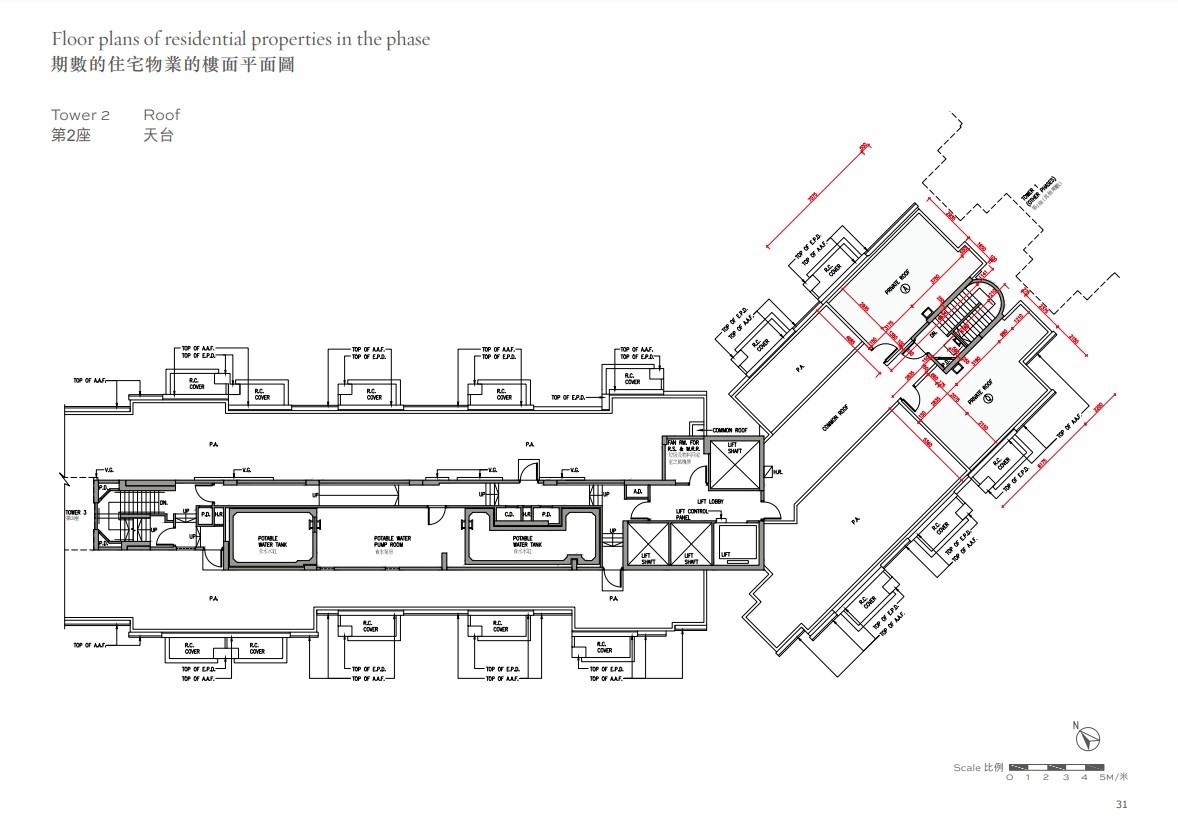
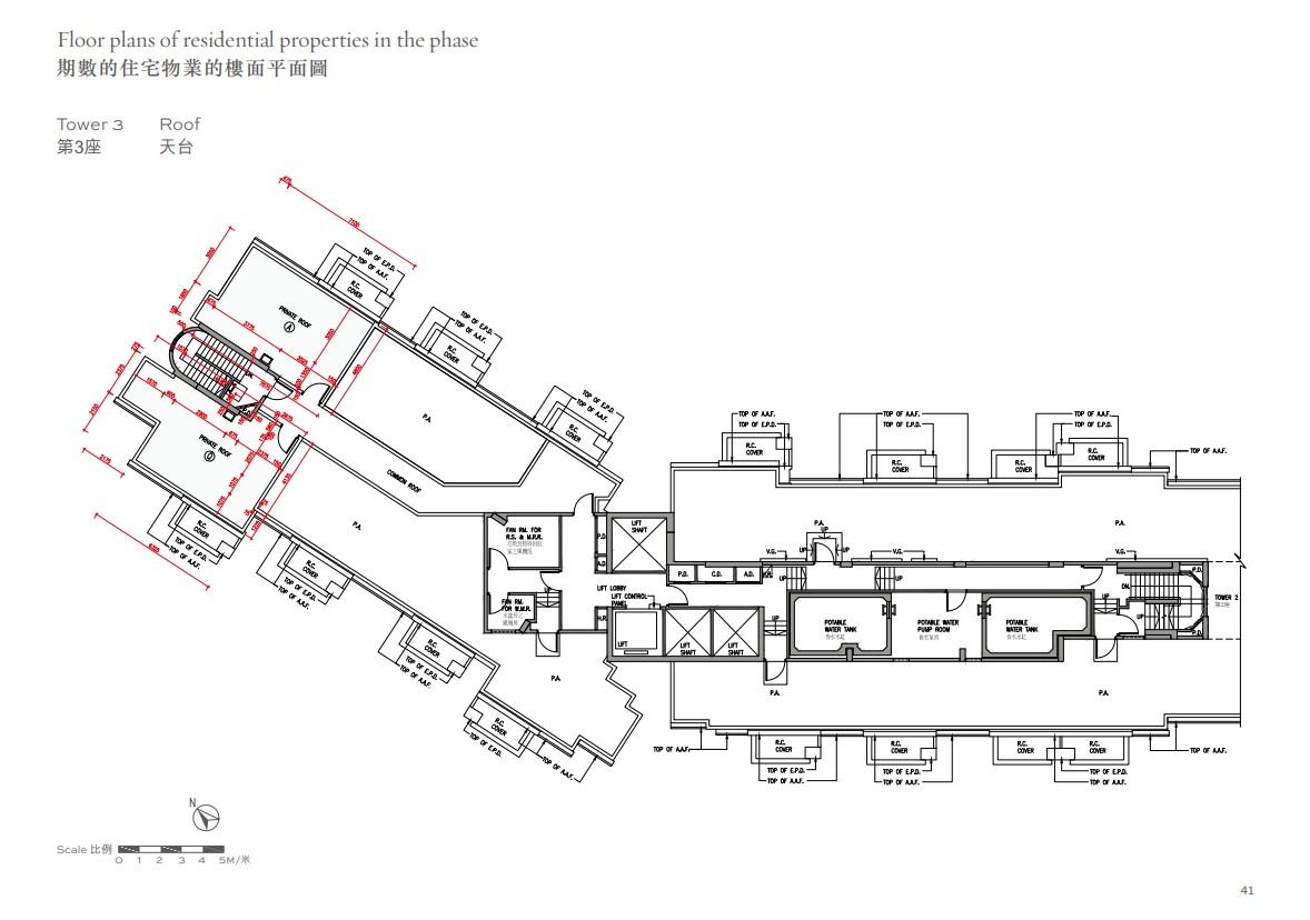
「柏蔚森II」屬整個項目的第2座及第3座,發展商指,今期為現時項目最貼近維港,享開揚維港景緻,故第3座命名為「VICTORIA FOREST」,第2座命名為「HARBOUR FOREST」,以凸顯「柏蔚森II」VICTORIA HARBOUR FOREST獨特優越賣點,珍貴罕有。
「柏蔚森II」戶型多元化,主打兩房單位,佔全盤逾86%;當中首度登場的兩房一套單位,實用面積由447至451方呎,而兩房標準單位實用面積由381至409方呎,兩房連書房單位實用面積437至443方呎。另一房標準單位實用面積介乎262至287方呎,而連天台特色單位實用面積介乎437至451方呎。
單位面積由262至451呎
據樓書顯示,「柏蔚森II」每座標準樓層有15伙,設有4部升降機。全盤面積最細單位為第2座及3座F室,實用面積同為262方呎,一房間隔;而面積最大單位為第3座3至29樓A室,實用面積451方呎,屬首次登場的兩房一套間隔,當中29樓A室外連313方呎天台。
至於項目設有81個車位,住戶與車位比例為9.3比1,即約10戶爭1個車位,;預計關鍵日期為2025年8月31日,樓花期長約11個月。
「柏蔚森II」屬整個項目的第2座及第3座,發展商指,今期為現時項目最貼近維港,享開揚維港景緻。




















