王惠貞(右)表示,「泰峯」單位戶型涵蓋開放式至三房間隔,實用面積由235至3,415方呎。
由王新興集團發展、位於九龍灣觀塘道55號重建項目「泰峯」周一(4日)正式上載售樓說明書,提供807伙,單位戶型涵蓋開放式至五房間隔,實用面積由235至3,415方呎。集團董事總經理王惠貞表示,項目展銷廳工程進展順利,計劃短期開放參觀,銷售部署如箭在弦,項目預計關鍵日期為2025年6月底。
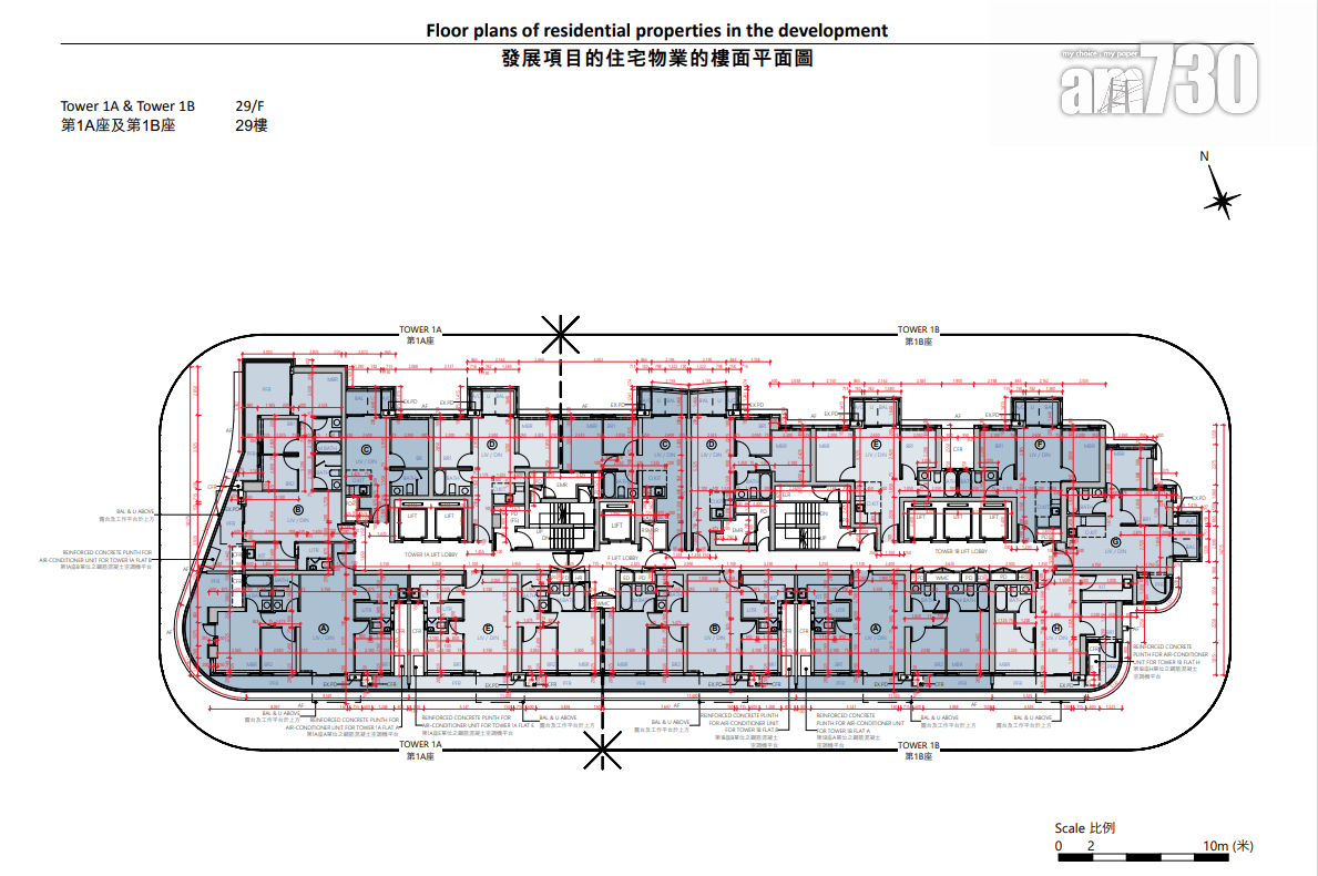
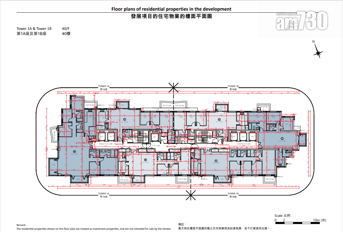
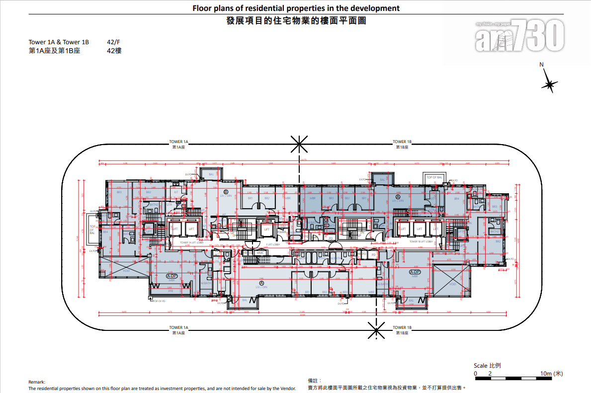
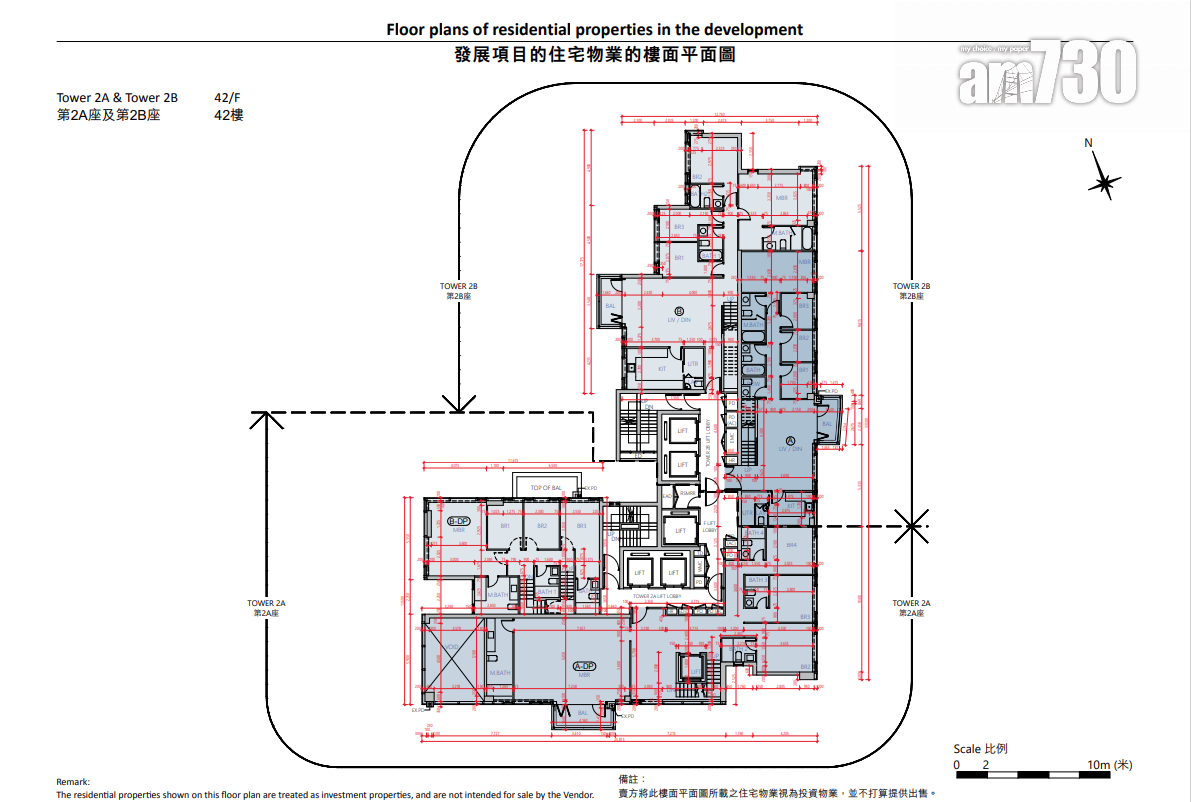
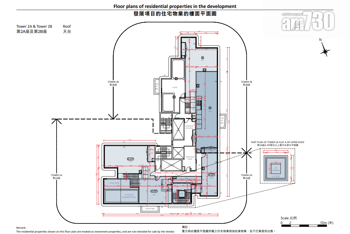
據樓書顯示,項目由第1座及第2座樓高40層的住宅大樓組成,各座細分為相連A、B兩翼。第1A及1B標準樓層每層設14伙,及6部升降機;第2A及2B標準樓層每層設14伙,及5部升降機。另外,項目基座設有3層商業樓面,王惠貞透露,樓面面積超過5萬方呎,哈羅香港國際學校幼兒園已承租商場約一半面積。
開放式由273方呎起
戶型分布方面,標準單位涵蓋開放式至三房間隔,實用面積介乎273至774方呎,其中兩房421伙最多,佔單位總數約52.2%,實用面積介乎428至671方呎;一房涉173伙,實用面積336至379方呎;三房提供103伙,實用面積560至774方呎,亦設64伙開放式,實用面積273至287方呎;另有46伙特色戶,實用面積由235至3,415方呎,連天台面積由629至1,258方呎,平台面積由20至236方呎。
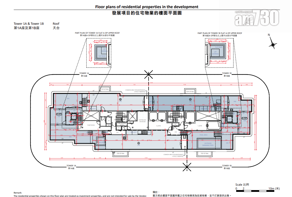
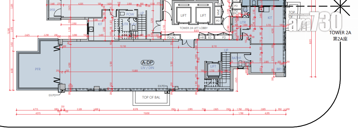
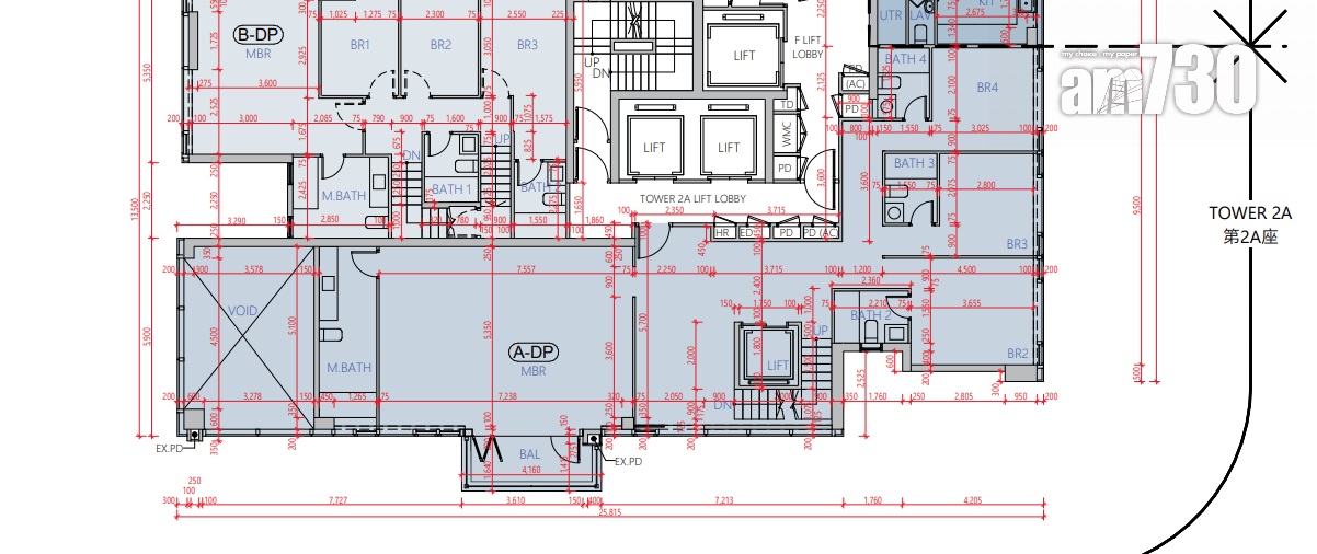
全盤面積最細單位為2B座5樓F室,開放式間隔,實用面積235方呎,連81方呎平台;面積最大則為2A座41至42樓A-DP室,屬頂層複式戶,五房間隔,實用面積3,415方呎,連200方呎平台及1,258方呎天台,另設私人游泳池。
「泰峯」停車場設於地庫1樓及2樓,共提供94個住宅停車位。至於交通,王惠貞表示,項目步行約數分鐘即達港鐵彩虹站,驅車約5分鐘直達觀塘。



























