深水埗新盤|喜.揚樓書出爐 面積183方呎起
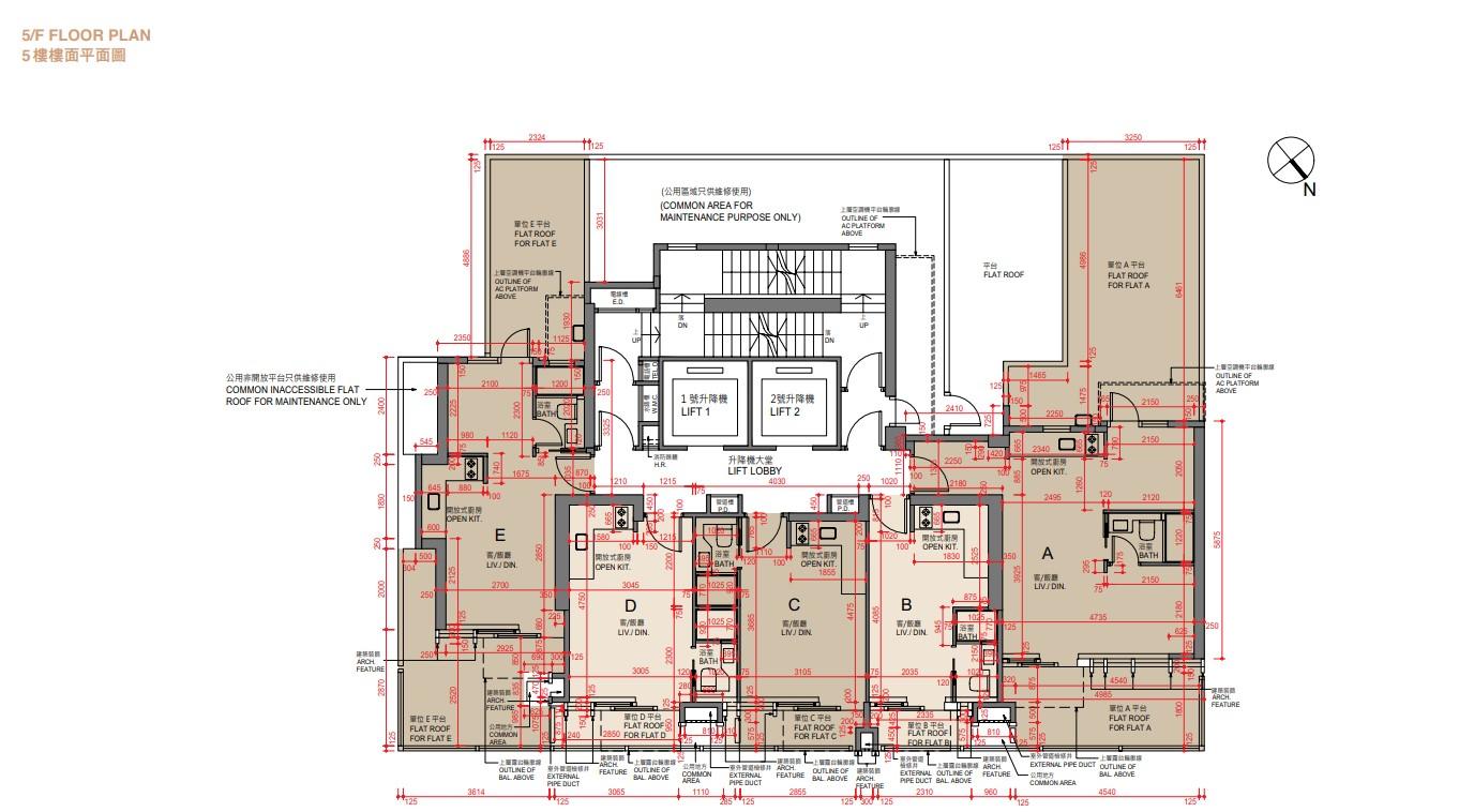
市區單幢式全新盤加入本月搶客戰,喜雋發展深水埗喜.揚今日(2日)上載售樓說明書,提供83伙,實用面積由183至429方呎,涵蓋開放式至兩房間隔,當中開放式單位共50伙,佔全盤約六成。
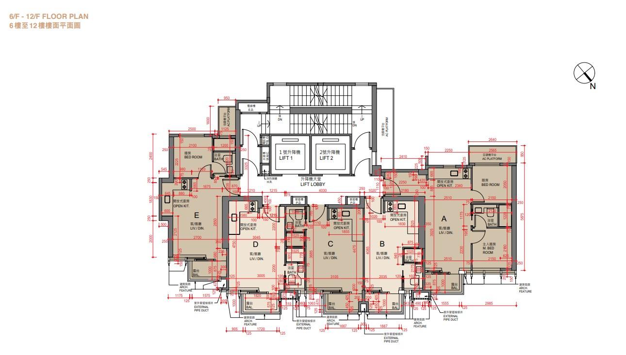
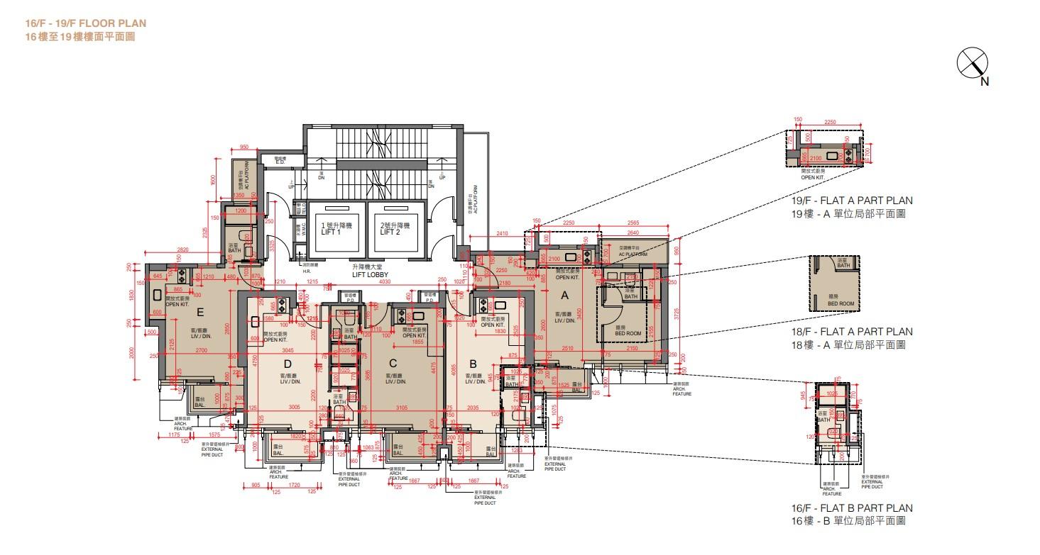
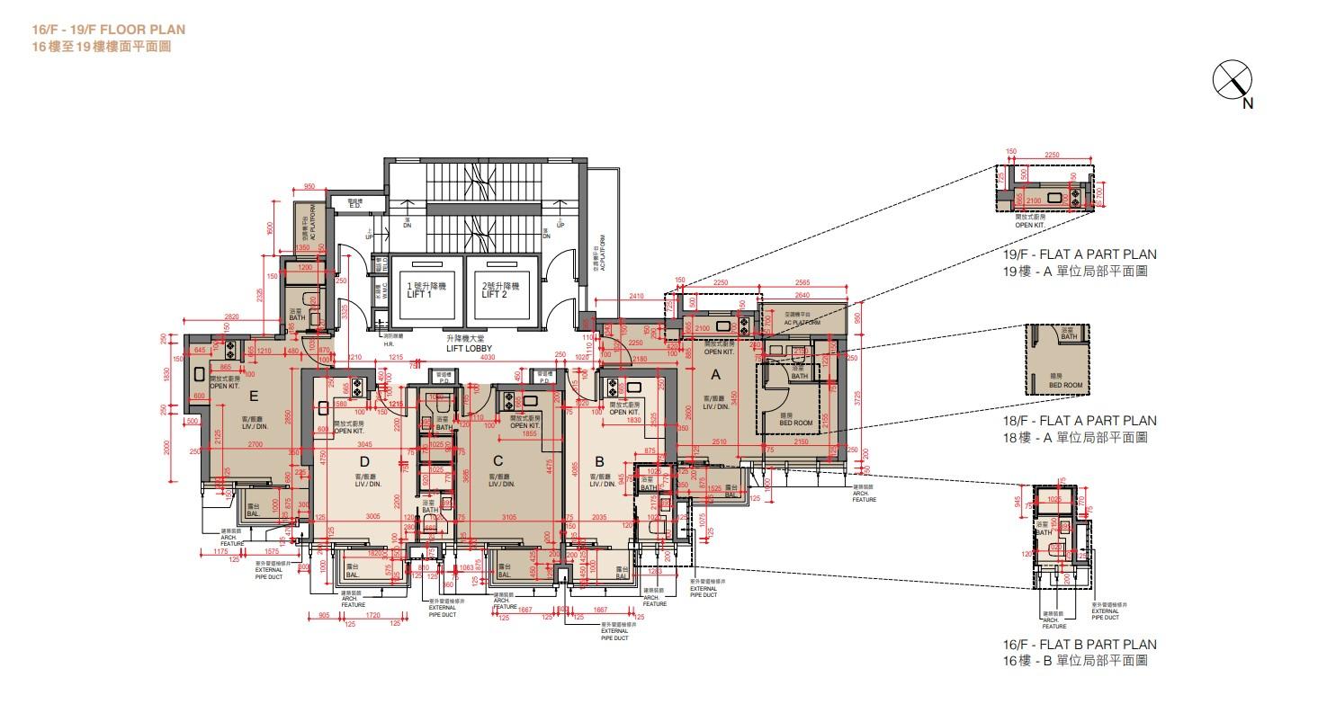
喜.揚樓高21層,當中住宅樓層佔18層,基座商場設於地下及1樓,住客休閑設施設於2樓。戶型分布方面,開放式單位共50伙,實用面積183至368方呎;一房單位共16伙,實用面積274至297方呎;一房加書房單位佔8伙,實用面積305至322方呎;兩房單位共9伙,實用面積391至429方呎。另備有9伙特色單位,包括7伙平台特色戶及2伙內置專屬樓梯的頂層連天台特色戶。
據樓書顯示,最細單位為5樓B室,實用面積183方呎,附連23方呎平台,開放式間隔。最大單位為25樓A室,實用面積429方呎,附連158方呎平台、290方呎天台及59方呎梯屋,兩房間隔。
設一房交樓標準示範單位
喜.揚示範單位及售樓處設於長沙灣中國船舶大廈,設有1個交樓標準的一房示範單位,售樓處現正積極籌備中,有望於短期內開放予公眾參觀,發展商早前透露,項目部署月內推售,預計入伙日期為2023年7月31日,樓花期約14個月。
中原地產榮獲發展商委託獨家代理喜.揚,為配合項目銷售,中原地產特意於深水埗桂林街設立項目專門店,面積逾700方呎。

















