滶晨樓書出爐 設447伙 最大複式戶3120呎附私人泳池|黃竹坑新盤
新世界發展(017)、帝國集團、資本策略地產(497)、麗新發展(488)及港鐵(066)合作發展的黃竹坑站港島南岸第5A期發展項目「滶晨」上載售樓說明書,提供447伙,樓高37層,屬整個項目的第1座,細分為1A及1B兩翼,單位戶型涵蓋兩房至五房,實用面積介乎408至3,120方呎,預計關鍵日期為2026年11月30日。
發展商以樓層細分為兩大區域,29樓及以上為「BAYSIDE SUITE」,而28樓及以下為「BAYSIDE RESIDENCE」,大部分單位可享深水灣及遠眺壽臣山景觀。
標準單位設有426伙,間隔涵蓋兩房至四房,當中兩房佔257伙最多,提供開放式廚房及梗廚兩款戶型,實用面積介乎455至517方呎。其次為三房佔105伙,戶型為三房一套加工作間連洗手間,設私人升降機前廳,實用面積介乎826至952方呎。四房提供64伙,戶型為四房雙套加工作間連洗手間或工人房連洗手間,設私人升降機前廳,實用面積介乎1,258至1,706方呎。
9伙複式特色戶
項目設有21伙特色單位,實用面積介乎408至3,120方呎,包括全盤面積最細的第1B座5樓E室,實用面積408方呎,連201方呎平台,兩房間隔。
至於有9伙為複式特色單位,分別有7伙三房一套+開放式廚房+工作間連洗手間,實用面積介乎1,016示1,083方呎;1伙五房三套+工人房連洗手間+私人升降機前廳+游泳池+平台,實用面積2,871方呎。
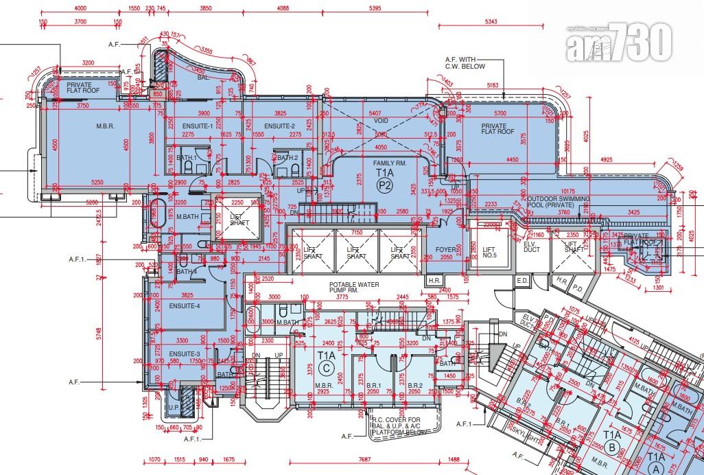
另1伙五房五套+工人房連洗手間+私人升降機前廳+游泳池+平台,實用面積3,120方呎,連932方呎平台,為DEEP WATER MANOR第1A座41和42樓P2單位,客廳採用中空設計,樓底高度達6.5米,並備有11米乘5.8米大廳,此單位除屬全盤面積最大外,亦為目前港島南岸項目面積最大。
「滶晨」提供119個住宅停車位,提供總面積逾1.8萬方呎住客會所。據發展商介紹,「滶晨」為港島南岸項目中唯一擁雙會所,會所由設計大師Martin Brudnizki主理,會所內設有瑜伽室、琉璃健身室、童享樂園等適合不同年齡住客的活動空間。項目採用結合貴族元素的新藝術風格設計,並以瑰麗花園為概念,令人猶如置身於叢林之中,感覺脫俗而奢華,同時又可享受到交通的便捷,與港鐵金鐘站及中環核心商業區僅數個港鐵站之隔。
























