灣仔One Wood Road提供42伙 兩房標準戶佔九成 面積460呎起|新盤樓書
位於灣仔活道1號、由盈信控股發展的灣仔新盤「One Wood Road」已屆現樓,項目今日(17日)正式上載售樓說明書至一手住宅物業銷售網,屬單幢式物業,提供42伙,實用面積由460至1,284方呎,涵蓋兩房至三房間隔,主打兩房佔全盤約九成。
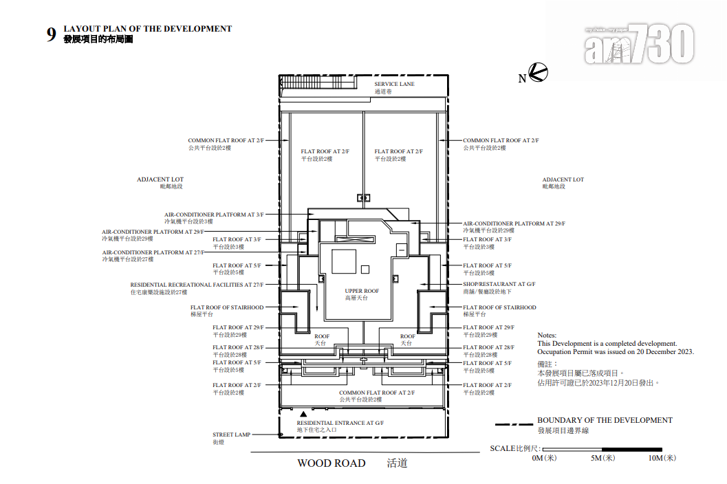
據樓書顯示,該物業樓高26層,2樓以上為住宅部分,每層設有2伙及2部升降機。其中標準單位涉及38伙,位於第3至26樓,實用面積均為460方呎,全數屬兩房間隔。
提供4伙複式戶
「One Wood Road」另提供4伙複式單位,實用面積由940至1,284方呎,均屬三房間隔,分別為2樓及3樓復式單位,連687方呎及705方呎平台;28樓及29樓複式單位,連48方呎平台,以及263方呎和320方呎天台,住戶可由室內樓梯前往。
全盤面積最大單位為2及3樓複式A室,實用面積1,284方呎,三房間隔,連705方呎平台。項目不提供停車位,地下層為商業樓面,設有商鋪及餐廳;第27樓設有多用途室及健身房。
翻查資料,盈信控股曾於2018年以底價4.85億元成功收購該項目業權,以最高可建樓面面積約4.2萬方呎計算,每方呎樓面地價約1.15萬元。
即睇灣仔One Wood Road最新資訊 (House730)
「One Wood Road」屬單幢式物業,提供42伙,實用面積由460至1,284方呎。(資料圖片)














