瑧爾公布樓書 提供63伙一房及兩房 面積212至380呎|佐敦新盤
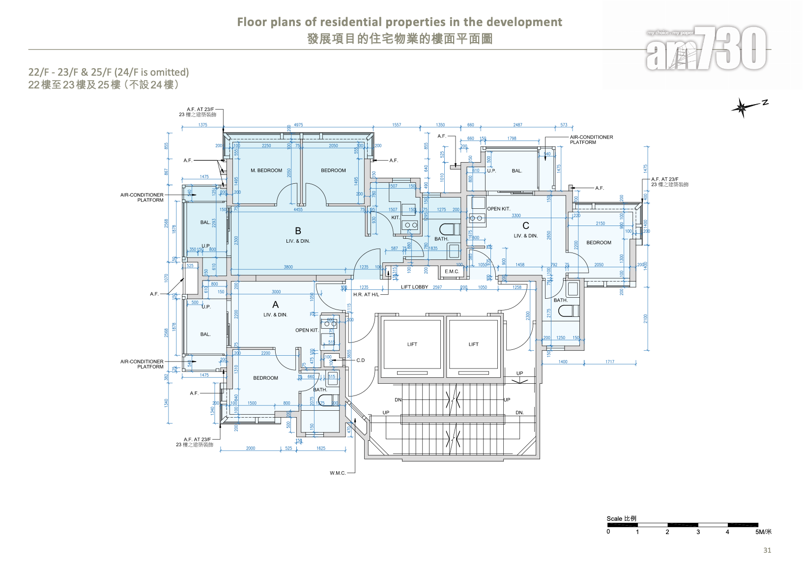
新世界發展(017)旗下佐敦「瑧爾」上載售樓說明書,提供63伙,包括57伙標準單位,以及6伙特色單位,全屬一至兩房戶,包括一房連開放式廚房、兩房連開放式廚房及兩房連梗廚,實用面積由212至380方呎。
戶型分佈包括兩房連梗廚,實用面積380方呎;兩房連開放式廚房,實用面積336方呎;一房連開放式廚房,實用面積249至 259 方呎;以及特色單位,實用面積212至 380方呎。
全盤最細單位為2樓A室,實用面積212方呎,連132方呎平台;全盤最大單位為26樓B室,實用面積380方呎,連147方呎天台。
「瑧爾」作為近10年最近高鐵站全新住宅項目,自命名後市場反應非常熱烈,短短數天已收到大量查詢,當中不乏資深投資者和頻繁穿梭香港及內地的港漂專才,因此本周將會於內地進行一系列的軟銷。項目的示範單位準備工作已進入最後階段,展銷廳將於短期內開放予VIP及公眾參觀,並於本月內推售。
根據差估署公布的9月份私樓租金回報率,431方呎下的A類細單位,回報率穩守3.7厘,更是連續4個月處於該水平,是各類單位中回報率最高,相信未來有機會突破4厘。而「瑧爾」全數單位均為431方呎以下,租金走勢將自然跑贏大市。




















