維港.雙鑽懶人包|前臨都會公園 一文睇清平面圖、示範單位及生活配套(多圖有片)|啟德新盤
中國海外發展(688)旗下位於啟德海灣半島(PARK PENINSULA)「維港.雙鑽」坐落於於跑道區後排,前臨都會公園,飽覽啟德體育園及維多利亞港海岸景致。am地產特意為讀者準備「維港.雙鑽」懶人包,一文睇清「維港.雙鑽」價單、樓書平面圖、示範單位、呎價、戶型、配套設施、交通與位置等重要資訊。
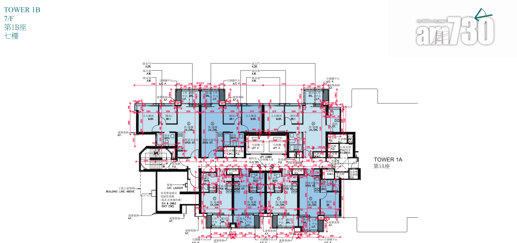
維港.雙鑽戶型分布、平面圖、車位
「維港.雙鑽」由第1座及第2座組成,各細分為相連的A、B兩翼,樓高26層和27層。項目住宅樓層由2樓起,不設4樓、13樓、14樓及24樓。項目標準單位涉及701伙,實用面積由244至705方呎。項目主打兩房單位,提供292伙,佔近42%,實用面積由437方呎至509方呎。主要分布於第1A座F室及G室,1B座A室及B室;以及2A座A室,2B座2至30樓C室,2至29樓D室,除2A座A室望維港外海,其餘單位望九龍灣方向。
開放式及一房單位合佔約48%,各提供97伙和239伙,開放式實用面積由244至250方呎,分布於第1B座的D至F室,以及第2A座的C、E、F室,主要望內園景;一房實用面積由300至311方呎,分布於第1A座B至E室,第1B座G室,外望維多利亞港海景,以及第2A座D至F室和第2B座B室,望內園景。另三房單位佔約10%,涉及73伙,實用面積由593方呎至705方呎,全部分布在第2座,包括第2B座A、F、G室,享啟德體育園和維多利亞港海景。需要注意的是,部分外望維港單位,待前排新盤落成,景觀或遭到遮擋。
全盤僅提供1伙特色單位,單位為第2B座30樓D室,實用面積1,770方呎,四房間隔,連611方呎平台及254方呎天台,附有室內樓梯通往天台;亦屬項目面積最大單位。另外,全盤面積最細單位為第2A座C室,實用面積244方呎,開放式間隔。項目合共提供72個住宅停車位,分布於地庫層。項目預計關鍵日期為2025年3月31日,樓花期長6個月。
⇊維港.雙鑽平面圖⇊
維港.雙鑽示範單位
「維港.雙鑽」提供3個示範單位,包括2個無改動示範單位及1個經改動示範單位,實用面積由305至493方呎,涵蓋一房及兩房間隔。
第1B座28樓H室連裝修經改動示範單位,實用面積493方呎,原屬兩房梗廚間隔,現改作一房,整體風格以藍色和橙色作點綴。入室右側設有置物架和四人餐桌,配備藍色絨面餐桌椅。客廳擺放米白色梳化,附有兩個圓形小茶几,連接三合一設計露台、工作平台及空調機平台。睡房以大理石幕墻為遮擋與客飯廳相隔,不設房門,房間隔寬敞舒適。幕墻背後為單人書桌,配備書架,置物空間充足。睡床靠窗擺放,可兩面落床,配以落地玻璃設計,增加採光,視野更廣闊。主人房配有開放式衣架,連全身鏡和床頭櫃。浴室配備黑色大理石浴缸,以及金屬質感毛巾架。
第1B座28樓H室交樓標準示範單位,實用面積493方呎,兩房梗廚間隔。單位樓層與樓層之間高度約3.15米,加上採用配有Low-E塗層玻璃幕牆,令室內採光度及空間感大大提升。客飯廳以長方形設計,佈局分明,方正實用。另外,單位露台、工作平台及空調機平台採用三合一設計,可享更多戶外休閒空間,日後維修冷氣機亦更方便。主人房間隔寬敞舒適,配以落地玻璃設計,增加採光,視野更廣闊。廚房設 L 形黑色高級石紋煮食工作枱,配以優雅木紋面板廚櫃,提供更多備餐及儲物空間。嚴選高級歐洲家電品牌,包括德國品牌Miele雪櫃、抽油煙機、炒鑊煤氣煮食爐及組合蒸焗爐。德國品牌Siemens二合一洗衣及乾衣機。
第1A座28樓B室交樓標準示範單位,實用面積305方呎,一房間隔。單位樓層與樓層之間高度約3.15米,大門選用德國品牌西門子(Siemens)電子門鎖,共設4個開鎖方法,包括指紋鎖、密碼鎖、加密感應卡及機械鎖匙,出入輕鬆方便,安全可靠。另每戶大門配置隱藏式門鉸,設計簡潔時尚。單位配置大金變頻式分體空調機,高效節能,締造舒適生活空間。開放式廚房以長形黑色高級石紋工作枱設計,配以優雅木紋面板廚櫃,典雅大方。浴室地台及牆身均以灰白色高級石紋設計,配以特色鑽石形設計鏡櫃,美觀實用。另採用一系列優質品牌,包括法國品牌Bain d’Or座廁,德國品牌Grohe花灑套裝及水龍頭,更設日本品牌Mitsubishi浴室換氣暖風機等,為住客帶來酒店式享受。
維港.雙鑽首張價單
「維港.雙鑽」於9月4日公布首張價單,提供141伙,實用面積由247至493方呎,提供最高10%折扣,涵蓋18伙開放式,76伙一房及47伙兩房,價單定價由448.2萬至1,138.5萬元,呎價介乎18,146元至23,093元;扣除10%最高折扣後,折實售價由403.3萬至1,024.6萬元,折實呎價介乎16,328元至20,783元。
「維港.雙鑽」設2種付款方法,包括「90天現金優惠付款計劃」及「建築期付款計劃」,其中「90天現金優惠付款計劃」的付款方法可享售價2%折扣優惠,連同其他優惠合共提供最高10%折扣。據價單顯示,最低售價及呎價單位為第1B座2樓E室,實用面積247方呎,開放式間隔,折實售價403.3萬元,折實呎價16,328元。
中國海外地產董事總經理游偉光表示,項目定價主要參考啟德跑道區面向維多利亞港,以及啟德城中心面對啟德體育園的相關項目,目前區內已開售的項目無法直接對標比較。
中原地產亞太區副主席兼住宅部總裁陳永傑表示,項目屬最接近啟德體育園的海濱區項目,擁有地利優勢,入場價低於500萬元,預料可吸引上車客及收租客。是次開價屬市價推盤。近日多個啟德新盤一同推售,將焦點聚焦於啟德區,而且於互相競爭下,發展商開價吸引,對買家而言屬喜訊。相信發展商亦希望趁於減息前偷步推盤,搶飲減息頭啖湯。
維港.雙鑽周邊配套
交通方面,跑道區目前設有城巴22X及城巴22往返港鐵啟德站,亦設有多條巴士路線來往東九龍及港島。政府亦正在考慮興建啟德智慧綠色集體運輸系統,設5個車站,包括港鐵啟德站、啟德體育園站、都會公園站、前跑道區住宅帶站及啟德郵輪碼頭站,預計由啟德郵輪碼頭至港鐵啟德站的車程約10分鐘。長達4.7公的中九龍幹線亦預計明年通車,屆時約8分鐘可抵達西九龍高鐵站,方便往來內地。
生活配套方面,區內首個大型商場AIRSIDE去年已正式營運,佔地190萬方呎,有超過40間食肆。另外,K11啟德零售館預計最快年內落成,佔地逾70萬方呎,主建築共3座,每座最多有5層,將雲集超過200家零售及餐飲店舖,為市民提供一站式運動與休閒、娛樂及購物體驗。「The Twins雙子匯」的Tower I及Tower II預計今年9月開幕,建築面積約110萬方呎,將提供國際奢侈品、美妝、時尚服飾,以及生活消閒等包羅萬有的商品類別及服務。
至於校網,「維港.雙鑽」小學為34校網,中學屬九龍城區。



























