西半山UPPER CENTRAL提供85伙 面積155呎起|新盤樓書
位於西半山堅道48號、由內房禹洲集團(1628)發展的「UPPER CENTRAL」今日(10日)突擊上載售樓說明書,項目採單幢式設計,提供85伙,實用面積由155至388方呎。
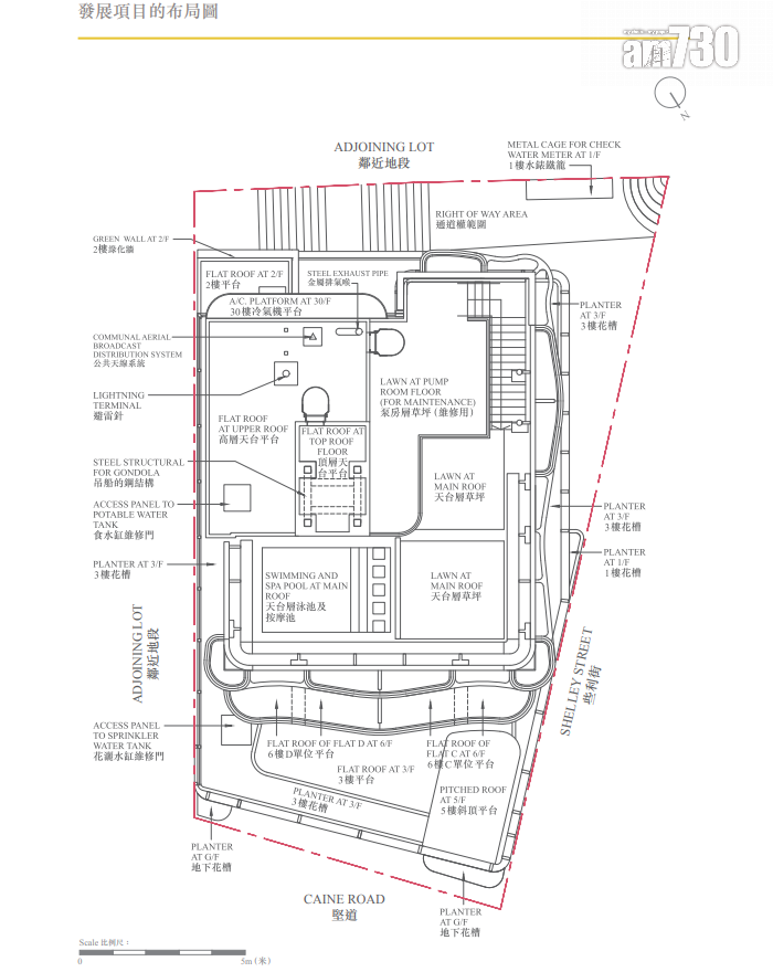
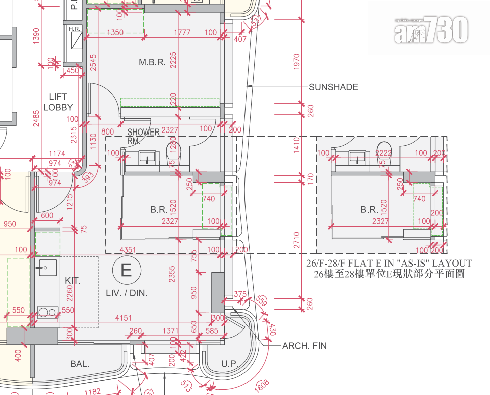
據樓書顯示,項目樓高27層,住宅樓層由6樓起,不設13樓、14樓和24樓,除26樓至28樓每層設3伙外,其餘樓層每層設4伙,另29樓和30樓僅配備1部升降機,其餘樓層配備2部。項目設有2伙特色單位,位於6樓C室和D室,連79方呎平台。
全盤面積最細單位為30樓B室,實用面積155方呎;面積最大單位包括26樓至28樓E室,實用面積388方呎。項目不設住宅停車位,地下至2樓為商鋪,5樓為住客會所位,面積達947方呎。
資料顯示,禹洲地產早於2014年以3.74億元購入上述物業,並重建為服務式住宅,曾於2020年委託代理行招租,意向呎租介乎80元100元,單位租金約1.4萬元起,現上載樓書至一手住宅物業銷售網,意味發展商有機會轉租為售。




















