馬鞍山泥涌碼頭公廁耗資330萬元翻新,男廁尿兜卻3個減剩1個。(Google圖片)
本港240間由食環署管理的公廁,自2019年起分階段逐步進行翻新和優化工程。其中馬鞍山郊遊熱點泥涌,區內碼頭公廁將會於今年第四季展開翻新工程,完工後男女廁格及洗手盆均設有電子感應系統,但男廁裡的尿兜數量不增反減,由3個減至只剩1個。
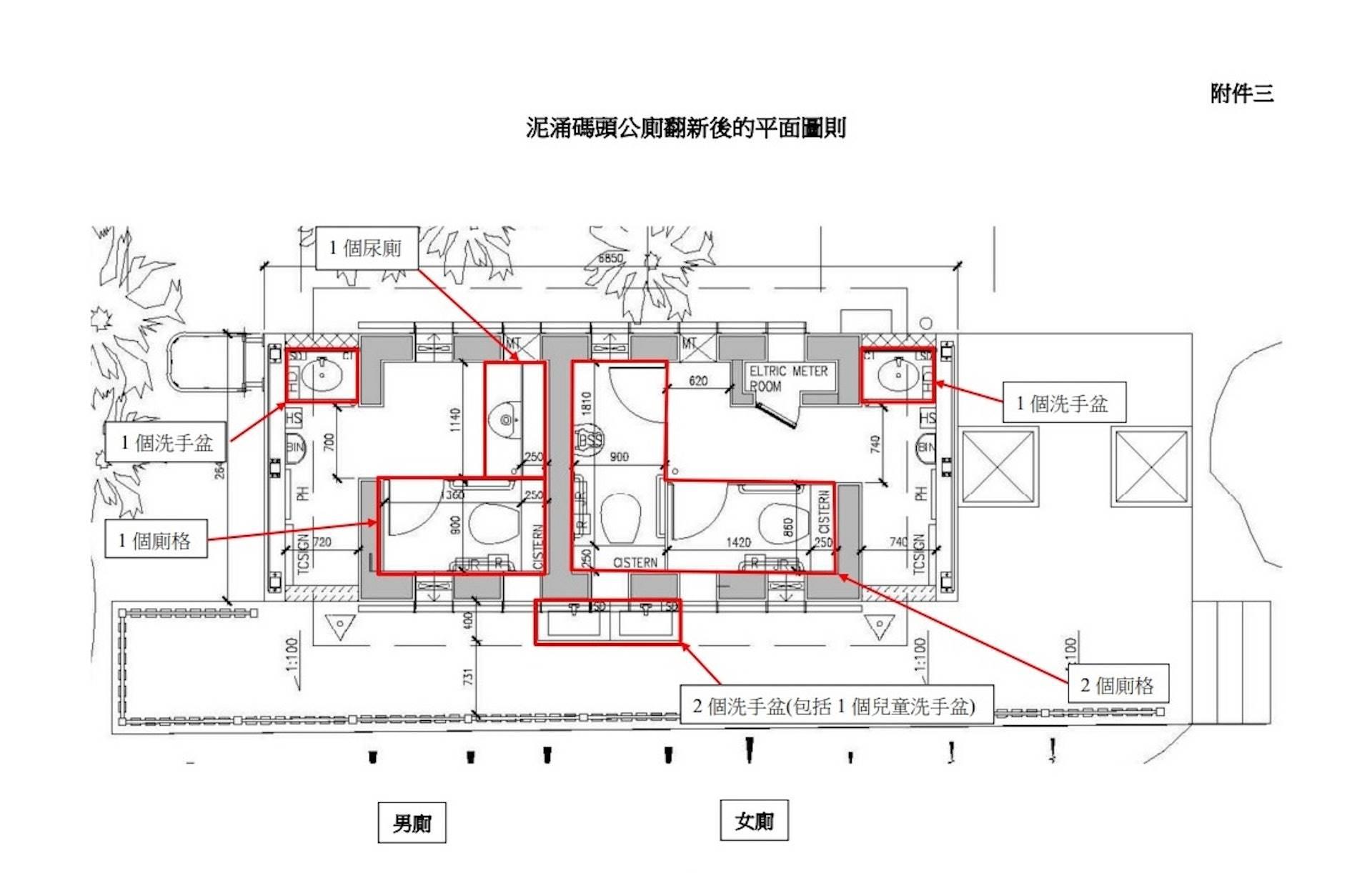
尿兜數量由3個減至1個
大埔區議會文件顯示,泥涌碼頭公廁將會在今年第4季開展工程,至明年第二季完工,預計耗資約330萬元。但根據新舊平面圖作比較,碼頭的男女廁座廁格、廁內洗手盆數目不變,並會加設電子感應系統。惟男廁內尿兜數量,卻由3個減至1個,廁外洗手盆亦由3個減至2個,其中一個屬兒童洗手盆,文件未有具體說明減省數量的原因。
位於馬鞍山的泥涌碼頭一帶,有紅樹林及淺水泥灘,有大量海洋生物聚居,屬了解自然濕地生態的絕佳地點。而日出、夕陽下,更有機會形成天空之鏡,故每逢周末吸引大量遊人到訪。














