何文田隆敍設45伙 面積680呎起 三房佔逾六成|新盤樓書
由本地黃氏家族持有的何文田太子道西296號「隆敍」已屆現樓,項目於周三(12日)正式上載售樓說明書至一手住宅物業銷售網,屬單幢式物業,提供45伙,單位戶型涵蓋兩房至四房,實用面積介乎680至2,296方呎。
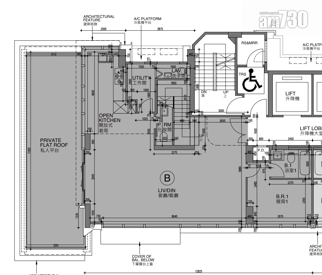
據樓書顯示,物業住宅部分由2樓至17樓,每層設有2部升降機,2至6樓每層設4伙,7至12樓每層設3伙,13至16樓每層設2伙,17樓則僅設1伙。
⇊即睇隆敍樓書⇊
提供2伙連平台複式戶
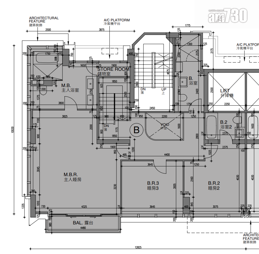
單位戶型方面,項目主打三房涉28伙,佔約62%;兩房及四房分別提供10伙和7伙。當中標準單位涉36伙,實用面積介乎725至2,190方呎;另提供9伙連平台特色戶,平台面積由61至411方呎,包括位於15樓及16樓的2伙複式單位。
全盤面積最細單位為2樓B室,實用面積680方呎,兩房間隔,連61方呎平台,面積最大單位為15及16樓B室,複式四房間隔,實用面積2,296方呎,連374方呎平台。
另外,項目停車場位於地庫一層及二層,合計提供43個住宅停車位,1樓設有住宅康樂設施。
























