「天璽.天」第1期今日(12日)正式上載售樓說明書,提供906伙,實用面積介乎236至3,936方呎,戶型涵蓋開放式至四房。
新鴻基地產(016)旗下啟德新盤「天璽.天」第1期今日(12日)正式上載售樓說明書,提供906伙,實用面積介乎236至3,936方呎,戶型涵蓋開放式至四房。項目由3座住宅大樓組成,包括第3座、第5座和第6座;以空中花園為分界設4大區域,分別為Elite Zone、Peak Tower、Pinnacle Tower,以及Apex Tower。
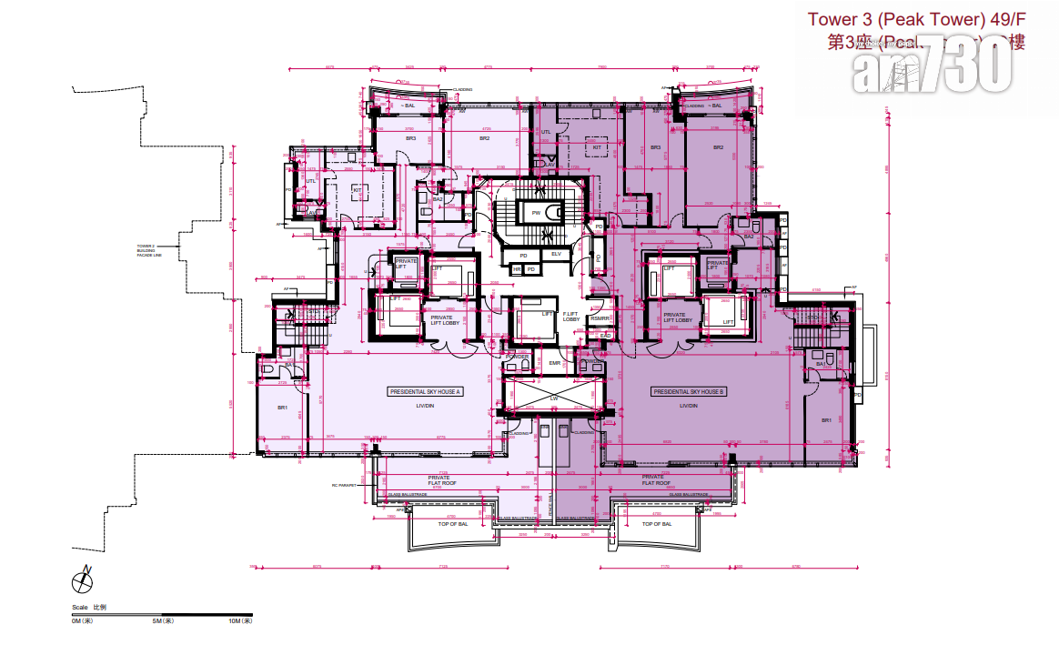
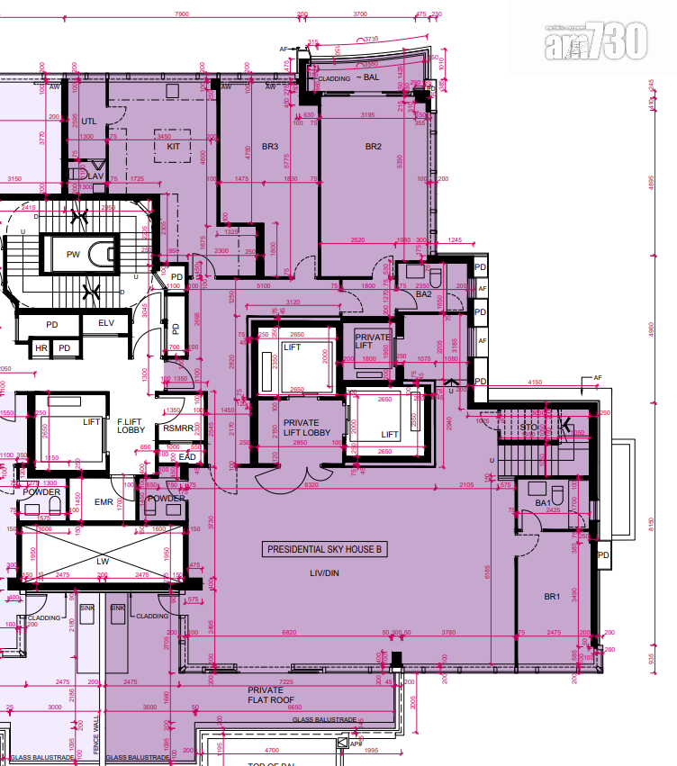
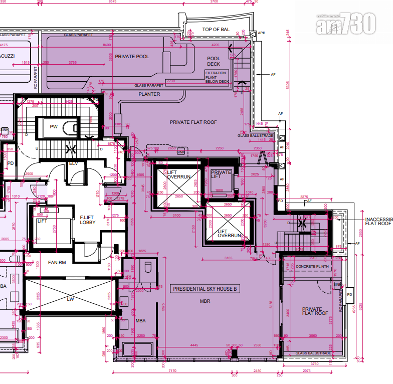
項目第3座5樓至28樓,以及第5座和第6座5樓至30樓空中花園對落的低層區域「Elite Zone」提供718伙,戶型涵蓋開放式至三房,實用面積介乎236至887方呎。另外,空中花園對上三個高層區域提供188伙,入場戶型由兩房起,主打三房及四房,實用面積介乎445至3,936方呎。當中第3座32樓至50樓「Peak Tower」,涉及60伙;第5座及第6座32樓至42樓「Pinnacle Tower」及「Apex Tower」,分別涉及約60伙及約68伙。
提供28伙特色單位
「天璽.天」第1期提供28伙特色單位,均位於高層區域,包括2伙頂層複式特色戶,為第3座「Peak Tower」的49樓及50樓B室,實用面積3,936方呎,連1,280方呎平台和610方呎天台,天台擁私人泳池,亦屬全盤面積最大單位。至於面積最細單位包括第5座「Elite Zone」6樓B6室,實用面積236方呎,開放式間隔。
項目停車位位於地下2層和3層,共提供334個住宅停車位。項目預計關鍵日期為2025年6月30日。「天璽.天」位於啟德協調道10號,毗鄰港鐵啟德站,項目分兩期發展,共提供1,490伙。














































