鴨脷洲新盤|凱玥樓書出爐 9663方呎複式單位成焦點!
港島區全新盤出擊,龍光集團(3380)及合景泰富(1813)合作的鴨脷洲凱玥自月初進行命名後,今日(15日)開通項目網站,同時上載售樓說明書。全盤提供295伙,當中焦點落在實用面積達9,663方呎的1伙「巨無霸」分層複式單位,屬全盤面積最大單位,料可躋身全港最大面積分層戶之列。
凱玥自月初進行命名後,今日(15日)開通項目網站,同時上載售樓說明書。(資料圖片)
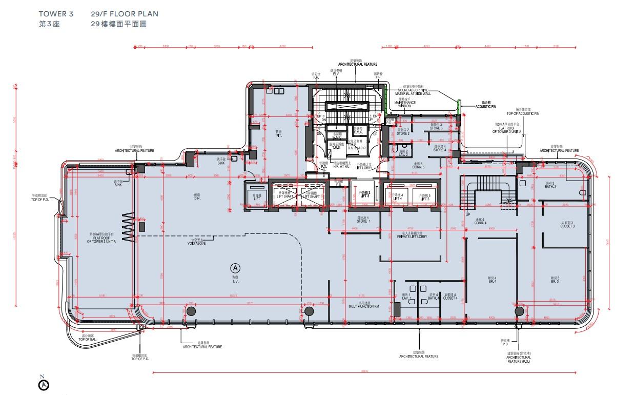
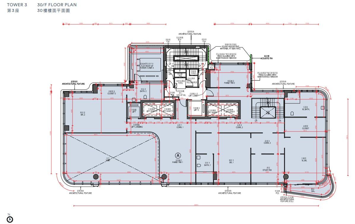
據項目樓書顯示,凱玥由6座住宅大樓組成,標準樓層採一梯2伙布局,單位實用面積介乎1,340至9,663方呎,涵蓋三房至五房間隔。上述所提及的面積最大單位,3座29及30樓A室複式戶,實用面積9,663方呎,連876方呎平台及546方呎天台,採五房五套間隔,當中四間睡房設有衣帽間。單位另設書房、四間儲物房、家庭廳,私人電梯大堂等。
車位與住戶比例高於1比1
另外,項目提供311個住客車位,車位與住戶比例高於1比1。值得留意,項目的業主需負責檢查、保養和進行一切有關維持、維修及保養該地段及保留範圍內現有海堤的必要工程,其費用及開支由發展項目的業主承擔。
龍光集團銷售及市場總監高藹華早前表示,凱玥為市場罕有的戶戶實用面積逾千呎的大型豪宅項目,已取得滿意紙,即將以現樓形式應市,預計有機會短期內開售。
合景泰富集團市場及營銷總監楊麗汶則稱,項目由多個著名國際設計團隊的藝術大師打造,與淺水灣、深水灣、壽臣山享有同一遼濶海景景致,戶戶向南的分層現樓大宅,為同區近10年來稀有供應。
地皮2017年以168.6億成交 曾為本港最貴地王
翻查資料,凱玥地皮由龍光集團及合景泰富於2017年2月底以約168.6億元投得,曾成為本港歷來最貴地王,每方呎樓面地價達22,118元。當時市場估計落成後單位每方呎售價約3.2萬元,特色戶及洋房每方呎售價逾4.5萬元。






