dadblk3 madblk3
adblk3
adblk3
地產
出版:2025-May-08 22:53
更新:2025-May-08 22:53

UNI Residence上載樓書 開放式戶286呎起|沙田新盤

分享:
UNI Residence上載樓書 開放式戶286呎起|沙田新盤

UNI Residence上載樓書 開放式戶286呎起|沙田新盤

adblk4

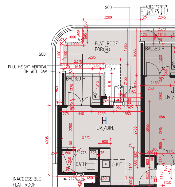
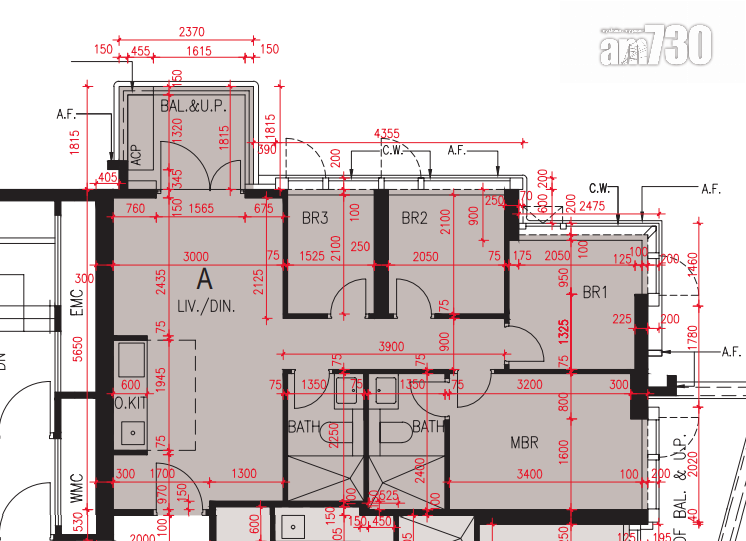
由永泰地產及萬科香港㩗手發展的沙田全新精品住宅「UNI Residence」,正式命名後隨即上載樓書,項目為單幢式29層住宅大樓,提供合共240伙單位,實用面積由286方呎至636方呎,涵蓋開放式至四房間隔及連平台或天台特式戶。項目預計關鍵日期為2026930日,樓花期約17個月。

項目戶型涵蓋開放式至四房間隔,實用面積介乎286636方呎。標準單位包括26伙開放式戶,153伙一房戶及51伙兩房戶。其餘10伙為連平台或天台特色戶,其中四房戶全盤僅設1伙,全數單位採用開放式廚房。標準樓層每層提供9伙單位及設有3部升降機。

adblk5

UNI Residence上載樓書 開放式戶286呎起|沙田新盤 UNI Residence上載樓書 開放式戶286呎起|沙田新盤 UNI Residence上載樓書 開放式戶286呎起|沙田新盤 UNI Residence上載樓書 開放式戶286呎起|沙田新盤 UNI Residence上載樓書 開放式戶286呎起|沙田新盤 UNI Residence上載樓書 開放式戶286呎起|沙田新盤 UNI Residence上載樓書 開放式戶286呎起|沙田新盤 UNI Residence上載樓書 開放式戶286呎起|沙田新盤 UNI Residence上載樓書 開放式戶286呎起|沙田新盤 UNI Residence上載樓書 開放式戶286呎起|沙田新盤 UNI Residence上載樓書 開放式戶286呎起|沙田新盤 UNI Residence上載樓書 開放式戶286呎起|沙田新盤

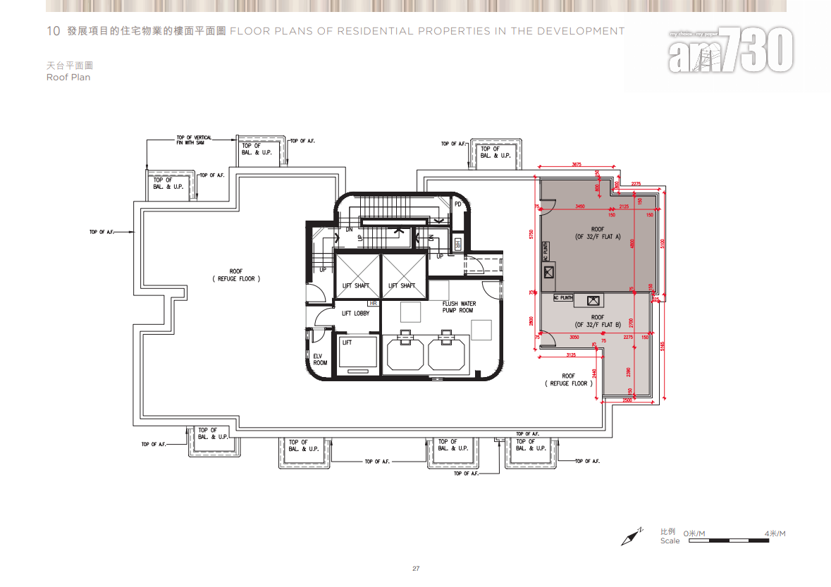
全盤面積最細的單位為H室,實用面積286方呎,開放式間隔。而最大單位為32A室,實用面積636方呎連326方呎天台,屬四房間隔。該盤的地庫設有17個住客停車位,住客會所設於1樓,總面積約1,660方呎。

 

UNI Residence上載樓書 開放式戶286呎起|沙田新盤 UNI Residence上載樓書 開放式戶286呎起|沙田新盤

特色戶分佈於樓盤最底層的2樓及頂層的32樓,分別為連平台或天台單位,平台面積由78310方呎,天台面積為216326方呎。

永泰地產執行董事兼銷售及市務總監鍾志霖表示,項目最快有望5月内開售,示範單位及銷售推廣工作已進入最後階段,首批單位將不少於50伙。

adblk6

ADVERTISEMENT

立即更新 /下載AM730手機APP 體驗升級功能

ad

恭喜你!獲取1分 !

更多積分任務