豪宅新盤|大埔林海山城上樓書 全屬大單位 大宅面積8030方呎
發展商加快推盤步伐,由希慎興業(014)及香港興業(480)合作發展的大埔現樓豪宅項目林海山城,繼昨日(18日)率先向傳媒開放現樓住客會所「CLUB LUCCA」後,今日(19日)已上載售樓說明書至樓盤官方網站,最快下周開放現樓示範單位予公眾參觀。
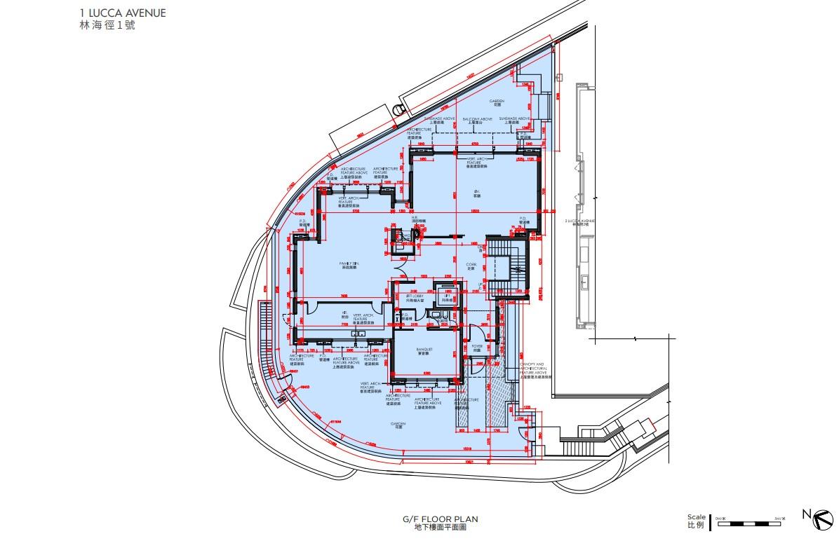
每戶自設私人升降機大堂
據樓書顯示,林海山城提供262伙,以低密度設計,14座住宅大樓樓高5層,標準樓層每層4伙,每戶自設私人升降機大堂,提升私隱度;頂層特色單位大部分為一層2伙設計。分層戶涉226伙,其中標準單位為160伙,實用面積介乎1,078至2,526方呎,屬三房至四房間隔;另66伙為連花園或頂層特色單位,實用面積由1,010至3,760方呎,屬兩房至四房間隔。面積最細的分層戶,為7座地下C室,實用面積1,010方呎,連108方呎花園,屬三房連套房間隔。
此外,該盤提供34座洋房,實用面積由3,245至5,341方呎,涵蓋四房雙套、四房四套及五房雙套間隔。另特設兩座尊貴大屋,分別為「林海徑1號」及「山城徑1號」。其中「林海徑1號」實用面積8,030方呎,間隔為五房五套,屬項目面積最大的單位。地庫設有3個停車位;地下備有家庭飯廳及廚房、客廳、宴會廳及2,767方呎花園,1樓為三間套房,2樓為主人套房及主人衣櫥、一間套房及683方呎前庭。平台設於頂層,面積達1,349方呎。
另「山城徑1號」以罕見的子母屋設計,屬四房四套間隔,實用面積6,268方呎,連590方呎平台、2,404方呎花園及983方呎天台。
奪兩項國際建築獎
希慎興業寫字樓業務及住宅業務總監葉慕貞表示,林海山城於2022至2023年度亞太區房地產大獎(Asia Pacific Property Awards 2022-2023)中榮獲兩項國際建築界殊榮,此獎項媲美房地產業界奧斯卡、屬房地產業界專業人士所推崇的專業評審之肯定。
香港興業國際業務拓展及市務總經理林紅稱,期望項目稍後能衝出亞洲,在年底舉行的國際房地產大獎(The International Property Awards)中再下一城勇奪獎項。











