GRAND SEASONS上樓書 一房特色戶面積283呎起|將軍澳新盤
會德豐地產與港鐵(066)合作發展的將軍澳日出康城第12C期「GRAND SEASONS」今日(2日)正式公布售樓說明書,提供650伙,主打一房及兩房,實用面積283至716方呎,戶型涵蓋一房至三房間隔。
據售樓說明書顯示,「GRAND SEASONS」由1A座及1B座相連住宅大樓組成,標準單位樓層每層分別設7伙及6伙,配備6部升降機。項目不設有停車位,預計關鍵日期為2026年2月28日。
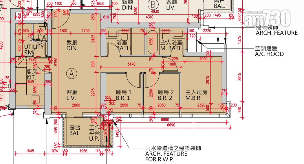
戶型分布方面,一房涉192伙佔30%,實用面積322至330方呎;兩房佔約59%,提供385伙,實用面積由435至495方呎;三房一套加工作間連洗手間間隔,提供48伙,實用面積716方呎。另設25伙連天台或頂層特色戶,實用面積由283至716方呎,平台及天台均設有洗手盆。
全盤面積最細單位為第1B座8樓E室,一房間隔,實用面積283方呎,連135方呎平台;全盤面積最大單位為1B座66樓A室,三房套間隔,實用面積716方呎,連562方呎天台,住戶需經由公共樓梯前往天台層,並且途徑兩相鄰單位共享的公共平台抵達相應天台。















