ONE JARDINE’S LOOKOUT懶人包|享港島核心生活圈 一文睇清平面圖、示範單位及生活配套(多圖)|跑馬地新盤
港島單幢盤趁減息火速出擊,由英皇集團發展、位於跑馬地宏德街1號住宅項目「ONE JARDINE’S LOOKOUT」本月「一條龍」進行命名、上載售樓說明書、開放示範單位及公布首張價單,搶佔市場關注。am地產特意為讀者準備「ONE JARDINE’S LOOKOUT」懶人包,一文睇清項目價單、樓書平面圖、示範單位、呎價、戶型、配套設施、交通與位置等重要資訊。
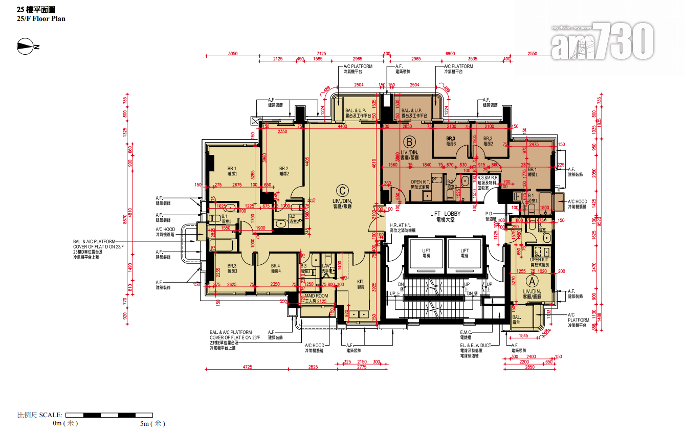
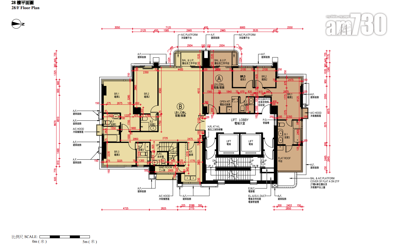
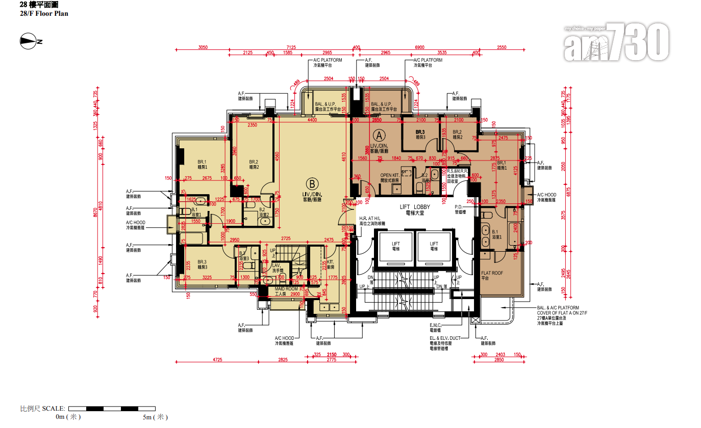
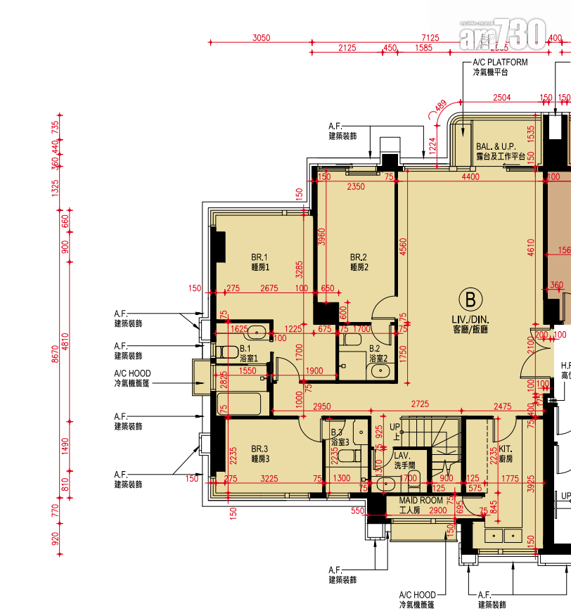
ONE JARDINE’S LOOKOUT戶型分布、平面圖、車位
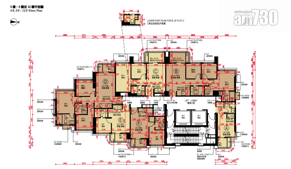
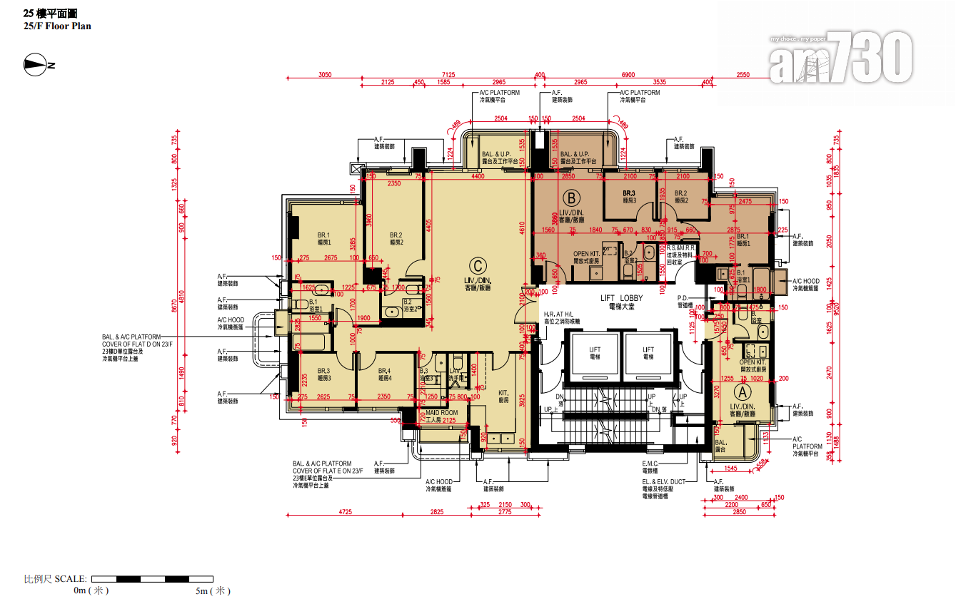
「ONE JARDINE’S LOOKOUT」提供123伙,採單幢式設計,實用面積介乎147至1,211方呎,戶型涵蓋開放式至四房,以及部分特色單位項目樓高25層,標準單位每層設6伙及2部升降機。
項目標準單位提供111伙,實用面積介乎179至1,175方呎。戶型主打三房,佔36伙,實用面積介乎479至559方呎;其次一房設30伙,實用面積介乎231至275方呎;而開放式及兩房分別提供22伙及20伙,開放式實用面積介乎179至180方呎,兩房實用面積介乎379至535方呎。四房僅提供3伙,實用面積均為1,175方呎。
項目另設有12伙特色單位,包括11伙連平台單位,平台面積介乎32至227方呎,以及1伙連天台頂層單位。全盤面積最細單位為1樓A室,實用面積147方呎,連147方呎平台;至於全盤面積最大單位為28樓B室,實用面積1,211方呎,連1,320方呎天台,可經由室內樓梯前往。
項目停車場位於地庫1樓及2樓,共提供12個住宅停車位,平均每10客爭一個車位。住客會所位於1樓,總面積達1,456方呎。「ONE JARDINE’S LOOKOUT」預計入伙日期為今年12月31日,樓花期僅3個月。
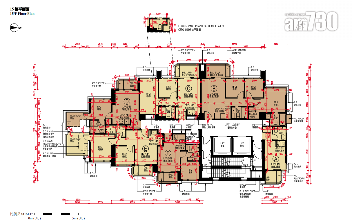
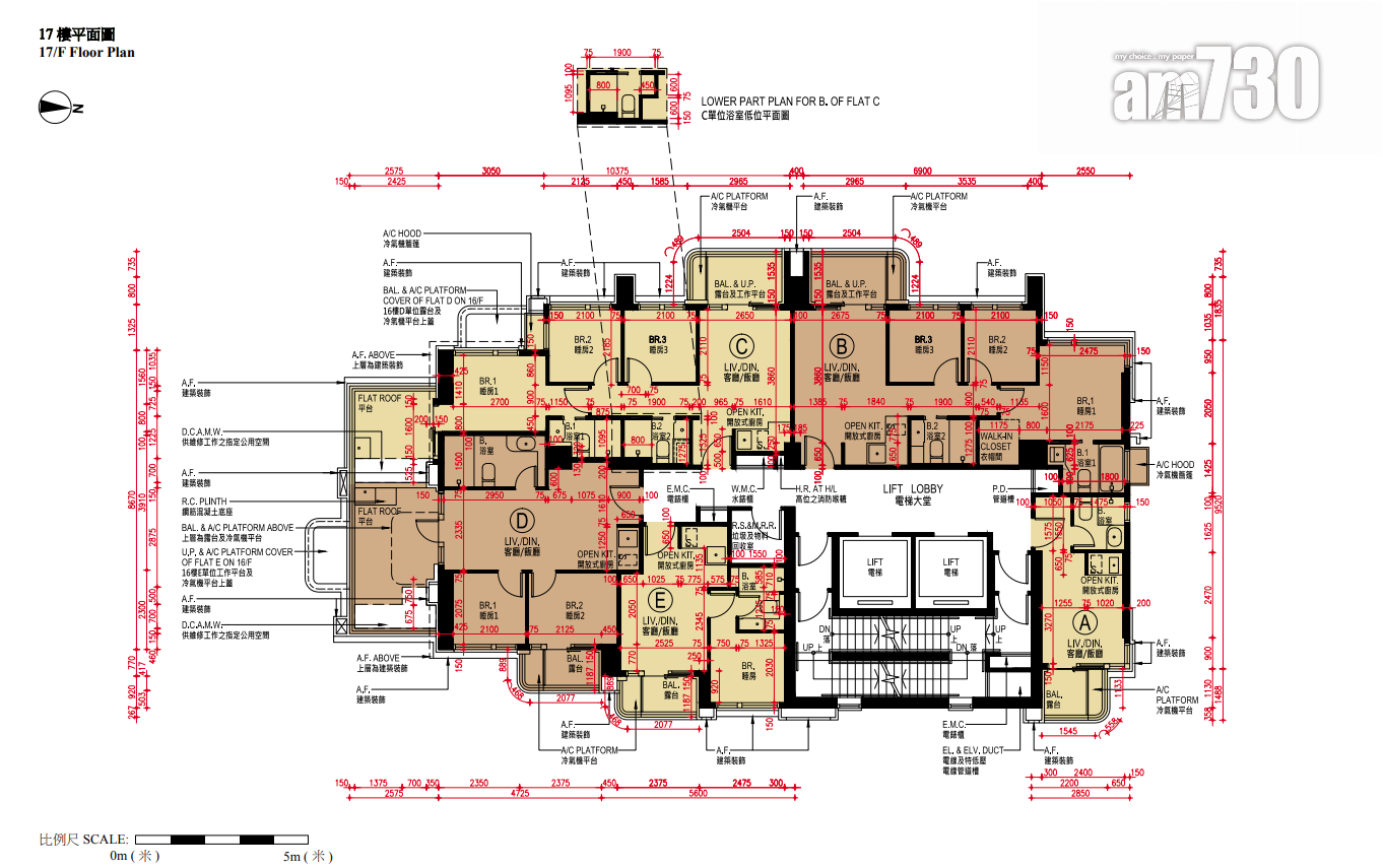
⇊ONE JARDINE’S LOOKOUT平面圖⇊
ONE JARDINE’S LOOKOUT示範單位
項目提供1個兩房(連套房)裝修無改動示範單位,以23樓B室為設計藍本,實用面積535方呎,屬兩房一套間隔,層與層之間高度可達3.15米。客飯廳呈長方形,開則方正實用,客飯廳連家庭廳長約4.8米,寬約4.6米,面積約206方呎,外連38方呎「三合一」露台。
單位設計以意大利米蘭生活元素為靈感,將米蘭的藝術氛圍與大自然氣息融合。單位整體以白色為主調,客廳、飯廳,書房及主人房均選用意大利對紋的白洞石石材鋪砌,將意大利精選的矜貴觸感融入各個空間。客飯廳連家庭廳牆身用上特色油漆,配以特別訂製意大利「Fendi White Marble」白色大理石餐桌及大型藝術掛畫,為空間增添藝術貴氣。家庭廳以意大利頂級品牌Promemoria的傢俬作為主角,牆上更配備畫燈,方便替換藝術品。
主人套房寛敞舒適,長約4.2米,寬約4.1米,面積約136方呎,放置雙人大床後,三邊仍保留充足空間,房間更有270度廣角窗,除可飽覽翠綠山景景觀外,更有獨立衣帽間的設計;而全套房用上高光木及漸變特色油漆飾面。
客廳及開放式廚房融入項目最標誌性的拱門設計並貫穿整個空間,又以質感豐富的洞石和黃銅色飾面設計而成的裝飾櫃,分隔客廳與家庭廳,成為整個空間的亮點。開放式廚房及浴室用料設備講究,配備德國著名品牌Miele蒸爐、德國Siemens電磁煮食爐、1.8米雪櫃及洗衣乾衣機,亦備有Gorenje酒櫃、Panasonic浴室寶及Stiebel Eltron電熱水爐。單位在選料方面亦細緻用心,大門用上Lockly智能電子門鎖,配備有視像鏡頭及全球超過30項專利的PIN Genie™防窺視密碼鍵盤,實時變更數字鍵盤,亦包括指紋、藍牙、RFID智能卡及鎖匙等開門功能,讓戶主盡享家居安全與方便。
示範單位地址:灣仔英皇集團中心2樓
開放時間:星期一至星期日上午11時至晚上8時。
ONE JARDINE’S LOOKOUT價單
2號價單:提供35伙 折實平均呎價18689元
「ONE JARDINE’S LOOKOUT」於9月23日加推第2號價單,涉及35伙,維持最高折扣10%,折實售價由429.66萬元起,折實平均呎價約18,689元,與首張價單17,904元相比高約4.4%;英皇國際副主席楊政龍表示,今批以中高層單位為主,仍屬原價加推。
2號價單涵蓋12伙一房,8伙兩房及15伙三房,實用面積介乎231至538方呎。單位定價由477.4萬至1,215.97萬元,呎價介乎18,987元至23,611元。以最高折扣10%計算,單位折實售價由429.66萬至1,094.37萬元,折實呎價介乎17,088元至21,250元。折實售價及呎價最低單位同為9樓E室,實用面積231方呎,一房間隔。
首張價單:提供50伙 折實平均呎價17904元
「ONE JARDINE’S LOOKOUT」於9月19日公布首張價單,涉及50伙,涵蓋18伙一房、11伙兩房及21伙三房單位,實用面積231至559方呎。英皇集團副主席楊政龍形容首張價單定價為「明升價」,期望買家入市後樓價升值。
單位定價由462萬至1,191萬元,呎價介乎17,653元至22,944元。扣除最高折扣10%後,折實售價由約415萬元至約1,072萬元,折實呎價15,888元至20,650元,折實平均呎價17,904元。
最低售價單位為2樓E室,實用面積231方呎,折實售價約415萬元,折實呎價約18,000元。最低呎價單位為2樓D室,實用面積559方呎,三房間隔,折實呎價約15,888元,折實售價約888.14萬元。
ONE JARDINE’S LOOKOUT銷售安排
2號銷售安排:涉及85伙 價單形式發售
「ONE JARDINE’S LOOKOUT」於9月24日公布2號銷售安排,落實於9月28日以價單形式推售85伙,涵蓋首兩張價單全數單位。
該批推售單位實用面積介乎231至559方呎,戶型涵蓋一房至三房,價單定價由462萬至1,215.97萬元,呎價介乎17,653元至23,611元。扣除最高折扣10%後,折實售價由約415萬元至1,094.37萬元,折實呎價15,888元至21,250元。
據銷售安排顯示,發售當日將分A、B兩組進行,A組買家優先揀樓,至少購買2伙指定單位,且必須包括一伙指定三房,最多可購買12伙;B組買家可購買1至2伙指定單位。項目將於9月27日下午1時截止收票。
1號銷售安排:涉及25伙 招標形式發售
「ONE JARDINE’S LOOKOUT」於9月23日公布首份銷售安排,推出25伙於9月27日起以招標形式出售,以特色單位為主,實用面積介乎147至1,211方呎,招標期至今年10月31日。
ONE JARDINE’S LOOKOUT周邊配套
項目自設私人會所Club EASTRIDGE,設有恆溫室外泳池,配備德國著名健身品牌NOHRD的健身器材。
交通方面,項目位於港島核心,駕車前往銅鑼灣約3分鐘,前往中環約6分鐘,至高鐵西九龍站約12分鐘。項目鄰近黃泥涌道設有巴士往返港島及九龍,包括城巴1、5線可通往灣仔、中環及西營盤等地,以及城巴8X線前往柴灣、北角等地。以及有堅尼地城-跑馬地,跑馬地-筲箕灣電車路線可供出行選擇。
生活方面,項目約3分鐘車程可達商場林立的銅鑼灣,包括希慎廣場、崇光百貨及時代廣場等;另外6分鐘車程可前往中環IFC、置地廣場以及金鐘太古廣場等商場。項目亦鄰近賽馬會跑馬地會所、深灣遊艇會、香港高爾夫球會等私人會所。
「ONE JARDINE’S LOOKOUT」夥拍第一太平戴維斯提供全方位資產管理服務,有助準買家更能有效為資產增值,將會為住戶提供一系列資產管理服務,包括收租服務、洽談續租、辦理租賃手續、處理投訴、維修及保養以及報告每月租金狀況等。
校網方面,小學為12校網,中學屬灣仔區。


















































