ONE JARDINE’S LOOKOUT上樓書 面積147呎起 主打三房|跑馬地新盤
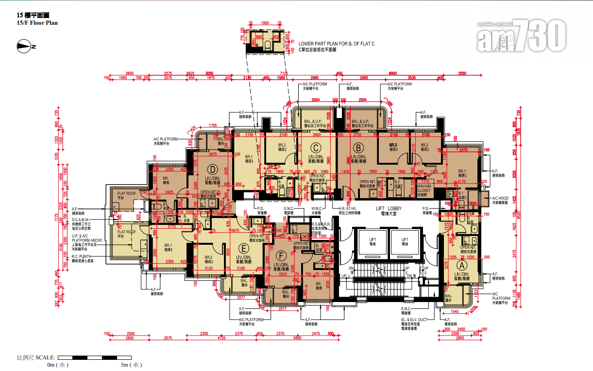
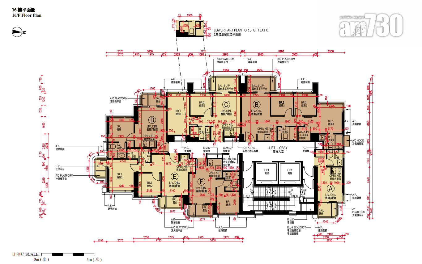
由英皇集團發展、位於東半山宏德街1號住宅項目「ONE JARDINE’S LOOKOUT」今日(19日)正式公布售樓說明書,提供123伙,採單幢式設計,實用面積介乎147至1,211方呎,戶型涵蓋開放式至四房,以及部分特色單位。
據樓書顯示,項目樓高25層,標準單位每層設6伙及2部升降機。項目標準單位提供111伙,實用面積介乎179至1,175方呎。戶型主打三房,佔36伙,實用面積介乎479至559方呎;其次一房設30伙,實用面積介乎231至275方呎;而開放式及兩房分別提供22伙及20伙,開放式實用面積介乎179至180方呎,兩房實用面積介乎379至535方呎。四房僅提供3伙,實用面積均為1,175方呎。
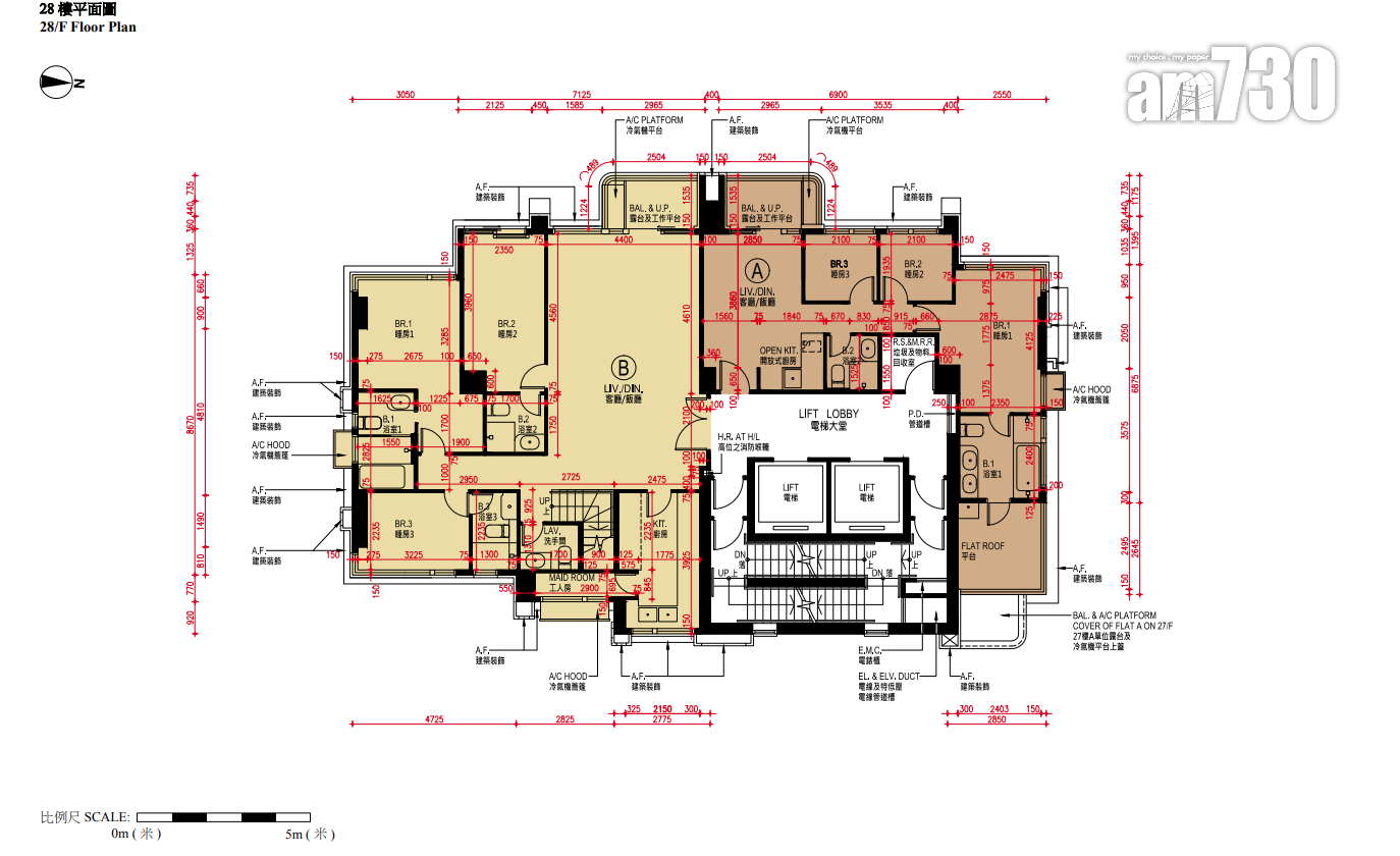
項目另設有12伙特色單位,包括11伙連平台單位,平台面積介乎32至227方呎,以及1伙連天台頂層單位。全盤面積最小單位為1樓A室,實用面積147方呎,連147方呎平台;至於全盤面積最大單位為28樓B室,實用面積1,211方呎,連1,320方呎天台,可經由室內樓梯前往。
項目停車場位於地庫1樓及2樓,共提供12個住宅停車位,平均每10客爭一個車位。住客會所位於1樓,總面積達1,456方呎。「ONE JARDINE’S LOOKOUT」預計入伙日期為今年12月31日,樓花期僅3個月。

























