PARK SEASONS懶人包 一文睇晒價單、示範單位、平面圖 (多圖有片)
大型鐵路新盤、由會德豐地產及港鐵(066)合作發展的將軍澳日出康城12B期「PARK SEASONS」乘上期銷情旺勢火速出擊!該項目為康城商場上蓋最後一個住宅項目,亦屬會德豐「O’ East」系列壓軸項目。am地產特意為讀者準備「PARK SEASONS」懶人包,一文睇清「PARK SEASONS」價單、樓書平面圖、示範單位、呎價、價單、戶型、配套設施、交通與位置等重要資訊。
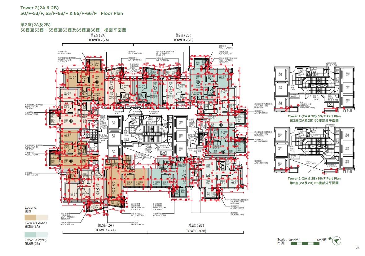
PARK SEASONS戶型分布、平面圖
日出康城第12期全期分3期發展,共涉1,985伙,屬康城商場上蓋項目。第12B期「PARK SEASONS」由兩座住宅大樓(2A及2B)組成,合共提供685伙,單位全為一房及兩房間隔,另設平台及頂層特色戶,實用面積介乎277至537方呎。標準樓層A、B兩翼各設7伙及3部電梯。
戶型分布方面,一房開放式廚房佔294伙最多,實用面積由314至335方呎。其次為兩房開放式廚房,提供269伙,實用面積由436至481方呎。至於兩房梗廚及兩房梗廚連書房單位分別涉49及48伙,實用面積分別為496及537方呎。另設12伙連平台特色單位,實用面積由277至499方呎,平台面積介乎183至359方呎;以及13伙頂層特色單位,實用面積由315至537方呎,天台面積介乎106至437方呎。
全盤面積最細單位為2B座8樓B室,實用面積277方呎,連190方呎平台,一房套房間隔,浴室設於睡房內。至於面積最細標準單位則為2B座標準樓層的B室,實用面積314方呎,一房套房間隔,浴室設於睡房內。全盤最大單位2B座A室,實用面積537方呎,兩房間隔。「PARK SEASONS」不設住客車位,預計關鍵日期為2025年11月30日,較上一期第12A期「SEASONS PLACE」稍遲1個月。
PARK SEASONS示範單位
「PARK SEASONS」未新增設示範單位,提供上期相若單位供買家參考。以第3A座38樓C室為藍本搭建,屬兩房間隔,分別為經改動連裝修示位及無改動示位,實用面積453方呎。
單位以「SEASONS」為設計概念,整體以淺色系及木色系為主調。客、飯廳、書房及主人房選用木地板鋪砌,客廳及開放式廚房採用綠色大理石牆身,客廳設有特色壁爐。主人睡房及睡房1間隔經過改動,以特色屏風作間隔牆身,擴大室內視覺空間,既令空間更舒適自然。主人睡房用以木色為主調,配以星夜牆紙,開放式衣櫃運用手工藝法表現四季變幻;睡房1特別改為書房,溫暖的燈飾使空間更光猛;雲石書枱保留獨有紋路,配以大型藝術掛畫。
利用高樓底打造多功能收納櫃組合連智能消毒鞋櫃,配備紫外線殺菌燈。收納櫃組合內設電掣、多功能收納趟板及活動層板,可自由配合配件,收納家居潔淨設備電器。廚房牆身設置物架連掛鈎,方便擺放廚具,櫃內設有分層抽屜式置物架、隱藏式垃圾桶。浴室洗手盆櫃內設小型儲物間關,櫃側設應藏式置物空間;睡房方正實用,主人睡房內配置電插座連 USB 插座。
示範單位地址:尖沙咀海港城港威大廈2座10樓。
PARK SEASONS價單
2號價單:78伙 折實平均呎價15039元
發展商於4月16日公布第2張價單,涉及78伙,涵蓋20伙一房,35伙兩房開放式廚房及23伙兩房梗廚,扣除最高折扣12%後,折實售價由478.3萬至773.3萬元,折實呎價14,552元至15,591元,折實平均呎價約15,039元。以定價計,該批市值約5.7億元。
1號價單:138伙 折實平均呎價14488元
發展商於4月11日公布首張價單,涉及138伙,涵蓋45伙一房,73伙兩房開放式及20伙兩房梗廚,實用面積介乎322至496方呎,價單定價由516萬至834.4萬元,呎價介乎15,872元至17,154元。扣除最高折扣12%,折實售價由454.1萬至734.3萬元,折實呎價由13,969元至15,096元,折實平均呎價約14,488元。以定價計,首批市值約9.3億元。
該價單較同系3月推出的12A期「SEASONS PLACE」首張價單的14,188元,高出約2.1%。會德豐地產副主席兼常務董事黃光耀形容該張價單為「壓軸復活價」,定價接近上期第4號價單,屬原價加推,不過較市場價仍有5%至10%的加價空間。
PARK SEASONS銷售安排
4月20日:首輪發售168伙 入場價454.1萬
「PARK SEASONS」落實於4月20日(星期六)展開首輪銷售,涉及168伙,全數以價單形式發售,涵蓋40伙一房,88伙兩房開放式廚房及40伙兩房梗廚,扣除最高折扣12%後,折實售價由454.1萬至770.3萬元,折實呎價由13,969元至15,530元,折實平均呎價約14,632元。當中兩成半單位折實售價低於500萬元,七成單位折實售價低於700萬元,全數單位折實售價低800萬元。以定價計,首批推售單位市值近12億元。
屆時將分A、B兩組揀樓,其中A組為大手客組別,可購入2至6伙,B組可購入1至2伙。首輪入場單位為第2A座11樓E室,實用面積322方呎,折實售價454.1萬元,折實呎價14,102元;呎價最低單位為第2A座11樓C室,實用面積453方呎,折實售價632.8萬元,折實呎價13,969元。
PARK SEASONS會所設水療、美容設施
項目住客會所「Seasons Retreat」設有一系列星級水療、美容設施,包括「Seasons SPA 四季水療」提供尊貴SPA空間,室外連接私人園林按摩浴池,釋放身心勞累,恢復神采;「Beauty Salon 美妝室」提供私人美容空間,而「Nail Salon 甲藝社」提供罕有的美甲空間,住戶可邀請專業人士到來以上兩項設施提供服務,在會所也能享受五星級體驗;「Steam 蒸氣室」側幫助促進新陳代謝,全面守護健康。
項目夥拍國際認證美容品牌VEGAS惟·美360及知名美甲品牌Tinted為住戶打造個人化美容療程,輕鬆享受一站式奢華美容服務。項目入伙2年内,住戶如惠顧VEGAS惟·美360來到項目的會所內提供服務,即可享專屬的首次體驗價—8折享受VEGAS惟·美360的各類型的美容和按摩服務。如首次惠顧Tinted來到項目的會所內提供美甲服務,即可獲贈極致手部護理療程「Seasons Hand Treatment」,體驗日式手部美容。
PARK SEASONS周邊配套、交通及校網
「PARK SEASONS」屬康城站港鐵上蓋項目,設專屬出入口經「The LOHAS康城」商場直達港鐵站,乘港鐵約16分鐘達鰂魚涌,約32分鐘達中環。另驅車經藍天隧道約5分鐘達東區海底隧道,約10分鐘達港島東CBD,約9分鐘達九龍東CBD。
「PARK SEASONS」座向正對「Seasons Garden 四季園林」、50米泳池等多個大型泳池,景色更開闊、豐富多層次,猶如置身園林之中。向東單位享大型50米泳池、光影動感池優美景色;向北單位盡享四季庭園、茶道亭、層層的流水景致,非常詩意;向南、向西單位享康城開揚園景,部分單位更享海景。今期住宅大樓距離連接商場的出入口最近,更便捷。
作為港鐵商場上蓋項目,「The LOHAS康城」總面積約48萬方呎,設三層商鋪,涵蓋150個商店,包括零售商戶、環球美食、香港最大型環保溜冰場及大型戲院等,消閒娛樂應有盡有。
校網方面,「PARK SEASONS」小學校網為95校網,中學校網為西貢區。































