「朗天峰」今日(23日)正式公布售樓說明書,全盤提供594伙。
由嘉里建設(683)發展的元朗十八鄉路新盤「朗天峰」今日(23日)正式公布售樓說明書,全盤提供594伙,實用面積由245至851方呎,戶型涵蓋一房至三房,另設平台及頂層特色單位,預計關鍵日期為今年12月31日,樓花期長約11個月。
農曆新年後加快推售
嘉里物業代理銷售及市場策劃高級總監盧永俊表示,項目繼早前正式命名後,吸引不少市場人士關注,今天正式上載售樓說明書,並且預期於農曆新年後加快推售步伐。
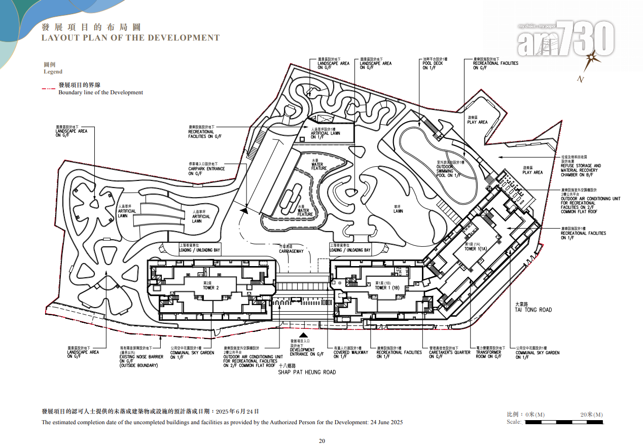
嘉里物業代理銷售及市場策劃總監王維榮指,「朗天峰」由兩組住宅大樓組成,呈現雙子式布局。第1座細分1A及1B兩翼,樓高23層,第1A及1B座標準單位樓層每層分別設9伙和8伙,均配備2部升降機;第2座樓高22層,標準單位樓層每層設10伙,配備2部升降機。
⇊朗天峰樓面平面圖⇊
平均10戶爭一個停車位
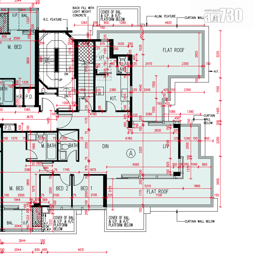
單位分布來看,項目標準單位主打兩房涉310伙,佔全盤供應逾五成,實用面積由365至446方呎;其次一房提供226伙佔38%,實用面積由282至311方呎,一房及兩房合佔約90%;至於三房面積均為539方呎,提供21伙。「朗天峰」另設27伙平台特色單位,實用面積245至502方呎,和10伙頂層特色單位,實用面積476至851方呎。
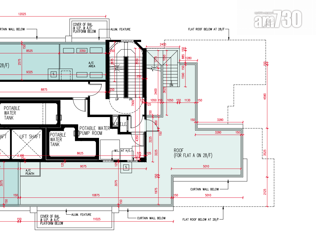
全盤面積最細單位為第1B座2樓G室,實用面積245方呎,一房間隔,連66方呎平台;面積最大單位為第1A座28樓A室,實用面積851方呎,三房間隔,連443方呎平台及786方呎天台,單位內設樓梯前往天台。項目提供60個住宅停車位,位於地庫層,相當於平均近10戶爭一個停車位。據悉,大部分單位層與層之間的高度為3.5米或以上,項目會所及綠化園林面積廣達約7萬方呎,設有多項特色設施及園藝設計。


























