西九故宮文化博物館設計曝光!《傳真社》取得多張故宮館初步設計圖(圖),披露該館外觀如同「鼎」狀,採波浪狀、透孔的金屬網設計;而館內部分樓層採中空設計,加強室內採光。報道引述消息指,設計顧問嚴迅奇就故宮館的外觀設計已有初步定案,料現時的公眾諮詢只影響館內的設施分布。嚴所屬的許李嚴建築師事務所承認,設計圖屬最初的設計草案之一。
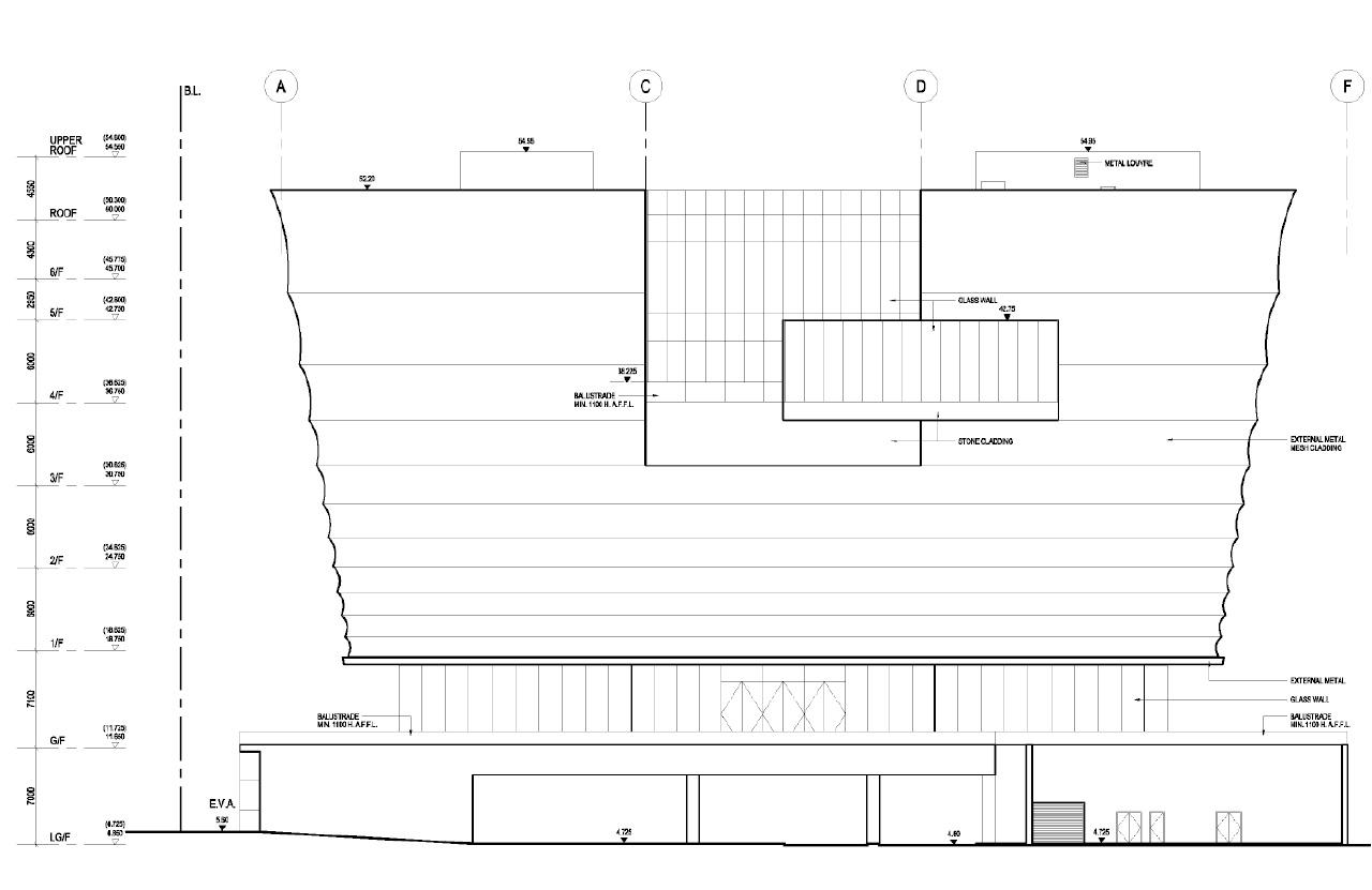
本報翻查西九諮詢文件及展板,發現當時模擬圖僅以「橙色方型盒子」標示故宮館位置,未有如《傳真社》的設計圖般具體。《傳真社》取得16頁、相信是上月底完成的故宮館設計,建築物外形呈上闊下窄的梯型,貌似一個「鼎」。館外採用呈波浪狀、透孔的金屬網設計,局部採用鋼結構建築。館內連地庫則樓高7層,其中3至6樓是中空設計,天台開天窗加強採光。平面圖亦披露分層布局,1樓有三個宮廷物品展覽廳;2樓展覽廳以書畫、陶瓷、金器銅器及珠寶為題。至於香港館藏及專題展廳,分別位於3樓及4樓。而5樓及6樓同是工作區,設有展覽準備室、環境適應室及辦公室等。許李嚴建築師事務所稱,該設計圖為建築師最初其中一個初步設計草案,整體設計方案仍屬初步階段。




