
華懋旗下豪景花園旁的一幅臨海露天貨倉用地,擬申建165伙住宅單位,伙數較之前提出的方案增多10%或一成。(資料來源:城規會文件)
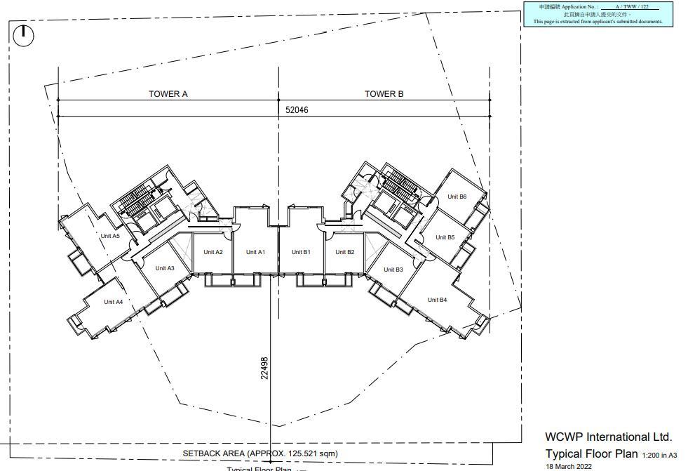
華懋就旗下深井青龍頭豪景花園旁一幅空置露天臨海貨倉用地,向城規會申建2座中低密度住宅,預計涉及165伙,單位數目較去年首度提出申請的方案增加10%或一成。據城規會文件顯示,申請地點位於青山公路青龍頭段丈量約份第388約地段第94號和毗連政府土地,毗鄰為豪景花園商場,現為露天貨倉,地皮面積約3.56萬方呎,屬住宅(乙類)用地,申請人擬申請將地積比率由現時的2.1倍,增加至2.52倍,以興建2座15層高住宅項目,預計提供165個單位,較舊方案建150伙多出15伙或10%,而涉及總樓面面積為89,664萬方呎,較舊方案多出約3%。另外,華懋在去年9月曾就上述用地向城規會遞交改建計畫申請,但其後徹回。

華懋旗下豪景花園旁的一幅臨海露天貨倉用地,擬申建165伙住宅單位,伙數較之前提出的方案增多10%或一成。(資料來源:城規會文件)