旺角Elize PARK提供52伙 面積220至438呎|新盤樓書
位於旺角洗衣街181號、由樂風集團發展的旺角東新盤「Elize PARK」周二(23日)正式上載售樓說明書至一手住宅物業銷售網,為單幢式物業,提供52伙,單位戶型涵蓋一房至三房,實用面積介乎220至438方呎。當中標準單位涉及43伙,實用面積由243至341方呎;另提供7伙連平台特色戶及2伙連天台特色戶。
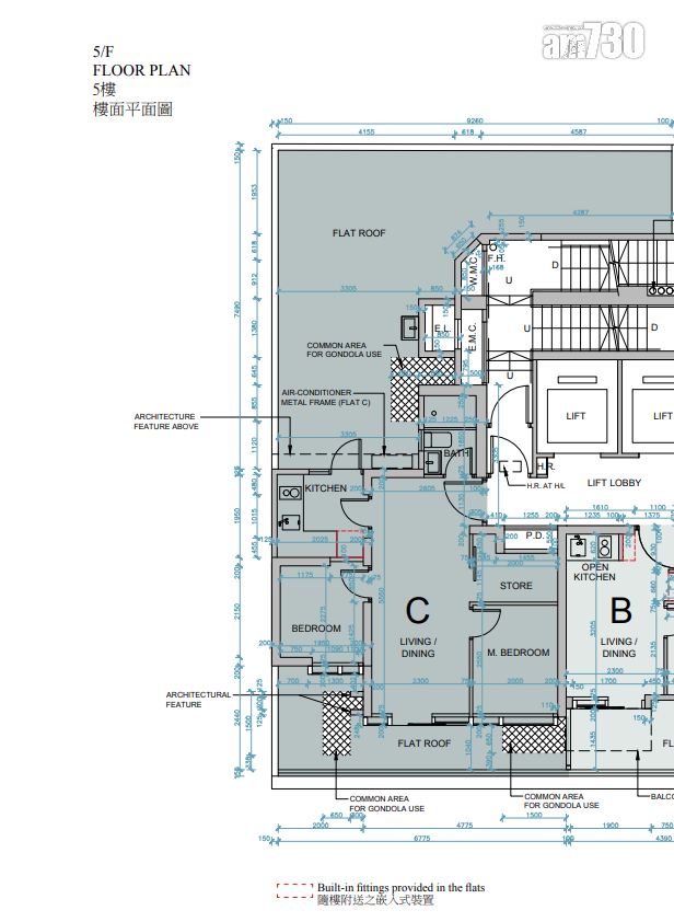
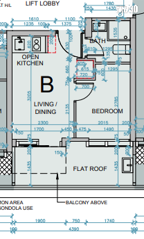
據樓書顯示,物業住宅部分由5樓至25樓(不設13樓、14樓、24樓),每層設有2部升降機,5至22樓設有3伙,23及25樓則設有2伙。
兩房特色戶「平台大過單位」
單位戶型方面,標準單位一房佔15伙,兩房涉28伙。項目5樓、6樓及23樓設有連平台特色戶,共7伙;25樓為連天台特色戶,共2伙,不設內置樓梯,即住戶須通過公眾樓梯前往。
全盤面積最細單位為5樓B室,一房間隔,實用面積220方呎,連66方呎平台;面積最大單位為23樓A室及25樓A室,三房間隔,實用面積同為438方呎,分別連15方呎平台和340方呎天台。另值得留意,5樓C室兩房連平台特色戶,實用面積414方呎,不過平台面積達462方呎,即室外比室內面積大近12%。
另外,物業地下、1樓及2樓設有商店,3樓備有住客會所,據早前發展商介紹會所設四大主題區域,包括健身區域「FITNESS LAB」、紓壓區「THE SERENITY」、戶外燒烤區「GRILL & CHILL」,以及「CAFFEINE ALCHEMY」。項目不設車位,預計關鍵日期為今年6月30日,樓花期僅長約5個月。
項目預計關鍵日期為今年6月30日,樓花期僅長約5個月。(蘇文傑攝)





















