映築至今已完成兩輪銷售。
林達民早前介紹映築頂層特色戶,平面圖為E及F室。
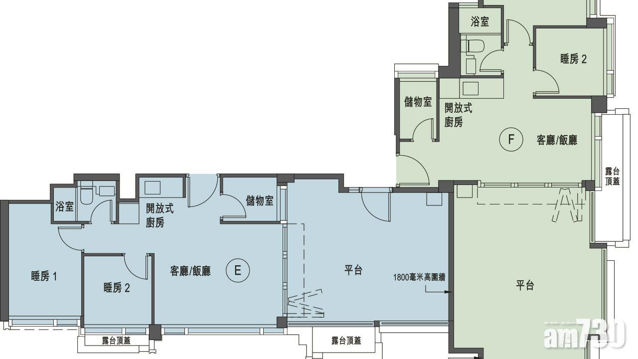
映築頂層特色戶,平面圖為E及F室
即使本港爆發新一波新冠肺炎疫情,惟無阻由恒基地產(012)及市區重建局合作發展的映築(The Harmonie)銷情報捷,為2022年新盤打響頭炮。繼上周六首輪銷售紅盤高開,即日沽清136伙後,昨日次輪銷售68伙,開賣僅3小時售罄,至今累售204伙,已佔全盤337伙約六成。恒基物業代理營業(一)部總經理林達民透露,頂層6伙連平台特色戶最快部署農曆新年後招標推售,此類單位屬同區罕有供應,相信勢成虎年市場焦點。 攝影:陳奕釗
屬單幢式設計的映築,預計入伙日期為2023年6月底,樓花期長約18個月。5樓及6樓共19伙屬市建局負責銷售,為一房至三房間隔,實用面積由323至769方呎。7樓或以上則屬恒地銷售部分,共318伙,全屬兩房間隔,實用面積由322至377方呎,一層12伙,設有3部升降機。單位景觀方面,首選E、F、G室望東京街方向最佳,能享最開揚的城市景觀,甚至少部分海景;而H、J、K室可眺望翠綠山景,C及D室可望開揚城市景。
部署推出的頂層平台特色戶位於37樓,涉及6伙,包括4伙三房及2伙兩房間隔,實用面積由393至457方呎,各連133至265方呎平台。林達民表示,映築於前期策劃時已考慮到區內分支家庭的需求,以及渴望新樓設有的完善配套,故設計切合他們需要的單位間隔。其中E單位及F單位均以「大家庭為本」的概念設計,同屬兩房連儲物室及私人平台戶型,實用面積分別為409及393方呎,並連202方呎及265方呎私人平台。
單位採用開放式廚房設計,層與層之間高度達約3.325米,較標準樓層更高,帶來更強空間感,成就三代同堂「大家庭」生活空間。
至於A單位屬三房套間隔,實用面積457方呎,連147方呎私人平台。單位客飯廳呈長方形,配合落地玻璃幕牆及趟摺門連接平台花園,提升空間感。單位採用開放式廚房設計,而3個睡房與客飯廳以橫向排列,而睡房1採「L型窗」,能享廣角奧運站一帶的景致,採光度十足,並已預留衣櫃位,住客可從私人平台進入客飯廳,或直接從單位大門進入屋內。
日式園林會所 6大設施動靜皆宜
設計師在映築住宅入口大堂特意配置上天花音響設備,同時再邀請本港的音樂人創作背景音樂,希望讓住客回家時甫進住宅入口大堂,隨著背景音樂即可放鬆心情。3樓為平台會所,總面積近1.06萬方呎,以音樂與大自然為主題,加上日式襌意為設計主調,猶如鬧市中的綠洲,設施動靜皆宜。如室內「多用途宴會廳」的線條及透光的天花設計啟發自古箏的悠和優美。至於有小朋友的家庭客群亦有好地方,「兒童唱遊樂園」正好能讓小朋友愛上音樂的地方,而「多用途宴會廳」及「戶外奏樂園林」亦將成為大人與小朋友表演的舞台。此外,會所以木的自然元素配合鏡面的設計,創造出舒適而型格的「健身天地」;而「茶禪一味」的茶室空間,配合室外「天籟步道」的園林景致,體現出日本禪學,讓住戶可細味生活,同時貫徹發展商對綠色環境及可持續性發展的理念。
距港鐵站僅3分鐘 生活配套一步到位
映築地理位置優越,距離港鐵長沙灣站步程僅約3分鐘,沿綫前往多個市區核心地方,如旺角、尖沙咀、中環等,如需轉乘屯馬綫、東涌綫及機場快綫亦快捷便利。此外,多條小巴及巴士路線途經青山道、長沙灣道及東京街附近一帶,且提供通宵服務,方便住戶隨時可往來港九新界。生活配套方面,項目提供約2.6萬方呎基座商場,毗鄰更有民生商場備有超級市場、餐飲食肆丶家品店等;另區內擁有西九龍中心及南昌站V Walk兩個大型商場,絕對可以滿足住戶生活所需。
附近有多條小巴及巴士路線途經。
室外「天籟步道」的園林景致。
「茶禪一味」的茶室空間。




