泰峯價單、示範單位、平面圖 九龍灣新盤懶人包(有片)
由王新興集團發展的九龍灣新盤「泰峯」Uptown East周四(3月7日)公布首張價單,涉及168伙。單位實用面積由235至3,415方呎。am地產特意為讀者準備「泰峯」Uptown East懶人包,一文睇清「泰峯」Uptown East價單、樓書平面圖、示範單位、呎價、價單、戶型、配套設施、交通與位置等重要資訊。
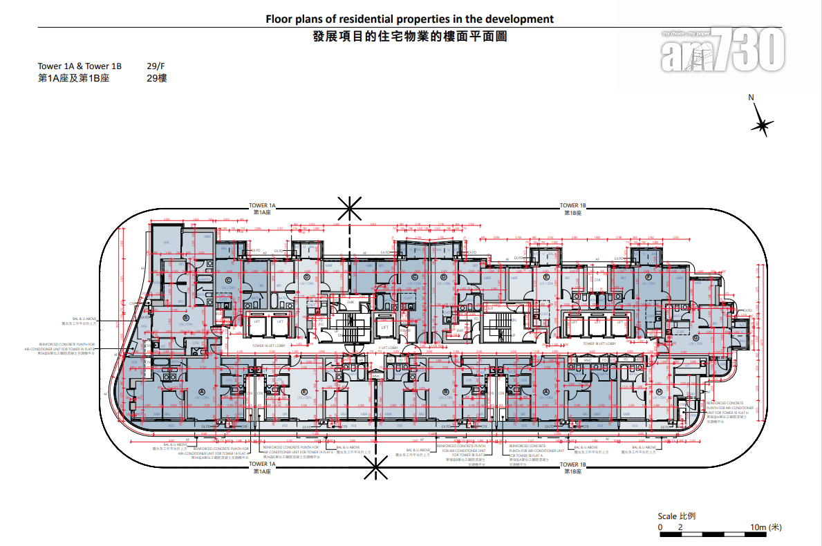
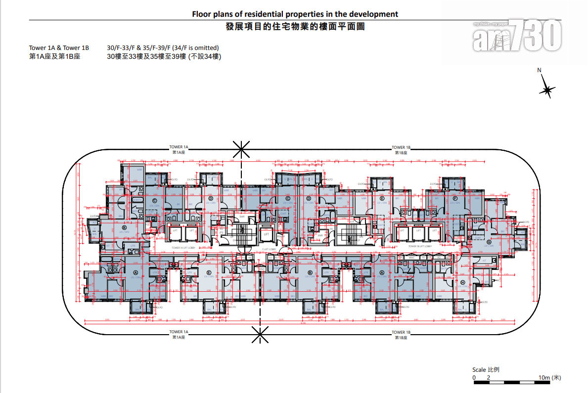
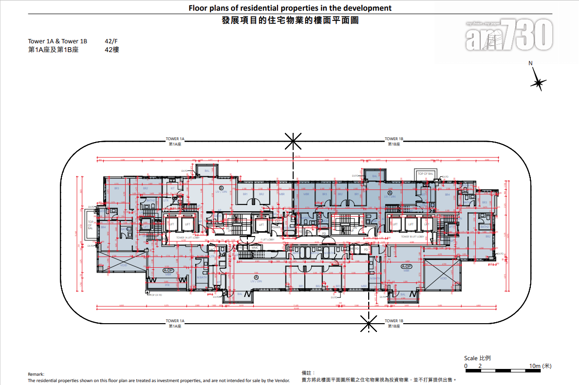
據「泰峯」樓書顯示,由第1座及第2座樓高40層的住宅大樓組成,各座細分為相連A、B兩翼。第1A及1B標準樓層每層設14伙,及6部升降機;第2A及2B標準樓層每層設14伙,及5部升降機。
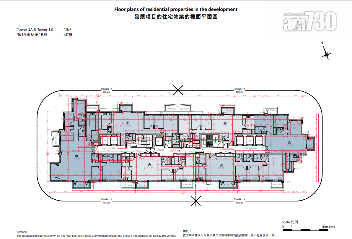
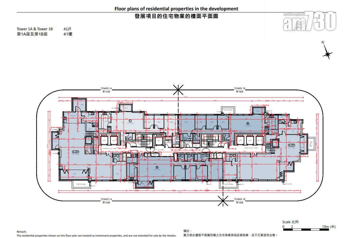
戶型分布方面,標準單位涵蓋開放式至三房間隔,實用面積介乎273至774方呎,其中兩房421伙最多,佔單位總數約52.2%,實用面積介乎428至671方呎;一房涉173伙,實用面積336至379方呎;三房提供103伙,實用面積560至774方呎,亦設64伙開放式,實用面積273至287方呎;另有46伙特色戶,實用面積由235至3,415方呎,連天台面積由629至1,258方呎,平台面積由20至236方呎。
全盤面積最細單位為2B座5樓F室,開放式間隔,實用面積235方呎,連81方呎平台;面積最大則為2A座41至42樓A-DP室,屬頂層複式戶,五房間隔,實用面積3,415方呎,連200方呎平台及1,258方呎天台,另設私人游泳池。
「泰峯」停車場設於地庫1樓及2樓,共提供94個住宅停車位。項目基座設有3層商業樓面,樓面面積超過5萬方呎。發展商透露,哈羅香港國際學校幼兒園已承租商場約一半面積。
⇊泰峯Uptown East平面圖⇊
泰峯開價|首批168伙折實均呎14808元 市區7年半最低
「泰峯」於本月7日公布首張價單,涉及168伙,包括18伙開放式、39伙一房、38伙兩房開放式廚房及73伙兩房梗廚單位,實用面積介乎278至561方呎。首張價單提供5種付款計劃,折扣率由14%至23%。以最高23%折扣計,單位折實售價由372.7萬至888.9萬元,折實呎價介乎12,979元至16,161元。
最低售價單位為2A座6樓E室,實用面積278方呎,開放式間隔,以最高折扣23%計算,折實售價372.7萬元,折實呎價約13,406元。最低呎價單位為2A座5樓A室,實用面積514方呎,屬兩房連開放式廚房間隔,折實售價667.1萬元,折實呎價約12,979元。
首批單位折實平均呎價14,808元,屬7年半以來九龍市區新盤最低。翻查資料,對上折實平均呎價低於此水平的新盤為啟德1號(I),於2016年8月首推110伙,當時折實平均呎價14,471元。參考東九龍上個應市新盤「啟德海灣」第1期,去年10月首推208伙折實平均呎價19,798元;同區由恒隆地產(101)發展的「皓日」,2021年12月首批100伙折實平均呎價21,548元,「泰峯」首批較前述兩盤低約25.2%及31.3%。
泰峯2號價單168伙
「泰峯」2號價單包括18伙開放式、38伙一房、39 伙兩房連開放式廚房單位,以及73伙兩房梗廚單位,實用面積由287至554方呎。價單定價由518.2萬至1,166.3萬元,呎價介乎16,882元至22,589元。扣除最高23%折扣,單位折實售價由約399萬至約898萬元,折實呎價介乎12,997元至17,394元,折實平均呎價15,547元
⇊泰峯示範單位|1B座19樓F室⇊
泰峯示範單位|涵蓋一房、兩房開廚及兩房梗廚戶型
「泰峯」展銷廳位於荃灣愉景新城,提供4個示範單位,包括1個經改動及3個無改動示範單位,戶型為一房及兩房。當中經改動示範單位以第1B座19樓F室為藍本搭建,實用面積468方呎,另設面積22方呎露台及16方呎工作平台,可享內園美景外,更可享鄰近一帶青蔥翠巒及球場三重景致。
單位層與層之間高度達3.15米,空間感充足。單位不但可享內園美景,且更可享鄰近一帶青蔥翠巒及球場三重景致。經改動示範單位以簡約雅致為主調,以淡雅奶油白色配搭淺木色系設計,又以簡潔線條配襯柔和燈光。單位以開放式廚房設計,設計團隊更巧妙地融合開放式廚房之櫥櫃與餐枱,並配合特製輕元素設計傢俬及裝飾燈。
泰峯示範單位|468呎兩房有得睇!開放式廚房巧妙設計 實用與美感兼備(多圖有片)
以第2B座19樓A室為藍本搭建的一房無改動示範單位,實用面積336方呎。長型客飯廳長逾4米、闊約2.5米,方正實用。大廳外接約22方呎露台及約16方呎工作平台,住戶可享內園美景,以及鄰近一帶青蔥翠巒景色和戶外球場景致。單位設計廳房同向,睡房空間充裕,可供擺放衣櫃及書桌及雙人床,且設大型窗戶,有助採光及通風。
以第1B座19樓B室為藍本搭建的兩房無改動示範單位,實用面積550方呎。大門配備LOCKLY智能電子門鎖,單位屬連工作間間隔,長型客飯廳長達5米、闊約2.6米,間隔涇渭分明。大廳外接約22方呎露台及約16方呎工作平台,可享開揚都市景致。單位設計廳房同向,主人睡房空間充裕,長約4米、闊約2.3米,可供擺放衣櫃及書桌及雙人床,睡房均設有大型窗戶,有助採光及通風。單位屬梗廚設計,廚房更設有大窗,同時配備一系列經典歐洲名牌廚具。
泰峯首輪銷售336伙
「泰峯」敲定3月17日首輪推售336伙,單位定價由484.1萬至1,166.3萬元,呎價介乎16,856元至22,589元。單位折實售價則由約372.7萬至約898萬元,折實呎價介乎12,979元至17,394元。
中原陳永傑︰料首批必定「一Q清枱」
中原地產亞太區副主席兼住宅部總裁陳永傑表示,九龍灣新盤「泰峯」Uptown East項目屬財案撤辣後首個開價全新盤,料發展商希望收宣傳之效,並以九龍市區7年半新低呎價推出首批單位,料首批必定「一Q清枱」,重現2021年當時大圍「柏傲莊」火爆場面。他估計,由於項目開價吸引,料買家中佔約三成為投資者。
「泰峯」作為王新興集團在港首個房地產發展項目,項目建築設計簡約,建築師旨在將悠閒自在氣息,注入現代美學設計,特意選用超白玻璃打造物業外牆,超白玻璃相比一般透明玻璃更顯明溢清澈,不但提高建築物通透度,引入大量天然光,同時又把東九龍與維港美景,以及室外的都會氣息與綠意引進室內,與整體建築設計完美融合,演繹出社區的獨有活力。
泰峯Uptown East資料︰
泰峯Uptown East地址︰九龍灣觀塘道55號
主要發展商︰王新興集團
管理公司︰新世界物業管理有限公司
校網︰小學︰46/中學︰觀塘區
















































