UNI Residence懶人包|示範單位+平面圖+價單+配套 享20分鐘大學圈優勢(多圖有片)|大圍新盤
由永泰地產(369)及萬科香港合作發展的沙田大圍顯和里7號新盤「UNI Residence」,設有一幢29層高的住宅大樓,提供240伙,實用面積介乎286至636方呎。單位間隔涵蓋開放式至四房,設有特色戶;項目預計關鍵日期為2026年9月30日。《am地產》特意為讀者準備「UNI Residence」懶人包,一文睇清價單、樓書平面圖、示範單位、呎價、價單、戶型、配套設施、交通與位置等資訊。
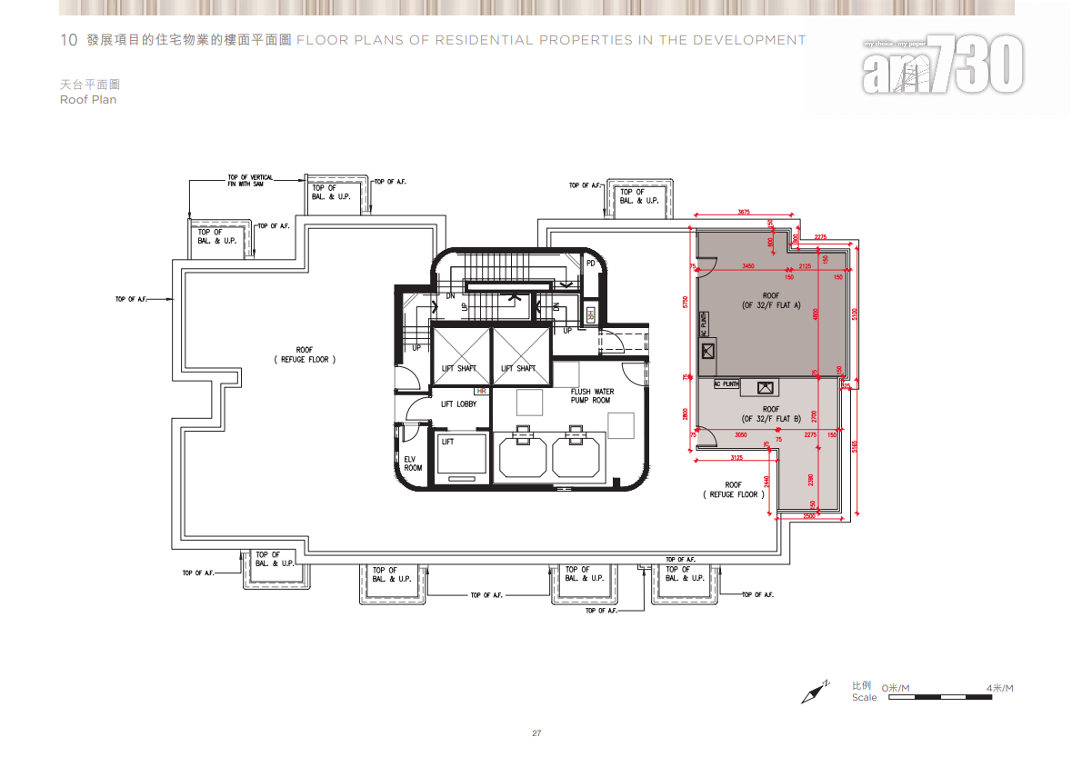
平面圖及戶型分布
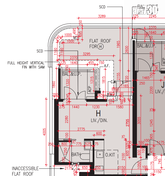
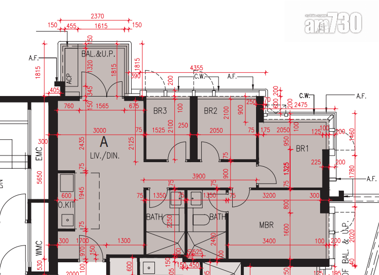
「UNI Residence」標準單位包括26伙開放式,153伙一房及51伙兩房,另有10伙為連平台或天台特色戶,其中四房單位全盤僅設1伙,全數單位採開放式廚房設計;而標準樓層每層設有9伙,提供3部升降機供住客出入。特色戶分布於2樓及32樓,設有連平台或天台單位,平台面積由78至310方呎,天台面積分別為216及326方呎。
單位景觀方面,項目毗鄰顯徑鄰里社區中心,向東為田心消防局,向北為居屋雲疊花園及名城第1期及第3期,向北、南及東面的中高層單位可享較開揚景觀,其他坐向以望樓景為主。
全盤面積最細單位為2至32樓H室,實用面積286方呎,開放式間隔,其中2樓H室另連112方呎平台。全盤面積最大單位為32樓A室,實用面積636方呎,連326方呎天台,四房一套間隔。該盤地庫層提供17個住客停車位,平均近15戶爭1個車位。
價單、收票及銷售安排
首張價單推出50伙 折實均呎15481元
「UNI Residence」於5月19日公布首張價單,涉及50伙,包括40伙一房及10伙兩房,實用面積介乎291至394方呎。定價由512.4萬至872.5萬,呎價介乎17,350元至22,145元,平均呎價19,349元。選用120天現金付款計劃,連同所有折扣優惠,合共最高折扣20%,折實售價由410萬至698萬元,折實呎價介乎13,882元至17,716元,折實平均呎價15,481元。
入場單位為3樓D室,實用面積293方呎,一房間隔,折實售價410萬元,折實呎價13,990元。最低呎價單位為3樓C室,實用面積297方呎,一房間隔,折實價412萬元,折實呎價13,882元。
永泰地產發展執行董事兼銷售及市務總監鍾志霖表示,「UNI Residence」是次以「菁英置業價」推出首張價單,當中一房折實售價全數低於500萬元以下。
UNI Residence開價|首推50伙 折實均呎15481元 全數一房折實價5球有找|大圍新盤
中原陳永傑:料租金回報可達4.5厘
中原地產亞太區副主席兼住宅部總裁陳永傑表示,「UNI Residence」首張價單整體較同區新晉二手屋苑有約20%至30%折讓幅度,入場費410萬元起,相信對上車客及投資者均相當吸引,預計投資者入市比例可達約40%。項目位置方便,鄰近6間大學,租賃需求一直持續高企,參考同區租賃市況,預料落成後呎租可達約65元水平,租金回報可達約4.5厘,租金回報相當吸引。
2號價單提供24伙 折實均呎15936元
發展商於5月21日加推「UNI Residence」2號價單共24伙,包括6伙開放式、15伙一房及3伙兩房,實用面積介乎286至394方呎。定價由513.4萬元至859.4萬元,呎價介乎17,951元至21,928元。扣除最高20%折扣後,單位折實售價由約410.8萬至687.6萬元,折實呎價介乎14,364元至17,453元,折實平均呎價約15,936元,對比首張價單折實平均呎價15,481元,高約2.9%。
入場單位為3樓H室,實用面積286方呎,開放式間隔,折實售價約410.8萬元,折實呎價14,364元。
UNI Residence加推24伙 入場價410萬|大圍新盤
收票及首張銷售安排
「UNI Residence」於5月20日開始收票,市場消息指已獲足夠認購,最快5月內展開首輪銷售。
兩個無改動示範單位
18樓B室 面積394呎兩房
其中一個無改動示範單位為18樓B室,實用面積394方呎,兩房間隔,連22方呎露台及16方呎工作平台。層與層之間的高度達3.325米,空間感寬廣。大門旁位置配置裝飾櫃,方便住戶出門或回家後可以整理鞋履及放置小物件。
客飯廳以長方形設計,預留大幅牆身方便擺放家具;「三合一」環保露台空間廣闊,配置定位裝置增加通風,加上採用落地玻璃門,實用採光兼備,引自然光入室;主人睡房空間寛敞,設有轉角玻璃窗,增加採光度及觀景角度;開放式廚房配備優質國際品牌家電,包括Siemens電磁爐及蒸焗爐,Rosieres抽油煙機、雪櫃及洗衣乾衣機,以及Daikin空調機等,一應俱全浴室設計用心,運色型格,設有鏡櫃及儲物櫃,亦配備優質品牌潔具,選料用心上乘。
配備韓國HYUNDAI視頻門鈴智能門鎖,結合視像和門鈴功能,具備7種開鎖方法,智能貓眼備有紅外夜視功能及4吋顯示屏日夜高清。住戶更可透過手機APP制定一次性密碼,遠程開鎖,讓家居變得更安全與便利。
UNI Residence示範單位|394呎兩房戶 主人房設轉角玻璃窗增採光(多圖有片)|大圍新盤
⇊「UNI Residence」18樓B室示範單位⇊
18樓D室 面積293呎一房
另一個無改動示範單位為18樓D室,實用面積293方呎,為一房間隔,連22方呎露台及16方呎工作平台。層與層之間的高度達3.325米,空間感寬廣。大門旁位置配置裝飾櫃,方便住戶出門或回家後可以整理鞋履及放置小物件。
長方形客飯廳間隔方正,方便擺放家具;客飯廳連接的「三合一」環保露台,配置定位裝置增加通風,大大增加實用性,將戶外自然光線充分採納,令整體空間開闊明亮,更顯舒適寬敞;L型開放式廚房配備Siemens電磁爐及蒸焗爐,Rosieres抽油煙機、雪櫃及洗衣乾衣機等,以及Daikin空調機等;浴室設有鏡櫃及儲物櫃,亦配備優質品牌潔具,選料用心上乘。
配備韓國HYUNDAI視頻門鈴智能門鎖,結合視像和門鈴功能,具備7種開鎖方法,智能貓眼備有紅外夜視功能及4吋顯示屏日夜高清。住戶更可透過手機APP制定一次性密碼,遠程開鎖,讓家居變得更安全與便利。
UNI Residence示範單位|293呎一房 高樓底空間感足(多圖有片)|大圍新盤
⇊「UNI Residence」18樓D室示範單位⇊
付款計劃及折扣
(A) 120天現金付款計劃 (照售價減10%)
- 於簽署臨時買賣合約時,買方須支付相等於成交金額5%之金額作為臨時訂金。
- 成交金額95% (成交金額餘額) 於簽署臨時買賣合約後 120 天內繳付。
(B) 備用按揭現金付款計劃 (照售價減7%)
- 於簽署臨時買賣合約時,買方須支付相等於成交金額5%之金額作為臨時訂金。
- 成交金額95% (成交金額餘額) 於簽署臨時買賣合約後 120 天內繳付。
(C) 建築期付款計劃 (照售價減5%)
- 於簽署臨時買賣合約時,買方須支付相等於成交金額5%之金額作為臨時訂金 。
- 成交金額5% (加付訂金) 於簽署臨時買賣合約後90天內繳付。
- 成交金額90% (成交金額餘額) 於賣方就其有能力將該物業有效地轉讓予買方一事向買方發出書面通知書的日期起14天內繳付。
(D) 靈活建築期付款計劃 (照售價減4%)
-
- 於簽署臨時買賣合約時,買方須支付相等於成交金額5%之金額作為臨時訂金。
- 成交金額1% (加付訂金) 於簽署臨時買賣合約後120天內繳付。
- 成交金額1% (加付訂金) 於簽署臨時買賣合約後180天內繳付。
- 成交金額1% (加付訂金) 於簽署臨時買賣合約後240天內繳付。
- 成交金額1% (加付訂金) 於簽署臨時買賣合約後300天內繳付。
- 成交金額1% (加付訂金) 於簽署臨時買賣合約後360天內繳付。
- 成交金額90% (成交金額餘額) 於賣方就其有能力將該物業有效地轉讓予買方一事向買方發出書面通知書的日期起14天內繳付。
(E) 備用按揭建築期付款計劃 (照售價減2%)
- 於簽署臨時買賣合約時,買方須支付相等於成交金額5%之金額作為臨時訂金。
- 成交金額5% (加付訂金) 於簽署臨時買賣合約後90天內繳付。
- 成交金額90% (成交金額餘額) 於賣方就其有能力將該物業有效地轉讓予買方一事向買方發出書面通知書的日期起14天內繳付。
售價獲得折扣的基礎
20分鐘大學圈優惠
買方簽署臨時買賣合約購買本價單中所列明之住宅物業可獲額外2%售價折扣優惠。
雙鐵沿線優惠
買方簽署臨時買賣合約購買本價單中所列明之住宅物業可獲額外3%售價折扣優惠。
早鳥置業優惠
買方簽署臨時買賣合約購買本價單中所列明之住宅物業可獲額外5%售價折扣優惠。
置業優惠
利嘉閣地產為配合項目的銷售部署,並回饋客戶的支持,特意為「UNI Residence」客戶推出全新置業優惠。由即日起至2025年6月15日,凡經利嘉閣地產購入「UNI Residence」開放式及一房單位,並於入伙後經由利嘉閣地產租出之首8名買家,最高可獲贈價值約15,000元之一年租務管理服務,優惠總值高達約12萬元。
會所、生活配套、交通及校網
「UNI Residence」住客會所設於1樓,總面積約1,660方呎,由室內設計名家CONRAN and PARTNERS打造,設施包括室內外健身區、休閒區、宴會區及童樂區等。
項目鄰近顯田遊樂場11人足球場、顯田游泳池等設施。附近有圍方商場,大型超市等。至於在田心村及隆享邨一帶有特色餐廳及街市,滿足生活所需。
交通方面,由項目步行約10至15分鐘可達港鐵屯馬綫顯徑站及東鐵綫大圍站,17分鐘直達金鐘;尖沙咀、啟德、鑽石山一樣毋須轉車。於顯徑街、車公廟路設有80、80A、81S、82K、85B、286X、803、803K、804、986等多條巴士及小巴路線,往來港九新界等地方。
校網方面,位處小學88校網以及沙田中學校網,有不少地區名校,更享有「20分鐘大學圈」優勢,20分鐘內可到達中文大學、城市大學、浸會大學、理工大學、恒生大學及都會大學。





































































