Belgravia Place平面圖、價單、示範單位 長沙灣新盤懶人包(am730製圖)
恒基地產(012)長沙灣「Belgravia Place」第1期成為龍年「頭炮」新盤外,亦為樓市全面撤辣後首個開售新盤。am地產特意為讀者準備「Belgravia Place」懶人包,一文睇清價單、樓書平面圖、示範單位、呎價、價單、戶型、配套位置等資訊。
Belgravia Place第1期資料
「Belgravia Place」位於巴域街1號,屬近年罕有四面單邊的市區重建項目,分兩期發展,合共提供1,000伙。第1期提供714伙,由相連的1A及1B座住宅大樓組成。單位實用面積介乎177至756方呎,戶型涵蓋開放式至三房;主打一房及兩房,實用面積介乎226至374方呎,合共佔641伙,佔所有單位約九成。同時設有3伙頂層特色單位,實用面積624至756方呎。
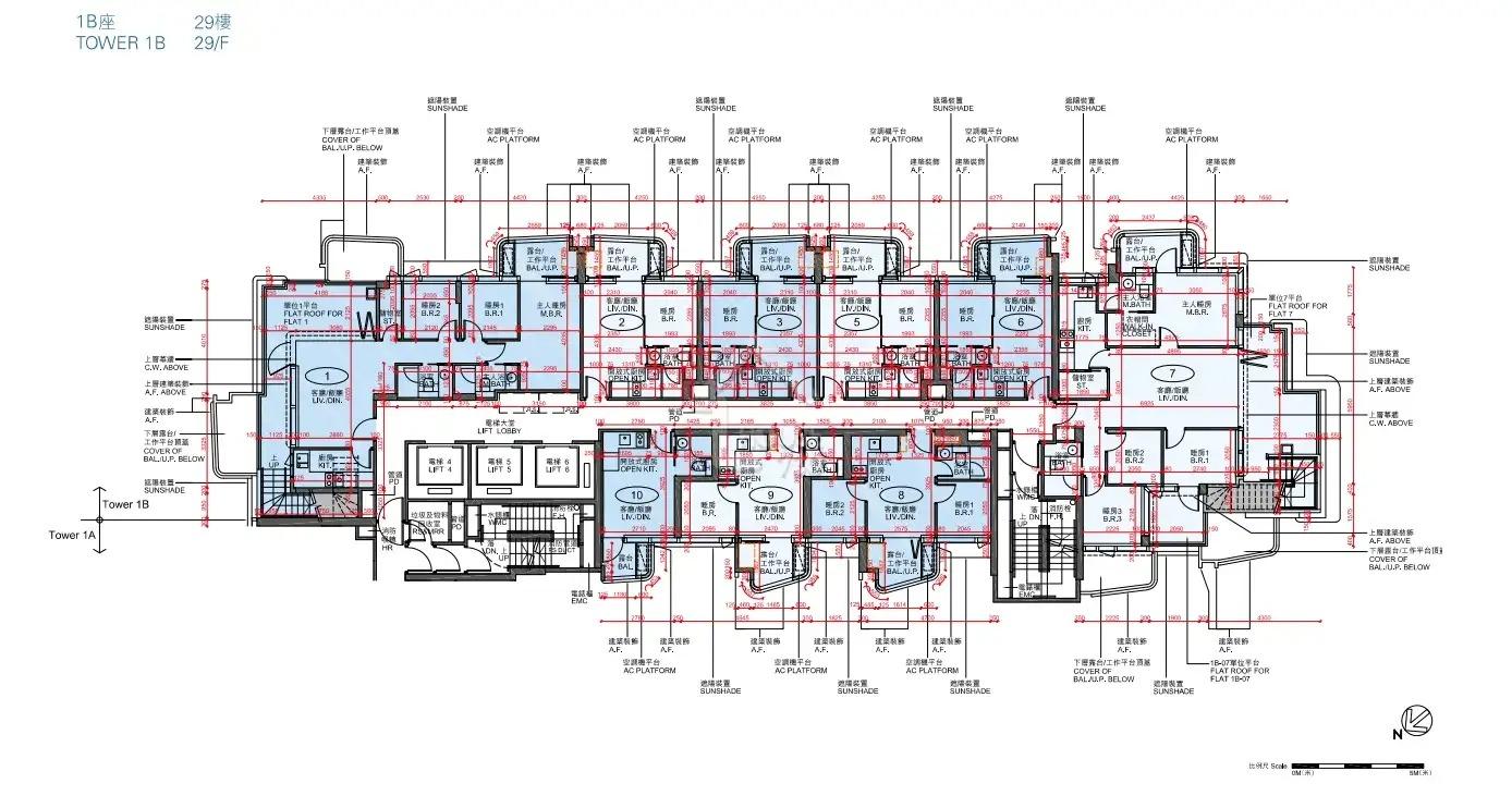
⇊Belgravia Place平面圖⇊
Belgravia Place第1期示範單位
「Belgravia Place」第1期設有3個無改動示範單位,涵蓋一房、兩房及三房間隔。當中以1A座23樓10室為藍本搭建的一房,實用面積264方呎。以1B座23樓2室為藍本搭建的兩房,實用面積346方呎;另為以1A座23樓3室為藍本搭建的三房,實用面積425方呎。
Belgravia Place第1期1A座23樓10室 實用面積264方呎一房
Belgravia Place第1期1B座23樓2室 實用面積346方呎兩房
Belgravia Place第1期1A座23樓3室 實用面積425方呎三房
Belgravia Place示範單位地址:尖沙咀美麗華廣場一期5樓
「Belgravia Place」第1期價單價錢
3月3日加推3號價單
「Belgravia Place」第1期於3月3日首輪發售138伙,即日開賣約4小時全數沽清。有見向隔客眾多,發展商即晚加推「添食」3號價單,涉及208伙,單位實用面積介乎199至457方呎,價單定價由359萬至868萬元,呎價介乎16,531元至19,152元。扣除最高10%折扣,折實售價由323.1萬至781.2萬元,折實呎價介乎14,878元至17,237元,折實平均呎價16,076元。
2月28日加推2號價單
「Belgravia Place」第1期於2月28日加推2號價單,涉及72伙。價單定價由463.2萬元至835.9萬元,呎價介乎16,642元至19,288元。扣除最高10%折扣,單位折實售價由416.88萬至752.31萬元,折實呎價介乎14,978元至17,359元,折實平均呎價15,986元。
2月22日首推1號價單
「Belgravia Place」第1期可謂「閃電」推盤,皆因於2月22日命名,翌日一口氣上載售樓說明書、開放示範單位及公布首張價單,涉及148伙,包括6伙開放式、66伙一房、66伙兩房及10伙三房,實用面積介乎199至457方呎。
價單定價由352.2萬至811.9萬元,呎價介乎16,487元至19,238元。扣除最高折扣10%計算,單位折實售價由316.8萬至730.71萬元,折實呎價介乎14,838元至17,314元;折實平均呎價15,902元,較去年11月同系同區新盤「曉柏峰」折實平均呎價17,602元,低開約9.7%。以折實入場價計,項目屬近半年最平市區新盤。
恒基物業代理營業(一)部總經理林達民形容項目首張價單為「釋放潛能價」,期望以較低的售價吸引市場關注,釋放樓市潛力。中原地產亞太區副住宅兼住宅部總裁陳永傑認為屬「減辣價」,已計算「減辣」因素,登記反應可反映「減辣」成效,加上開放式單位折實入場費由316.8萬元起,屬九龍市區新盤近5年第三低,料可吸引大批上車客進駐。另一方面,近月租金持續上揚,回報率亦穩步向上,區內新晉屋苑租市一向有價有市,平均實用呎租普遍45元至55元,部分更可高逾60元,甚至66元,租金回報可超過3厘。他預計「Belgravia Place」亦可吸引投資收租客入市,成新一代「收租王」。
Belgravia Place第1期銷售安排
3月7日次輪銷售
發展商安排3月7日(周四)進行次輪銷售,涉及208伙,3月6日(周三)晚上8時截票,3月7日(周四)下午5時進行抽籤。次輪銷售分為A1組、A組、B1組及B組時段,A1組及A組為大手客時段,買家必須選購最少1個實用面積為400方呎或以上單位、或最少2個但不多於4個單位;B1組及B組買家須選購最少1個但不多於2個單位。
3月3日首輪銷售
發展商安排3月3日(周日)展開首輪銷售138伙,包括5伙開放式、35伙一房、74伙兩房及24伙三房,實用面積介乎199至457方呎,扣除最高折扣10%,單位折實售價由316.8萬至752.3萬元,折實呎價介乎14,838元至17,359元,折實平均呎價約15,888元。首輪銷售分為A組及B組時段, A組為大手客時段,買家必須選購最少1個實用面積為400方呎或以上單位、或最少2個但不多於4個單位;B組買家須選購最少1個但不多於2個單位。首輪銷售最終接獲逾4,330票,超額認購逾30倍。
Belgravia Place第1期戶型分布、平面圖、車位
「Belgravia Place」第1期不設停車位。戶型分布方面,項目主打一房及兩房,合共佔641伙,佔所有單位約九成。一房設有430伙,實用面積介乎226至270方呎;兩房則有211伙,當中包括連衣帽間間隔,實用面積介乎294至374方呎。開放式佔24伙,實用面積介乎177至199方呎;以及46伙三房,實用面積介乎386至457方呎。至於3伙頂層特色戶,分布於兩座的29樓,實用面積介乎624至756方呎,各連227至630方呎天台。
全盤面積最細單位為第1B座2樓16室,開放式間隔,實用面積177方呎,連55方呎平台;面積最大單位為1B座29樓7室,四房間隔,實用面積756方呎,連160方呎平台及630方呎天台,平台外設有樓梯通往私人天台。
Belgravia Place第1期周邊配套、交通及校網
「Belgravia Place」第1期位於巴域街1號,對面為石峽尾街市。交通配套完善,距離港鐵石峽尾站約4分鐘步程,步行至大埔道亦有多條巴士及小巴路線往來西九龍、尖沙咀等地方。
「Belgravia Place」自設佔地逾約20,000方呎的兩層高會所「Club Belgravia」,設有多項多元運動設施,如室內籃球場,室內羽毛球場等。當中更打造全港首個私人屋苑室內滑板場「滑板極限翔」,並邀請滑板界專業團隊作為場地設施顧問,每一彎角起伏,均為滑板愛好者而設,真正實現UNLEASH YOUR SLASHES。場內設計由國際著名室內設計師Lilian Wu精心打造色彩奪目,配有鮮艷的壁畫圖案,為場地注入豐富的色彩元素,令極限運動增添視覺上的律動感。發展商更邀請被網民稱為「A0女神」的郭柏妍,親臨售樓處介紹會所設施,並即場表演踩滑板。
「Belgravia Place」為購物商場上蓋物業,商業總樓面面積達28,000方呎,預計有超過40間商舖配合,將引入多種文創商店。另外,區內購物、飲食、消閒、以至運動、娛樂及其他社區設施應有盡有。毗鄰文創社區,清新文化氣息濃厚,各式藝文小店富有特色同時保留了深厚歷史氣息。
校網方面,「Belgravia Place」小學校網為40校網、中學校網為深水埗區。







































