FINNIE懶人包|15秒步行達鰂魚涌站 一文睇清生活配套、示範單位及價單(多圖有片)
鐵路概念盤引關註!由宏安地產(1243)發展的鰂魚涌單幢式商住項目「FINNIE」位於芬尼街9號,距離港鐵鰂魚涌站B出口僅約15秒步程,毗鄰港島東商業中心。項目最新公布首張價單,一房「4字頭」入場,料吸引投資客及分支家庭客。am地產特意為讀者準備「FINNIE」懶人包,一文睇清「FINNIE」價單、樓書平面圖、示範單位、呎價、價單、戶型、配套設施、交通與位置等重要資訊。
FINNIE戶型分布、平面圖
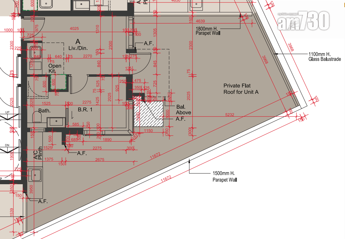
「FINNIE」提供90伙,屬單幢式物業,實用面積介乎223至626方呎,戶型涵蓋一房至三房套間隔。項目基座設有商舖和會所,不設停車位。住宅樓層從2樓至29樓(不設4樓、13樓、14樓及24樓)。標準單位涉及41伙一房及41伙兩房,實用面積介乎245至364方呎,標準層每層僅設4戶,配備2部電梯。當中一房分布於3樓至26樓的A室和D室,以及27樓A室,單位採開放式廚房設計,A室浴室須經由睡房到達,D室則採獨立浴室;兩房分布於3樓至26樓的B室和C室,以及27樓B室,兩間睡房與客飯廳同坐向,採開放式廚房設計,B室浴室設有窗戶。
另外,項目提供8伙特色單位,包括2樓所有單位、27樓C室,以及28樓和29樓所有單位,實用面積介乎223至626方呎。當中有3伙平台面積大過內櫳,超出面積最多單位為2樓D室,一房間隔,實用面積248方呎,連872方呎平台,平台多出逾624方呎或約2.5倍。
全盤面積最細單位為2樓A室,實用面積223方呎,一房間隔,連433方呎平台;全盤面積最大為29樓A室,實用面積626方呎,三房一套間隔,連254方呎平台和505方呎天台,單位層與層之間高度達4米,客廳設約5米闊落地玻璃躺門,外連接平台享維港景觀,住戶可經由室內樓梯抵達天台。
FINNIE示範單位
「FINNIE」共設2個示範單位,包括1個連裝修一房,單位為25樓D室,實用面積為270方呎,層與層之間的高度最高約3.15米,單位外接22方呎露台。單位的玻璃幕牆選用高效能的雙層中空玻璃配低輻射鍍膜,設計融合現代簡約風格與實用功能,以優雅的木條子裝飾搭配細膩的木紋地磚為主調,營造出溫馨而不失格調的都市居所氛圍,玄關處精心配置的高身儲物櫃。
客飯廳設計融合了實用性與美學價值,方正的客廳布局靈活實用,深灰色牆面與米白色四人沙發的搭配營造出沉穩而溫馨的氛圍。空間的亮點是由著名設計師Josep Lluís Xuclà精心打造極具現代感的座地燈,為整個空間增添了柔和的光影效果。飯廳區域以優雅的雲石圓桌為中心,搭配精選的座椅,牆面上悉心挑選的創意畫作為整個空間增添了藝術氣息。開放式廚房設計融合現代生活方式與高端品質。廚房以木色調為主,搭配玻璃背板,營造出明亮寬敞的空間感。內置的調味掛架、掛勾和電插座等細節設計,體現了對生活品質追求。
浴室設計富有簡約風與實用性。淋浴區域配備了德國頂級衛浴品牌HANSGROHE的時尚雨淋式花灑和多功能水龍頭套裝,搭配STIEBEL ELTRON即熱式電熱水爐及PANASONIC浴室寶。精心挑選的紋理牆身磚不僅增添了現代摩登感,更營造出獨特的視覺氛圍。淋浴間玻璃門特別使用推拉門設計,節省空間同時增加使用靈活性。意大利CATALANO品牌的座廁以其優雅的線條美感和卓越的舒適度脫穎而出,體現了設計師對細節的極致追求。洗手盆巧妙增加了置物空間,方便擺放日用品,而充裕的整體置物設計,包括配有層架和電插座的吊櫃,則充分滿足了收納和使用電器的需求。
主人睡房寬敞的轉角玻璃窗不僅大幅提升了房間的自然採光,還為居住者帶來開闊的視野體驗。靠窗處精心擺放了一張時尚的布藝雙人油壓床,既舒適宜人,又巧妙增加了額外的收納空間。床側的精緻茶几為日常生活增添了便利,牆身擺放個性掛畫,而特別訂製的木色高身入牆衣櫃則是空間利用的典範。衣櫃的特色玻璃門不僅突顯了空間的高貴感,更與整體佈局和諧統一。
FINNIE開價|首推30伙 一房最平428.8萬 折實均呎19503元(有片)|鰂魚涌新盤
兩房交樓標準示範單位 25樓C室
項目另提供一個交樓標準示範單位為25樓C室,兩房間隔,實用面積361方呎,層與層之間的高度最高約3.15米,單位外接38方呎的露台及工作平台。室內以木條子裝飾搭配木紋地磚為主調,呈現溫潤質感,彰顯現代簡約風格。大門安裝美國矽谷品牌 LOCKLY智能門鎖,集視頻監控與手機遠程開門功能。
開放式廚房配備了法國皇室品牌De Dietrich的一系列電器,包括雙頭電磁煮食爐、高效抽油煙機、多功能蒸焗爐和節能雪櫃,單位廚房亦特設1.8米高雙門雪櫃為住戶提供卓越的烹飪體驗。環境舒適度方面,選用了日本DAIKIN變頻冷暖分體式空調機,兼具節能和除菌功能。廚櫃轉角位亦加上特別設計的櫃門,令轉角空間可以充分利用。
主人睡房設計結合空間感與功能性,為住戶打造舒適宜人的私密空間。寬敞的房間布局搭配玻璃大角窗,充分引入自然光線。睡房靈活的設計可輕鬆容納雙人床,同時巧妙利用每一寸空間。露台及工作平台設有收納櫃及De Dietrich洗衣乾衣機,洗衣及晾衣工作一站式分配於戶外位置,保持衛生同時善用空間,突顯大面積私人戶外空間的可塑性。露台及工作平台旁設有空調機平台,方便直接由露台及工作平台檢查、清洗及維修空調機室外機,節省搭建棚架或租用吊船之費用;露台及工作平台採用落地玻璃推拉門設計。
FINNIE示範單位地址:尖沙咀天文臺道8號
FINNIE價單
3號價單:加推最後22伙 折實價507.1萬起
「FINNIE」於8月24日加推3號價單,涉及最後22伙,包括7伙一房及15伙兩房。以「120天現金付款計劃」最高折扣15%計算,單位折實售價由507.1萬至914.3萬元,折實呎價介乎20,698元至25,118元,折實平均呎價約22,741元。入場單位為23樓A室,實用面積245方呎,一房間隔,折實售價507.1萬元,折實呎價20,698元。
2號價單:加推30伙 折實價502.6萬起
「FINNIE」於8月18日加推2號價單,涉及30伙,分別為14伙一房和16伙兩房。以「120天現金付款計劃」最高折扣15%計算,單位折實售價由502.6萬至854.3萬元,折實呎價介乎18,615元至23,470元;市值逾2億元。入場單位為7樓D室,實用面積270方呎,一房間隔,折實售價502.6萬元,折實呎價18,615元。
首張價單:首推30伙 折實價428.8萬起
「FINNIE」於8月14日公布首張價單,涉及30伙,提供2種付款計劃,最高折扣達15%,包括20伙一房及10伙兩房,實用面積介乎245至364方呎,價單定價由504.5萬至892.5萬元,呎價介乎20,592元至24,723元;以最高折扣15%計算,單位折實售價由428.8萬至758.6萬元,折實呎價介乎17,502元至21,014元,一房全數單位折實價低於500萬元。
宏安地產執行董事程德韻形容首批單位為「CHILL值價」,項目鄰近港鐵站及商圈,定價參考項目因素決定,享舒適社區氛圍。她指,「FINNIE」將於周五(16日)對外開放示範單位,周六(17日)展開收票,最快下周末開售。首批入場單位為3樓A室,實用面積245方呎,一房間隔,折實售價428.8萬元,折實呎價約17,502元;兩房售價最低單位為3樓C室,實用面積361方呎,折實售價699.9萬元,折實呎價19,388元。
「FINNIE」首張價單共有2種付款辦法供選擇,包括120天現金付款計劃(照售價減5%)和建築期付款計劃(照售價)。買家另享有一系列的售價折扣優惠,包括3%的「3分鐘太古商業圈」優惠、1%的「1站過海」、2%的「站旁買磚」優惠及2%的「港、九東雙域」。「宏地薈」會員則可享2%的「宏地薈」會員折扣。選建築期付款計劃入市的買家,於簽署臨時買賣合約後的日期後180天內提早付清成交金額餘款,可享5%現金回贈;於181至270天內提早付清成交金額餘款,可享4%現金回贈;271至360天內提早付清成交金額餘款,可享3%現金回贈。
FINNIE示範單位|270呎一房及361呎兩房亮相 融合實用性與美學價值|多圖有片
FINNIE銷售安排
3號銷售安排:22伙價單發售 最平507.1萬
「FINNIE」落實於8月28日以先到先得形式發售最後22伙,涉及第3張價單全數單位。以「120天現金付款計劃」最高折扣15%計算,單位折實售價由507.1萬至914.3萬元,折實呎價介乎20,698元至25,118元,折實平均呎價約22,741元。入場單位為23樓A室,實用面積245方呎,一房間隔,折實售價507.1萬元,折實呎價20,698元。發售時間由當日中午12時至晚上8時。
2號銷售安排:60伙價單推售 最平428.8萬
「FINNIE」落實於8月24日公開發售60伙,涵蓋首2張價單全數單位,以「120天現金付款計劃」最高折扣15%計算,折實售價由428.8萬至854.3萬元,折實呎價介乎17,502元至23,470元。入場單位為3樓A室,實用面積245方呎,一房間隔,折實售價428.8萬元,折實呎價約17,502元。據銷售安排顯示,項目將會分為A及B組揀樓,A組為優先認購組別,買家須認購2至4伙,惟不可揀選多於2伙一房單位;而B組買家可認購1至2伙。
首張銷售安排:8伙特色戶招標 面積223呎起
「FINNIE」落實於8月23日起以招標形式發售8伙,涵蓋全數共8伙特色單位,實用面積介乎223至626方呎。單位包括位於2樓的平台特色單位、位於27樓至28樓的高層平台特色單位,以及位於29樓的連平台及天台的特色單位。項目特別設計引人頂樓全層平台連天台特色單位「FINNIE Skies」,29樓A室屬三房套房設計,實用面積626方呎,天台面積505方呎,平台面積254方呎,層與層之間高度達4米;而單位私人平台更設有樓梯直達私人天台。
FINNIE項目特色
「FINNIE」智能設計由外到內全面涵蓋,當中包括Smart Pass、Smart Door及Smart Interne三大特色。Smart Pass指項目公共空間配備二維碼(QR Code)進出系統、智能感應開門系統及無接觸升降機按鈕。Smart Door指項目的住宅單位大門裝設美國矽谷品牌LOCKLY智能門鎖,集合多項先進技術,除全球首創PIN Genie防窺視密碼鍵盤及3D FPC活體指紋感應技術外,住客亦可實時通過智能門鎖上視像鏡頭查看訪客及以手機應用程式遙距開啟大門。Smart Internet指每個單位預設CAT-6區域網絡數據線和Wi-Fi系統,住戶只需接駁指定互聯網供應商,即能無縫連接全屋智能設備及互聯網。為配合智能家居的發展,項目已預留智能家系統線路,方便自主打造理想的智能生活。
項目響應ESG趨勢,推出Smart Eco特色。這項創新融合環保與智能科技,多方面得到體現。會所內公共空間裝設自動感應開關智能燈具,項目的住宅單位內窗戶更配備高效能雙層中空輻射鍍膜玻璃,智能電表更可協助住戶自行管理住宅單位用電情況;這一系列環保節能措施不僅彰顯「FINNIE」對可持續發展的承諾,還為住戶帶來實際的經濟效益。「FINNIE」現正申請加入「光纖 接達樓宇標籤計劃」,致力為住戶打造智能化居住環境。待計劃落實後,先進的光纖網絡將為每個家庭帶來超高速連線。無論是個人娛樂還是商業應用,住戶都能盡情享受頂尖的通訊服務,體驗科技帶來的便利與效率。 「FINNIE」的智慧設計由內而外,將光纖網絡視為現代生活的核心。
「FINNIE」積極融入可持續發展理念,通過精心設計的節能方案、綠色建築技術、減碳措施和創新科技應用,為住戶打造了一個理想的綠色生活空間。每個單位都配備了落地鋁框玻璃窗,不僅讓戶外美景盡收眼底,更大大拓展了室內視野。同時,玻璃幕牆採用高效能雙層中空輻射鍍膜玻璃(IGU),有效阻隔熱量和紫外線輻射,既提升居住舒適度,又達到節能減碳的目標。項目在公共空間的設計上同樣注重環保節能。會所等區域採用高能源效益設備,裝設自動感應開關智能燈具,這些創新設施不僅降低了能源消耗,還提升了整體的居住體驗。「FINNIE」正積極申請「綠建環評既有建築2.0版綜合評估計劃」的銅級評級。
FINNIE周邊配套
項目距離港鐵鰂魚涌站B出口僅約15秒步程,周邊設有多個巴士站及電車站,住戶可快捷地往返港島東西兩端,亦可通過港鐵港島綫和將軍澳綫的轉車功能來往港九新界。項目亦鄰近港島東核心商業區,步行至太古坊約3分鐘,太古坊有超過300家國際大企業進駐。
生活配套方面,項目鄰近區內大型購物中心太古城中心及康怡廣場,太古城中心商場總面積約111萬方呎,座落港鐵太古站上蓋,設有逾170家商戶以及食肆、戲院及室內溜冰場。項目亦鄰近鰂魚涌公園,佔地約12.49公頃,享綠化空間及海濱長廊。
至於校網,「FINNIE」小學為14校網,中學屬東區。









































