意嵐懶人包|向南單位望海景 一文睇清景觀、平面圖、價單及生活配套|多圖有片
「玩具大王」蔡志明旗下旭日國際旗下屯門青山公路青山灣段發展項目「黃金海灣」第1期「意嵐」震撼價登場,入場價低至「1字頭」,項目將於周六(20日)首輪推售188伙。am地產特意為讀者準備項目懶人包,一文睇清「意嵐」景觀、價單、樓書平面圖、示範單位、呎價、價單、戶型、配套設施、交通與位置等重要資訊。
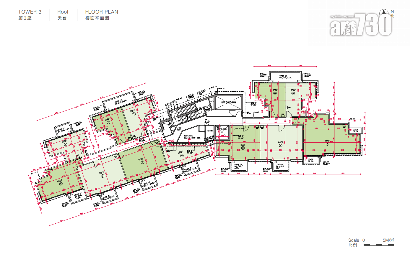
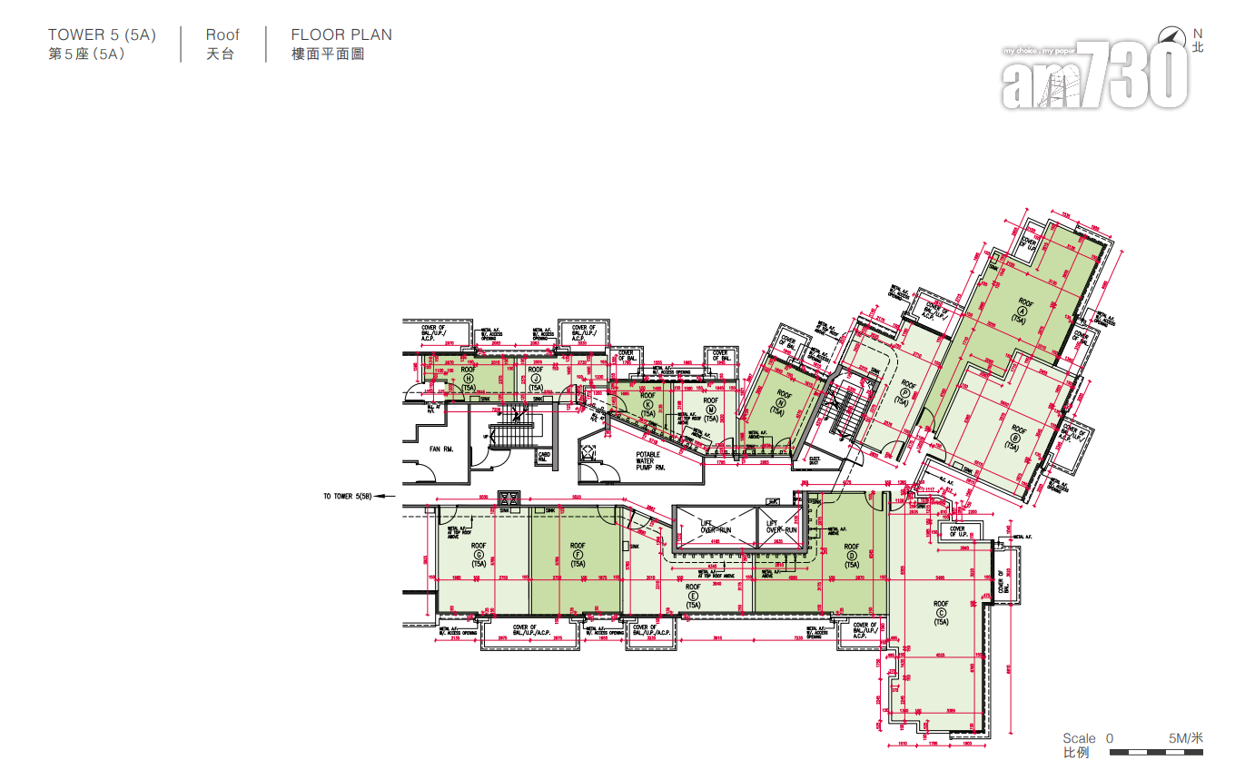
意嵐戶型分布、平面圖、車位
「意嵐」全盤提供692伙,戶型涵蓋開放式至三房,實用面積由182至767方呎。項目設兩座住宅大樓,包括第3座及第5座,第5座細分A、B兩翼。第3座標准單位每層設12伙及3部升降機;第5A及5B座標准單位每層分別設13及12伙,均設3部升降機。
全盤約七成單位可享海景,第1期海景單位集中於向南或東南方向,涉及第3座A至G室;項目向東單位外望相鄰項目大樓,涉及第5A座H/J/K/M室,以及第5B座J/K/M/N室,另第5A座A/P/N室朝向東南方,有意避開樓景,望向公路景。向西單位則望向內園景或部分海景,涉及第5A座D至G室,以及5B座A至E室,惟海景亦有機會將來被項目第二期所遮擋。其餘向北伙西北方向的單位涉及第3座H/J/K/M/N室,以及第5B座F和G室,主要望公路及學校,部分高層單位可望山景。
12戶爭一個車位
戶型分布方面,標準單位提供623伙,實用面積由204至767方呎,主打中小型單位,開放式及一房合佔近六成。開放式提供254伙,實用面積由204至328方呎;一房提供154伙,實用面積由300至355方呎;兩房涉180伙,實用面積由399至516方呎;三房涉35伙,實用面積包括654及767方呎。
另提供69伙特色單位,實用面積由182至767方呎,包括34伙連平台特色戶,平台面積由47至270方呎,以及35伙連天台特色戶,天台面積由87至622方呎,住戶均需經公共樓梯前往。
項目停車位位於地下及1樓,合共提供58個住宅停車位,相當於平均每12戶伙爭一個車位。項目預計關鍵日期為2025年11月21日,樓花期長約17個月。
⇊意嵐平面圖⇊
意嵐示範單位
發展商提供4個示範單位,其中包括第5B座18樓N室經改動示範單位,一房(開放式廚房)間隔,實用面積316方呎,包含一個22方呎三合一露台及16方呎工作平台。單位全屋以「瑞典蔚藍海岸」為主題,並以淺木色為主調,配搭藍色波浪形紋路作點綴,襯以木質和玫瑰金的家具及具藝術感配飾擺設,營造霞光下水波躍動的意境。
大門玄關處配備收納空間十足的鞋櫃,中間位置為飾櫃,並配以黑色鏡面裝飾櫃面。全屋地板以淺色木紋地板鋪砌,客飯廳連接戶外露台,採用落地大玻璃趟門連接三合一露台。露台放置原木色雙層茶几、卡其色露營椅、露營燈及綠色盤栽,並鋪上不規則流線型綠色圓形地毯,由内而外感受悠然度假的氣氛。
至於走廊延伸至客飯廳位置以淺棕色主調打造柔和木紋飾面牆身,並配搭波浪型層板及藍色波浪流線型玻璃間隔牆,以不同線條圖案演繹浪花形態。旁邊擺放深藍色雙座布藝沙發及金棕色抱枕,客廳中間位置設有精緻圓形深啡色茶几,並擺放淺色雲石托盤及酒具。廚房使用L型淺色雲石工作台,配以淺棕色木紋廚櫃,開放式廚房配備精心挑選的國際品牌設備,包括雙頭煤氣煮食爐、抽油煙機、七合一微波蒸烤焗爐、洗衣乾衣機及雪櫃,旁邊延伸一張具備工作及進餐功能的枱面。
睡房採用偌大玻璃窗設計提升採光度,運用簡約大地色系及玫瑰金作主調。雙人床放在靠窗位置,運用地台設計,打造更多收納空間。床邊設置多個層架,供住戶放置起居室日用品,衣櫃同樣運用懸吊式設計及磨砂直紋玻璃櫃門,一旁配備全身鏡、掛衣杆及層架。浴室貫徹全屋色調,整體牆身運用原木色系,配以水磨石地板,延伸至淋浴間牆身,配上黑色洗手盤及不規則掛鏡。
另第3座18樓A室交樓標準示範單位,為三房一套(獨立廚房)間隔,實用面積653方呎,連39方呎露台及16方呎工作平台,合併成特大的戶外活動空間。全屋貫徹淺木色主調,鋪砌淺木紋地板及選用淨白牆身。單位間隔寬闊實用,切合年輕家庭住客的需要。單位大門採用LOCKLY纖幼智慧電子門鎖,多種開鎖方式,為住戶提供高私隱度且便捷的生活享受。玄關位置同樣設有收納容量大的鞋櫃及儲物櫃,中空位置可擺放日常生活用品。
單位客飯廳呈長方形設計,空間寬敞實用,住戶可輕鬆放置各種大型傢俬,如擺放8人餐桌及3座位沙發,邀請親朋聚會亦相當足夠。客飯廳以玻璃趟門設計連接室外露台,為屋內提供大量自然光線,延伸室內空間,令客飯廳更顯寬敞明亮。
意嵐示範單位|653呎三房長方形客飯廳寬敞實用 輕鬆擺放大型家具(多圖有片)|屯門新盤
第5B座18樓N室,一房開放式廚房間隔,實用面積316方呎,連22方呎三合一露台及16方呎工作平台,合拼成特大的戶外活動空間。客廳為長方形設計,讓住戶能夠隨意擺放喜愛的傢俬,一旁有偌大的落地玻璃趟門,連接室外三合一露台,廣納自然光線,令單位更見明亮溫馨。廚房為開放式設計,白色雲石工作台搭配灰白色雲石廚房牆身,配以淺棕色木紋廚櫃,提升整體和諧度。睡房呈長方形設計,空間寬敞,讓住戶輕鬆放置雙人床及衣櫃等睡房家具,亦設有偌大玻璃窗吸納自然光線,飽覽青山灣遼闊的海景。
至於第3座18樓D室為兩房開放式廚房間隔,實用面積447方呎,連22方呎三合一露台及16方呎工作平台,全屋不設走廊位置。廚房同為L型開放式設計,使用淺色雲石工作台,同時善用高樓低優勢,廚房上方位置設置大量儲物櫃,增加收納空間,整個廚房選用多個淺木色系大容量廚櫃,更有雙層儲物推拉籃,提供貯物空間。工作台備有三腳插座、USB插座及調味架,洗滌盤亦附有砧板,方便住戶日常煮食,廚房設備齊全。
意嵐示範單位|一房及兩房採開廚設計 淺木色儲物櫃空間足|多圖有片
示範單位位置:尖沙咀麼地道安達中心B2層
意嵐價單
2號價單:提供80伙 折實平均呎價10686元
「意嵐」於7月15日加推第2號價單,涉及80伙,涵蓋43伙開放式、32伙兩房及5伙三房,實用面積介乎204至653方呎。扣除最高折扣12%後,折實售價由189.7萬至703.6萬元,當中有16伙折實售價低於200萬元;折實呎價介乎9,200元至11,905元,折實平均呎價10,686元,較首張價單9,988元,高近7%。
最低售價單位為第5B座10樓H室,開放式間隔,實用面積204方呎,折實售價189.7萬元,折實呎價9,299元。最低呎價單位為第5B座8樓J室,開放式間隔,實用面積215方呎,折實售價197.8萬元,折實呎價9,200元。
首張價單:提供139伙 折實平均呎價9988元
「意嵐」於7月8日公布首張價單,共139伙,涵蓋72伙開放式、58伙一房及9伙兩房,實用面積由206至444方呎。定價由209.3萬至496.5萬元,呎價介乎10,122元至13,511元。扣除最高折扣12%,折實售價由184.2萬至436.9萬元,折實呎價介乎8,908元至11,889元,折實平均呎價9,988元,為自2016年7月同區「豐連」首批折實平均呎價8,826元後,近8年以來新低。
旭日國際集團地產開發部董事總經理李炳餘形容是次定價為「黃金西餅價」,因項目鄰近黃金海岸,希望定價吸引更多「西餅客」入市。他稱,是次定價已參考同區一手及二手樓價,亦考慮到項目的自身優勢,希望能夠吸引年輕人、投資客及用家入市。被問及集團能否獲合理利潤時,他強調是次定價最主要是視乎市況。
最低售價為5B座8樓K室,實用面積206方呎,開放式間隔,折實售價184.2萬元,折實呎價8,942元;最低呎價為5A座5樓D室,實用面積444方呎,折實售價395.5萬元,折實呎價8,908元。是次「意嵐」折實入場價低見184.2萬元,對上一個低於此水平新盤、追溯到2014年7月大埔嵐山第I期,當時首批開放式單位折實售價165.41萬元。
意嵐銷售安排
首輪銷售:價單推售188伙 184.2萬入場
「意嵐」安排於周六(20日)以價單形式首輪推售188伙,涵蓋88伙開放式、54伙一房、41伙兩房及5伙三房,折實售價由184.2萬至703.6萬元,折實呎價由8,908元至11,900元,折實平均呎價10,209元。以折實售價計算,當中一半單位低於300萬元。
發售當日共設三個時段揀樓,分別為S組、A組及B組,當中S組為指定公司員工組別,以先到先得形式優先揀樓;A 組及B組分別以抽籤形式發售,A組買家須購買2伙至5伙單位或至少購買1伙指定三房單位,B組買家須購買1伙至2伙單位。
意嵐周邊配套
「黃金海灣」打造有雙會所,連園林總佔地面積約10萬方呎,提供45項會所設施,擁八大主題。第一期會所「Club Uppland」位於東面,以「秋季森林」為主題,配合項目被山戀圍繞的優勢,打造彷彿沉浸在加拿大享負盛名的夢蓮湖森林之中的會所空間。Club Uppland」設有多個戶外綠野空間,住戶可攜同親友一起於戶外野餐,享受寧靜的大自然。會所亦設有「竹林瑜伽」進行室外瑜伽;以及兒童尊享「與車童行」,享受室外駕駛兒童電動車的樂趣。
「Club Uppland」內的24小時健身房備有各類型的運動設備及運動空間,包括設有超過15種新型健身器材的「健身工房」、提供系統形式訓練的「極限單車」、「瑜伽天地」及「戶外訓練區」,同時設有室內球場「多元運動場」。亦設有多個室內設施包括多功能宴會廳「意嵐盛宴」及「多元聚會廳」,沿用大自然樹木作設計靈感,打造高私隱度的宴會廳。住戶更可配合租用一旁的烹飪工作室、室外燒烤區盡情享受人廚樂趣,舉辦不同派對,廣宴親朋。會所更備有多元化的多媒體室。
交通方面,附近沒有鐵路覆蓋,住戶主要依靠巴士或小巴出行,可乘坐53號前往荃灣,61M前往荔景,52X、252B、261B開往油尖旺區,252X前往藍田,261X前往粉嶺,港島方面,可乘坐城巴952、952P或962至銅鑼灣,亦可乘坐61A前往屯門公路轉車站換乘至更多地區。另外,小巴140M可達青衣,43線循環往來新墟街市及掃管笏。
至於生活配套,步行10分鐘內可達黃金海灣商場,亦可乘車前往屯門市中心或荃灣商場。
「意嵐」坐擁71小學校網,鄰近哈羅香港國際學校,中學為屯門區。區內亦設高等學府,包括嶺南大學及香港珠海學院。





















































