啟德海灣|示範單位+價單+價錢+平面圖+樓書+交通+關鍵日期懶人包(多圖有片)
今年以來最大型新盤、嘉華國際(173)、會德豐地產及中國海外(688)合作發展的「啟德海灣」分為2期發展,共涉2,138伙,屬跑道區規模最大項目之一。項目第1期已上載售樓說明書,提供1,017伙,單位實用面積介乎269至771方呎,戶型涵蓋一房至三房,預計2025年3月31日入伙。
啟德海灣首張價單 折實平均呎價19,798元
「啟德海灣」第1期搶先在明日(25日)新一份《施政報告》出爐前揭曉首張價單,在10月24日公布首批208伙價錢,單位戶型涵蓋一房至三房,提供最高20%折扣優惠,加上提前付清樓價的3%現金回贈後,折實入場由575.016萬元起,折實呎價則由17,987元起;折實平均呎價19,798元,為2017年5月天寰首批165伙折實平均呎價17,888元後,為超過6年來同區新盤首批新低水平。資料顯示,啟德PARK PENINSULA對上推售的全新盤「MIAMI QUAY I」,於去年9月推出首批130伙,折實平均呎價22,452元,即相隔一年多,「啟德海灣」第1期首批最新低開近12%。
「啟德海灣」第1期首批最低售價單位為第2B座1樓F室,實用面積307方呎,一房間隔,折實售價575.016萬元,折實呎價18,730元。最低呎價單位為第2B座2樓H室,實用面積431方呎,兩房(開放式廚房)間隔,折實售價775.224萬元,折實呎價17,987元。
啟德海灣開價|第1期首推208伙 一房最平575萬 折實均價19798元(附示範單位圖)
啟德海灣第2張價單
啟德海灣第2張價單涉及118伙,涵蓋28伙一房、83伙兩房,以及7伙三房,價單定價由759.5萬至1,992.3萬元,呎價介乎23,876元至33,998元。單位折實售價則由589.372萬至1,546.083萬元,折實呎價介乎18,528元至26,384元。
啟德海灣第1期會所連園林逾15萬呎 為住戶打造三大動感生活
啟德海灣自開價以來,市場反應正面,錄得不少查詢,示範單位昨日(25日)率先開放予VIP參觀,單日錄得逾千人次參觀,今日(26日)起開放予公眾參觀,將於明日(27日)起收票,視乎市場反應再作加推及銷售部署。
對於新一份《施政報告》對樓市推出「減辣」措施,温偉明認為是利好消息,政府今次「減辣」屬大刀闊斧,相信可帶動成交量,樓價不會大幅飆升。另外,《施政報告》重提跑道區連接啟德站的集體運輸系統,他指對區內發展具重大鼓舞作用,惟「啟德海灣」目前希望以量取勝,故暫未有計劃加價。「啟德海灣」設有住客會所「CLUB SUPER MARINA」,會所連園林面積合共逾15萬方呎,提供約65項室內外玩樂設施,為住戶打造Active Fitness三大動感生活,包括「四季暢泳館」,設有3大游泳池,為區內罕有;「24 小時互動健身館」提供逾6,000方呎的室內外健身空間
啟德海灣地址為承豐道15號,位置佳交通方便(資料圖片)
啟德海灣示範單位|第2B座18樓E室兩房連儲物室經改動示位
「啟德海灣」第1期主打兩房單位,佔整個期數約55%。項目設有3個示範單位,其中以第2B座18樓E室為藍本搭建的兩房連儲物室經改動示範單位,實用面積553方呎,單位設計以現代年輕及追求潮流生活品味的家庭為設計藍本,鮮明色彩配合海洋的深藍色,呼應「啟德海灣」位於維多利亞港,盡享國際級海濱生活的地理優勢;加上富時代感的線條,充滿著別樹一格的濃厚活力。
啟德海灣示範單位|第1期553呎兩房 一改動變身擁迷你居家酒吧|多圖
↓↓啟德海灣示範單位|第2B座18樓E室兩房連儲物室經改動示位↓↓
啟德海灣示範單位|第1期432及553呎兩房 大細房設計住戶靈活使用
「啟德海灣」第1期主打兩房單位,佔整個期數約55%。項目設有3個示範單位,分別為兩房連儲物室經改動示範單位及無改動示範單位。其中以第2B座18樓E室為藍本搭建的兩房連儲物室無改動示範單位,實用面積553方呎。
↓↓啟德海灣示範單位↓↓
啟德海灣示範單位|首度開放305及437呎一房 豪華跑車作設計靈感 展輕奢現代風|多圖
發展商首度開放兩個一房示範單位予傳媒參觀,其中以第2A座18樓E室為藍本搭建的一房連裝修傢俬無改動示範單位,實用面積437方呎。單位以豪華跑車作設計靈感,輕奢現代風為主題,以橙調為基礎,色感溫暖,帶出奢華幸福快樂的意境。
單位間隔四正,空間感十足;長方形的客飯廳不設玄關位,盡用大廳每吋空間,日字形長廳擺放梳化後仍覺寬敞。客飯廳布置於柔和的橙調中注入多樣化藝術元素,設計同時引入跑車的流線型的原素,充分利用優雅簡潔的線條、高質感色彩及輕奢古典元素,彰顯出低調奢華質感。
↓↓啟德海灣示範單位|第2A座18樓E室一房連裝修傢俬無改動示位↓↓
↓↓啟德海灣示範單位|第2A座18樓J室一房交樓標準無改動示位↓↓
啟德海灣I折扣
- 供樓利息回贈折扣 簽署臨時合約之買方可獲額外售價 4%的供樓利息回贈折扣優惠。
- 定期存款回贈折扣 簽署臨時合約之買方可獲額外售價 2%的定期存款回贈折扣優惠。
- 印花稅折扣 簽署臨時合約之買方可獲額外售價 3%的印花稅折扣優惠。
- 特選客戶折扣 簽署臨時合約之買方可獲額外售價 5%的特選客戶折扣優惠。
- 星級發展商 FANS 折扣 簽署臨時合約並同時滿足三項條件之買方可獲額外售價 1%的星級發展商 FANS 折扣優惠。
啟德海灣I付款計劃 「特選客戶即供付款計劃 (照售價減 7%)」
- 買方須於簽署臨時合約時繳付相等於成交金額 5%作為臨時訂金。買方須於簽署臨時合約後 5 個工作日內簽署正式合約。
- 成交金額 5%即加付訂金須於買方簽署臨時合約後 60 天內由買方付清。
- 成交金額 90%即成交金額餘款須於買方簽署臨時合約後 180 天內或於賣方就其有能力將有關住宅物業有效地轉讓予買方一事向買方發出通知的日期後的 14 日內由買方付清,以較早者為準。
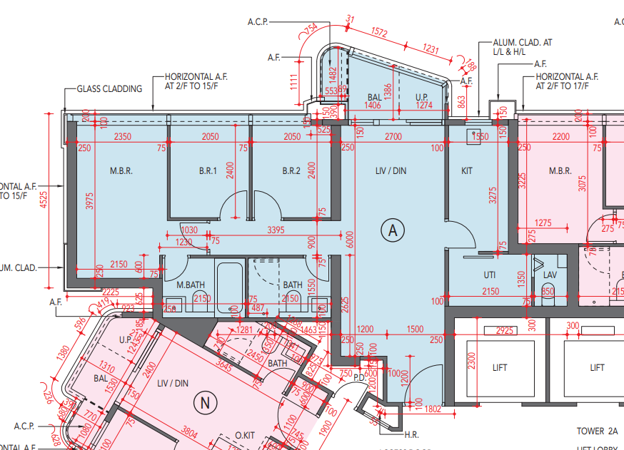
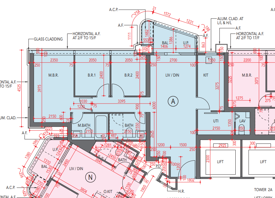
啟德海灣1期平面圖
啟德PARK PENINSULA「啟德海灣」項目第1期已上載售樓說明書,提供1,017伙,單位實用面積介乎269至771方呎,戶型涵蓋一房至三房,預計2025年3月31日入伙。
據啟德PARK PENINSULA「啟德海灣」樓書顯示,「啟德海灣」第1期由3座相連物業組成,為第2A、2B及2C座,第2A座標準樓層設13伙,第2B座涉9伙,第2C座則為12伙,各座均備有3架升降機。
項目當中主打兩房,佔564伙或約55%;一房及三房分別提供388伙或57伙;另有8伙連平台或天台特色戶,當中平台面積由122至505方呎,天台僅設2伙,分別為367及466方呎。
啟德海灣I生活配套
近年政府集中主力落於啟德發展計劃,設有多間大型百貨公司進駐該區,包括AIRSIDE、雙子匯及K11啟德零售館,以及長達1500米的地下購物街,將成為九龍東核心商圈。而社區配套方面,包括啟德體育園、九龍灣單車公園,東啟德遊樂場,具備豐富的運動及娛樂場所。
交通方面,啟德海灣鄰近啟德公眾碼頭,假日期間,富裕小輪將提供前往北角碼頭至觀塘碼頭等渡輪服務。而啟德承豐道亦設有多條巴士路線來往東九龍及港島各區,具備多種交通選擇。
校網方面,啟德海灣屬34小學校網,中學為九龍城區。
即睇啟德海灣最新資訊 (House730)

























































