天璽.天懶人包|無縫連接啟德站 一文睇清平面圖、示範單位及生活配套(多圖有片)|啟德新盤
奉行「月月有樓賣」的新鴻基地產(016)旗下啟德地王新盤「天璽.天」9月強勢登場,屬區內唯一可全天候無縫連接港鐵啟德站項目,以空中花園分隔設四大區域,凸顯豪宅尊貴氣質。am地產特意為讀者準備「天璽.天」懶人包,一文睇清「天璽.天」價單、樓書平面圖、示範單位、呎價、戶型、配套設施、交通與位置等重要資訊。
天璽.天戶型分布、平面圖、車位
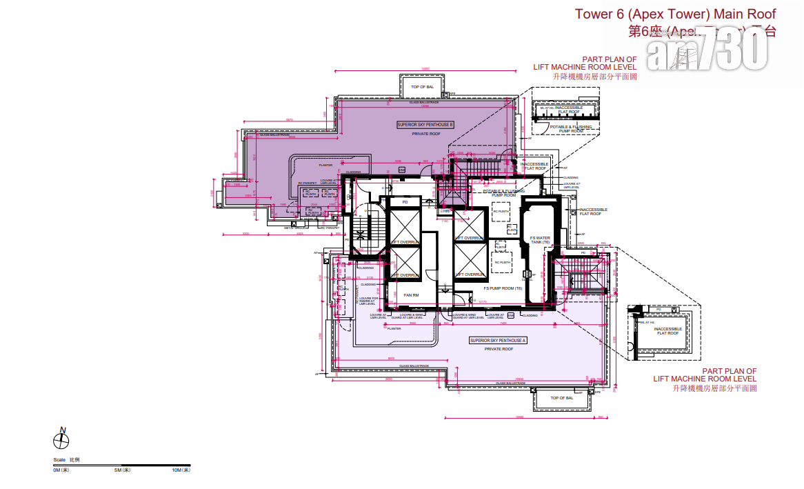
「天璽.天」第1期提供906伙,實用面積介乎236至3,936方呎,戶型涵蓋開放式至四房。項目由3座住宅大樓組成,包括第3座、第5座和第6座;以空中花園為分界設4大區域,分別為Elite Zone、Peak Tower、Pinnacle Tower,以及Apex Tower。
項目第3座5樓至28樓,以及第5座和第6座5樓至30樓空中花園對落的低層區域「Elite Zone」提供718伙,戶型涵蓋開放式至三房,實用面積介乎236至887方呎。另外,空中花園對上三個高層區域提供188伙,入場戶型由兩房起,主打三房及四房,實用面積介乎445至3,936方呎。當中第3座32樓至50樓「Peak Tower」,涉及60伙;第5座及第6座32樓至42樓「Pinnacle Tower」及「Apex Tower」,分別涉及約60伙及約68伙。
戶型分布方面,一房佔44%最多,其次為兩房涉37%,開放式佔13%,而兩房連儲物房及四房一套連工作間則各涉3%。低層區域A室單位坐向朝南,外望啟德區內市景,B室單位坐向朝北,可望獅子山景;第3座「Peak Tower」A室及B室,第5座「Pinnacle Tower」及第6座「Apex Tower」A至C室坐向朝南,外望啟德區內市景;第3座「Peak Tower」C室及D室、第5座「Pinnacle Tower」D至G室和第6座「Apex Tower」D至H室坐向朝北,可望獅子山景。
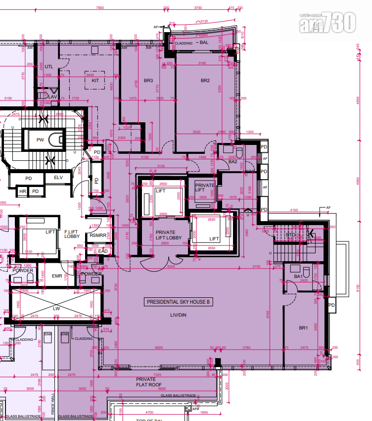
「天璽.天」第1期提供28伙特色單位,均位於高層區域,包括2伙頂層複式特色戶,為第3座「Peak Tower」的49樓及50樓B室,實用面積3,936方呎,連1,280方呎平台和610方呎天台,天台擁私人泳池,亦屬全盤面積最大單位。至於面積最細單位包括第5座「Elite Zone」6樓B6室,實用面積236方呎,開放式間隔。
項目停車位位於地下2層和3層,共提供334個住宅停車位。項目預計關鍵日期為2025年6月30日。「天璽.天」位於啟德協調道10號,毗鄰港鐵啟德站,項目分兩期發展,共提供1,490伙。
天璽.天示範單位|一房及兩房有得睇 多項伸縮裝置 巧妙利用空間(多圖有片)|啟德新盤
⇊天璽.天平面圖⇊
天璽.天示範單位
「天璽.天」第1期設有6個示範單位,實用面積介乎299至1,991方呎,戶型涵蓋一房至四房間隔。包括1伙連裝修經改動四房,以第6座36樓A室為藍本改造,實用面積909呎,將一間睡房墻體拆除並作客廳,令空間更寬敞。
單位以木色系為主調,入室左側設有玄關,向前可見飯廳,擺放有橢圓形餐桌,配備6人餐桌椅,墻面以樹枝狀裝飾作點綴,與串珠式吊燈相呼應,光線充足明亮。客廳改造後面積增大,外連42方呎露台,原睡房位置增設一個L型座位區,另一邊擺放有及長梳化,富有設計感。廚房採梗廚設計,設大理石工作檯面和金色鏡面儲物櫃。另外三間睡房與客飯廳同座向,主人房設有套廁,梳妝檯前設有全身鏡,睡床靠近窗邊擺放,可三面落床,配備有開放式衣架。
另提供1個以第6座36樓A室為藍本改造的交樓標準四房,實用面積909呎,客飯廳呈長方形,以玻璃趟門連接42方呎露台。單位採梗廚設計,墻面使用深灰色大理石,操作空間寬敞,配備嵌入式雪櫃和烤箱。全部睡房均與客飯廳同座向,其中一間睡房面積偏細,可改造為書房使用,主人房套廁設有浴缸,客廁採乾濕分離設計。
天璽.天示範單位|1991呎四房擁巨廳 設私人升降機大堂(多圖有片)|啟德新盤
以第3座46樓B室為藍本改造的交樓標準示範單位,採四房間隔,實用面積達1,991方呎。單位設有私人升降機大堂,等候區擺放有梳化;入室可見巨大客飯廳,以玻璃趟門連接118方呎露台,配置可變色燈帶,營造氛圍感。單位採梗廚設計,黑色經典組合櫥櫃,儲物空間充足,放置有雙人大理石吧檯桌椅,烹飪區及洗滌區分隔兩邊,操作空間寬闊,採光明亮。工作間擺放組合式收納櫃,靈活運用。睡房方正實用,均與客飯廳同坐向,主人房擁角窗設計,光線充足,以黑色趟門連接套廁,套廁內設有梳妝檯,附有窗戶方便通風透氣,客廁則為暗廁設計。
以第3座20樓A2室為藍本改造的交樓標準示範單位,實用面積443方呎,兩房間隔。單位採開放式廚房設計,不設玄關,入室右側為一整面儲物櫃,設內嵌式雪櫃,附有移動式換鞋凳,櫥櫃內亦有可伸縮式操作檯,合理利用空間。一間睡房呈長方形設計,預留位置擺放衣櫃;另一睡房間隔方正,均與客飯廳同坐向,部分高樓頂設計,增大空間感。客廁淋浴間以玻璃門作乾濕分離設計,不設有窗戶。另外,以第5座36樓G室為藍本改造的交樓標準示範單位,實用面積614方呎,兩房間隔。入室左側為開放式廚房,不設有玄關,採深木色儲物櫃,以操作櫃檯隔開客飯廳,側邊設有調料置物架。客飯廳空間諾大,玻璃趟門連接31方呎露台。睡房位於同側,主人房與書房相連,主人房浴室及客廁均為暗廁。「天璽.天」還提供一個以第5座20樓A2室為藍本改造的交樓標準示範單位,實用面積299方呎,一房間隔。客飯廳長形開則,開放式廚房配備可伸縮式操作檯,以及多個木色系儲物櫃。睡房布局方正,需經由睡房進入浴室,以木門分隔。
天璽.天示範單位|909呎經改動四房 客廳空間寬敞 盡顯溫馨奢華|啟德新盤
示範單位地址:環球貿易廣場 (ICC)
「天璽.天」價單
3號價單:提供120伙 折實平均呎價21768元
「天璽.天」於10月6日加推第3號價單,涉及120伙,以現金付款計劃最高折扣13.5%計算,折實售價由481.6萬元起,折實平均呎價21,768元,屬原價加推,最快本周末進行次輪銷售。
3號價單單位實用面積介乎240至655方呎,包括14伙開放式、80伙一房及26伙兩房。價單定價由556.83萬至1,632.42萬元,呎價介乎22,730元至28,740元。扣除最高13.5%折扣,單位折實售價由約481.6萬至1,412萬元,折實呎價介乎19,661元至24,860元。入場單位為第6座(Elite Zone) 5樓B5室,實用面積240方呎,開放式間隔,折實售價約481.6萬元,折實呎價約20,069元。
2號價單:提供122伙 折實平均呎價20939元
「天璽.天」於9月29日加推第2號價單,涉及122伙,以「現金付款計劃」提供最高13.5%折扣計算,折實售價由473.7萬元起,折實呎價由17,054元起,折實平均呎價20,939元,與首張價單折實平均呎價19,668元相比,高出約6.5%。發展商指,由於大部分單位均享啟德廣場景觀,因此仍屬原價加推。
2號價單單位涵蓋15伙開放式、44伙一房及63伙兩房,實用面積介乎236至559方呎。以「現金付款計劃」提供最高13.5%折扣計算,單位折實售價由473.72萬至1,191.01萬元,折實呎價介乎17,054元至24,284元。入場單位為第5座(Elite Zone) 5樓B6室,實用面積236方呎,開放式間隔,折實售價473.72萬元,折實呎價20,073元。
首張價單:提供182伙 折實平均呎價19668元
「天璽.天」於9月23日公布首張價單,涉及182伙,設有2種付款計劃,以「現金付款計劃」計算,提供最高折扣13.5%,折實售價由476.51萬至1,763.8萬元,折實呎價17,015元至24,042元,折實平均呎價19,668元。首批售價最低單位為第5座5樓B5室,實用面積240方呎,開放式間隔,折實售價476.51萬元,折實呎價19,855元。呎價最低單位為第5座5樓A8室,兩房間隔,實用面積509方呎,折實售價866萬元,折實呎價17,015元。
翻查資料,新地於2018年5月以251.61億元投得「天璽.天」項目地皮,創下住宅官地最高紀錄,以最高可建樓面約141萬方呎計,每方呎樓面地價達17,776元。未計及建築等成本,現時首張價單折實平均呎價與「麵粉價」相差約10.6%,較當年市場預期落成後開售呎價逾3萬元,更大幅低出超過三成;新地當時稱整個項目預計投資額約400億元,以最高可建樓面面積計算,即平均每方呎超過2.8萬元。
新地副董事總經理雷霆形容首批單位屬「核心超值價」,表示定價已考慮樓盤條件及市況,並且以買家性價比為先。被問及該定價是否有利潤,他稱,項目分兩期發展,第1期「暫時未咁快計到數」,該盤屬乘勢而出,最快10月進行開售。
天璽.天第1期樓書曝光!涉906伙 最大頂層複式戶近4000呎 擁私人泳池|啟德新盤
「天璽.天」銷售安排
首輪銷售:10月5日價單發售204伙 招標賣96伙
「天璽.天」於10月5日進行首輪銷售300伙,當中204伙以價單形式發售,另96伙以招標形式出售。以價單發售的204伙,涵蓋22伙開放式、109伙一房,以及73伙兩房,實用面積介乎236至559方呎。以價單定價計算,市值超過17億元。扣除最高折扣13.5%後,單位折實售價由473.72萬至1,227.7萬元,折實呎價介乎17,015元至24,284元;而以招標形式發售的96伙,涵蓋三房至四房間隔,實用面積介乎854至3,936方呎。
項目於10月3日截票,共收到逾2.9萬票,以價單發售單位計算,超額認購逾141倍。「天璽.天」不單刷新啟德歷來收票量最高新盤,更超越今年3月長江實業集團(1113)與港鐵(066)合作發展的黃竹坑站港島南岸第3B期「Blue Coast」首輪截收近2.8萬票紀錄,榮膺今年「新盤票王」寶座。
發展商表示,首輪價單發售的204伙即日沽清,套現逾15億元。當中A1及A2組大手客時段合共錄得18組客,當中有9組買家購入6伙至8伙,涉資約4,400萬至6,600萬元;另有9組買家購入3伙至5伙,涉資超過2,000萬元。
至於買家地區分布方面,來自九龍區佔約七成,當中屬九龍東及啟德區佔約35%;而新界區佔約25%,餘下約5%為港島區。項目首輪銷售中,有約70%至80%買家選用建築期付款辦法入市。
「天璽.天」周邊配套
「天璽.天」以6星級地標式酒店設施為設計概念,雙會所共設三大區域,分別為設於逾100米高空的空中會所「天上天CLUB SKYWALK」、天際空中花園「Sky Garden」及平台會所「天中庭CLUB SKYLINK」,三大區域連戶外綠化園林空間總面積逾10萬方呎,提供近20項多元化設施。雙會所共提供3大泳池,屬區內罕有設計。位於31樓的空中會所「天上天CLUB SKYWALK」特設約50米半戶外無邊際泳池「星空泳池」;平台會所「天中庭CLUB SKYLINK」另有約30米長的室外園林游泳池「Oasis Pool」,並設有「日光雅座Sun Terrace」及「池畔觀景台The Outlook」;以及約20米長的室內遊泳池。另外,雙會所設有雙宴會廳、室内健身室、兒童專屬戶外小天地、戶外BBQ燒烤區、戶外園林等。
項目由新地旗下Infinite Carat Living Limited作物業管理,每呎管理費約5. 58元,提供四大服務。包括提供五星級酒店米芝蓮定製餐廳服務;與教育機構合作,提供學術指導服務,升學指導諮詢服務,創意發展教育活動及工作坊活動;設一站式管家服務,包括專業房間整理服務和代辦租售服務;以及特设專屬手機應用程式。
中銀香港(2388)特為項目準買家提供按揭服務,準買家更可享高達40,000元理財獎賞。設專業團隊照顧來港人才置業安居,以流利的普通話為客戶提供專業的按揭諮詢服務。另外,首10名使用按揭服務的準買家,可額外獲「中銀大廈」限量版鍍金精美擺設一座。
交通方面,項目享「15分鐘港九核心商業區經濟圈」,擁「一線三隧」優勢,由項目驅車出發,東行約5分鐘可達九龍東核心商業區;西行預計只需約8分鐘直達西九龍核心商業區及高鐵站;約12分鐘達中環國際金融中心;南行經紅磡海底隧道約9分鐘可達會展。
「天璽.天」前臨啟德車站廣場,為區內最高私人住宅項目,最高達170米,更是區內唯一可全天候無縫連接港鐵啟德站。項目自設24萬方呎基座商場,屬區內最大住宅基座商場,住戶亦可經行人隧道貫通左連的商場「AIRSIDES」,連同右鄰的「THE TWINS雙子匯」,組成匯聚旗艦級購物娛樂的「3分鐘都會核心生活圈」。區內首個大型商場AIRSIDE去年已正式營運,佔地190萬方呎,有超過40間食肆。另外,K11啟德零售館預計最快年內落成,佔地逾70萬方呎,主建築共3座,每座最多有5層,將雲集超過200家零售及餐飲店舖,為市民提供一站式運動與休閒、娛樂及購物體驗。「The Twins雙子匯」的Tower I及Tower II預計今年9月開幕,建築面積約110萬方呎,將提供國際奢侈品、美妝、時尚服飾,以及生活消閒等包羅萬有的商品類別及服務。
至於校網,「天璽.天」小學為34校網,中學屬九龍城區。















































































































































