地產
2024-07-12 13:00:00

柏蔚森I懶人包|跑道區前端三面環海 一文睇清生活配套、示範單位及價單(多圖有片)

分享:
柏蔚森I懶人包|跑道區前端三面環海 一文睇清生活配套、示範單位及價單(多圖有片)

柏蔚森I懶人包|跑道區前端三面環海 一文睇清生活配套、示範單位及價單(多圖有片)

啟德跑道區全新盤低價登場!新世界發展(017)及遠東發展(035)合作發展的「柏蔚森I」自亮相即引起市場關注,單位屬全區最細,入場價亦創區內最平,項目坐落於跑道區最前端,三面環海,大部分單位享九龍灣遊艇景或維港海景。am地產特意為讀者準備「柏蔚森I」懶人包,一文睇清「柏蔚森I」價單、樓書平面圖、示範單位、呎價、價單、戶型、配套設施、交通與位置等重要資訊。

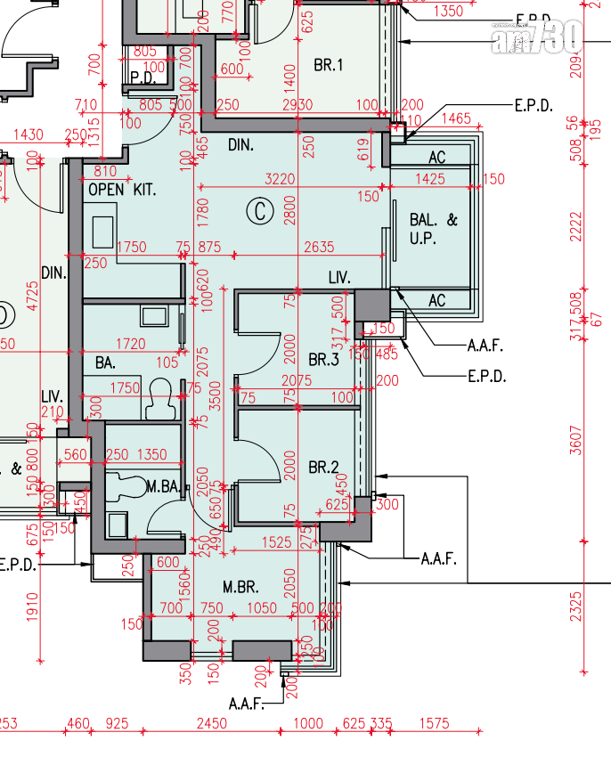
柏蔚森I戶型分布、平面圖、車位

「柏蔚森I」由第5座及第6座兩座住宅大樓組成,第5座住宅樓層由第2樓至29樓,標準樓層每層設9伙及3部升降機;第6座住宅樓層由2樓至7樓,標準樓層每層設15伙及2部升降機,單位分布呈長條型,位於走廊兩側,升降機設於走廊一側盡頭。

單位屬啟德區最細,一房由234方呎起,兩房由345方呎起,三房由512方呎起。項目主打兩房佔七成,涉及205伙,標準兩房佔182伙,實用面積由374至400方呎,另設23伙兩房連書房單位,實用面積469方呎。標準兩房分布於第5座B室、D室、E室、F室、H室及J室,當中B/E/H/J室睡房分隔客飯廳兩側,另第5座G室為兩房連書房間隔,書房緊鄰睡房1。第6座兩房包括A室至G室及Q室,睡房均分隔客飯廳兩側。

一房僅提供28伙,實用面積由272至288方呎,均位於第6座H室至P室,均設開放式廚房,浴室採獨立設計,客飯廳與睡房同向,外望會所泳池景;三房涉及46伙,實用面積由512至560方呎,位於第5座A室及C室,外望九龍灣遊艇海景。

項目提供12伙特色單位,實用面積由234至560方呎,包括9伙連平台特色戶,連平台面積由28至131方呎,以及3伙連天台特色戶,連天台面積由353至394方呎。全盤面積最細單位為第6座2樓J室,一房間隔,實用面積234方呎,連30方呎平台。面積最大單位包括第5座2至29樓C室,三房間隔,實用面積560方呎,其中頂層29樓C室連394方呎天台,需經由公共樓梯抵達。

「柏蔚森I」停車位位於地庫1樓及2樓,合共提供31個住宅停車位,項目預計關鍵日期為2025年8月31日。

柏蔚森I平面圖

啟德 柏蔚森I 柏蔚森I上樓書 主打兩房 短期內公布首張價單|啟德新盤 啟德柏蔚森I涉291伙 兩房佔七成 面積234呎起|新盤樓書 啟德柏蔚森I涉291伙 兩房佔七成 面積234呎起|新盤樓書 啟德柏蔚森I涉291伙 兩房佔七成 面積234呎起|新盤樓書 啟德柏蔚森I涉291伙 兩房佔七成 面積234呎起|新盤樓書 啟德柏蔚森I涉291伙 兩房佔七成 面積234呎起|新盤樓書 啟德柏蔚森I涉291伙 兩房佔七成 面積234呎起|新盤樓書 啟德柏蔚森I涉291伙 兩房佔七成 面積234呎起|新盤樓書 啟德柏蔚森I涉291伙 兩房佔七成 面積234呎起|新盤樓書 啟德柏蔚森I涉291伙 兩房佔七成 面積234呎起|新盤樓書 啟德柏蔚森I涉291伙 兩房佔七成 面積234呎起|新盤樓書 啟德柏蔚森I涉291伙 兩房佔七成 面積234呎起|新盤樓書 啟德柏蔚森I涉291伙 兩房佔七成 面積234呎起|新盤樓書 啟德柏蔚森I涉291伙 兩房佔七成 面積234呎起|新盤樓書

柏蔚森I示範單位

「柏蔚森I」延續PAVILIA COLLECTION系列港島半山豪宅品味,單位獨特貼心設計巧思,採用多項新世界發展專利及註冊設計。設有1個連家具示範單位,以第6座6樓G室為藍本搭建,實用面積385方呎,兩房間隔,層與層之間的高度達3.15米。示範單位以大自然交響曲為主題,融合森林的寧靜遼闊和音樂的流暢,設計出一個讓人放鬆身心、激發靈感的空間。

單位內部的門窗把手ARTISHANDLE設計獨特,展現出精緻的設計概念。大門都裝配有專利的ArtisLock三合一智能門鎖,住戶可以使用指紋掃描、門匙或Artisanal Living應用程式解鎖。單位還配備ARTISCABINET,可同時收納鞋子和雨傘,並預留手機充電位置。另配置Artis配件及Artisan Switches燈掣開關,造型匠心獨到。

全屋不設走廊,空間實用。客廳飯廳空間寬敞方正,間隔明確。寬敞的客廳可放置三座位梳化,背牆達2.5米,便於擺放家具。地板選用時尚的意大利木紋瓷磚,不僅耐用且易於清潔。寬闊的落地鋁框玻璃門連接40方呎露台及工作平台,設有PAVILIA COLLECTION全港首個BALCONY+,配備意大利品牌洗衣乾衣機,並足夠預留空間放置小型家電,防雨趟閘亦安全實用;House Light用上金屬流線形設計。此外,露台及工作平台亦設有MAGIC HANGER,兩組自家設計晾衣桿可固定於不同位置。兩間睡房均寬敝舒適,睡房1足夠放置舒適雙人床及小茶几,甚至貼心地預留空間放置落地式衣櫃;睡房2則設有特大轉角窗戶,增加室內採光,可欣賞開揚的海景。

adblk5
柏蔚森I示範單位|385呎兩房無走廊設計 專利室內設備便利生活(多圖有片)|啟德新盤 柏蔚森I示範單位|385呎兩房無走廊設計 專利室內設備便利生活(多圖有片)|啟德新盤 柏蔚森I示範單位|385呎兩房無走廊設計 專利室內設備便利生活(多圖有片)|啟德新盤 柏蔚森I示範單位|385呎兩房無走廊設計 專利室內設備便利生活(多圖有片)|啟德新盤 柏蔚森I示範單位|385呎兩房無走廊設計 專利室內設備便利生活(多圖有片)|啟德新盤 柏蔚森I示範單位|385呎兩房無走廊設計 專利室內設備便利生活(多圖有片)|啟德新盤 柏蔚森I示範單位|385呎兩房無走廊設計 專利室內設備便利生活(多圖有片)|啟德新盤 柏蔚森I示範單位|385呎兩房無走廊設計 專利室內設備便利生活(多圖有片)|啟德新盤 柏蔚森I示範單位|385呎兩房無走廊設計 專利室內設備便利生活(多圖有片)|啟德新盤 柏蔚森I示範單位|385呎兩房無走廊設計 專利室內設備便利生活(多圖有片)|啟德新盤 柏蔚森I示範單位|385呎兩房無走廊設計 專利室內設備便利生活(多圖有片)|啟德新盤 柏蔚森I示範單位|385呎兩房無走廊設計 專利室內設備便利生活(多圖有片)|啟德新盤 柏蔚森I示範單位|385呎兩房無走廊設計 專利室內設備便利生活(多圖有片)|啟德新盤 柏蔚森I示範單位|385呎兩房無走廊設計 專利室內設備便利生活(多圖有片)|啟德新盤 柏蔚森I示範單位|385呎兩房無走廊設計 專利室內設備便利生活(多圖有片)|啟德新盤 柏蔚森I示範單位|385呎兩房無走廊設計 專利室內設備便利生活(多圖有片)|啟德新盤 柏蔚森I示範單位|385呎兩房無走廊設計 專利室內設備便利生活(多圖有片)|啟德新盤 柏蔚森I示範單位|385呎兩房無走廊設計 專利室內設備便利生活(多圖有片)|啟德新盤 柏蔚森I示範單位|385呎兩房無走廊設計 專利室內設備便利生活(多圖有片)|啟德新盤 柏蔚森I示範單位|385呎兩房無走廊設計 專利室內設備便利生活(多圖有片)|啟德新盤 柏蔚森I示範單位|385呎兩房無走廊設計 專利室內設備便利生活(多圖有片)|啟德新盤 柏蔚森I示範單位|385呎兩房無走廊設計 專利室內設備便利生活(多圖有片)|啟德新盤 柏蔚森I示範單位|385呎兩房無走廊設計 專利室內設備便利生活(多圖有片)|啟德新盤 柏蔚森I示範單位|385呎兩房無走廊設計 專利室內設備便利生活(多圖有片)|啟德新盤 柏蔚森I示範單位|560呎交樓標準三房套曝光 客廳寬敞易擺家具(多圖有片)|啟德新盤 柏蔚森I示範單位|560呎交樓標準三房套曝光 客廳寬敞易擺家具(多圖有片)|啟德新盤 柏蔚森I示範單位|560呎交樓標準三房套曝光 客廳寬敞易擺家具(多圖有片)|啟德新盤 柏蔚森I示範單位|560呎交樓標準三房套曝光 客廳寬敞易擺家具(多圖有片)|啟德新盤 柏蔚森I示範單位|560呎交樓標準三房套曝光 客廳寬敞易擺家具(多圖有片)|啟德新盤 柏蔚森I示範單位|560呎交樓標準三房套曝光 客廳寬敞易擺家具(多圖有片)|啟德新盤 柏蔚森I示範單位|560呎交樓標準三房套曝光 客廳寬敞易擺家具(多圖有片)|啟德新盤 柏蔚森I示範單位|560呎交樓標準三房套曝光 客廳寬敞易擺家具(多圖有片)|啟德新盤 柏蔚森I示範單位|560呎交樓標準三房套曝光 客廳寬敞易擺家具(多圖有片)|啟德新盤 柏蔚森I示範單位|560呎交樓標準三房套曝光 客廳寬敞易擺家具(多圖有片)|啟德新盤 柏蔚森I示範單位|560呎交樓標準三房套曝光 客廳寬敞易擺家具(多圖有片)|啟德新盤 柏蔚森I示範單位|560呎交樓標準三房套曝光 客廳寬敞易擺家具(多圖有片)|啟德新盤 柏蔚森I示範單位|560呎交樓標準三房套曝光 客廳寬敞易擺家具(多圖有片)|啟德新盤

開放式廚房屬單位一大亮點,工作枱面經特別加深設計,達760毫米,提供更多的下廚空間貼合住戶需要,設計極為實用。廚房內配備MAGIC BASKET,方便收納調味料和其他廚房配備。廚房配置歐洲名牌家用電器,包括Siemens嵌入式雙門雪櫃、嵌入式蒸焗爐及拉趟式抽油煙機等。

浴室方面,備有歐洲名牌衛浴用品,包括Kohler特別為新世界調製的茄士咩色坐廁及面盆,另有香檳金色的浴室龍頭。瓷磚的選擇以森綠色調為主,營造出森林浴的感覺。浴室內還配備Panasonic浴室換氣暖風機和MIRROPHONE,只需將手機放入嵌入式位置,即可享受揚聲功能。此外,浴室還設有MIRROR+,可放置風筒和小型家電用品,同時提供USB-C和電源插座,方便住戶在使用時充電或連接其他設備。

另設有1個交樓標準示範單位,以第5座28樓C室為藍本搭建,實用面積560方呎,三房一套間隔,層與層之間的高度達3.2米。客廳及飯廳間隔方正分明,寬敞的客廳可放置三座位梳化,易於擺放家具。主人睡房設有寬敞轉角玻璃幕牆,大大增加室內採光度;睡房內更貼心預留衣櫃位置。其餘兩間睡房間隔方正,設有大玻璃窗。

示範單位地址:九龍灣金利豐國際中心

柏蔚森I價單

3號價單:提供60伙 折實平均呎價18469元

「柏蔚森I」於7月9日加推第3號價單,提供60伙,實用面積由236至560方呎,扣除最高折扣18%後,單位折實售價由415.6萬至1,122萬元,折實呎價由16,138元至20,612元,折實平均呎價18,469元,較上張2號價單17,594元高約5%。入場單位為第6座2樓H室,實用面積251方呎,連28方呎平台,一房間隔,折實售價415.6萬元,折實呎價16,560元。

2號價單:提供82伙 折實平均呎價17594元

「柏蔚森I」於7月6日加推第2張價單,涉及82伙,涵蓋8伙三房,59伙兩房及15伙一房,折實售價由391.5萬至1,087.8萬元,折實呎價由16,134元至19,965元,折實平均呎價17,594元,較首張價單的17,188元高約2%。

是批售價最低單位為6座2樓P室,一房間隔,實用面積236方呎,外連30方呎平台,折實售價391.5萬元,折實呎價16,589元;呎價最低單位為6座3樓M室及N室,實用面積276方呎,均屬一房間隔,折實售價445.3萬元,折實呎價16,134元。

首張價單:提供60伙 折實平均呎價17188元

「柏蔚森I」於7月4日公布首張價單,提供60伙,涵蓋15伙一房、38伙兩房及7伙三房,實用面積由234至512方呎。以150天現金優惠付款計劃,提供最高折扣18%計算,單位折實售價由386.4萬至987.2萬元,折實呎價16,008元至19,690元,折實平均呎價17,188元。一房單位折實售價由386.4萬至458.8萬元,折實呎價介乎16,134元至16,625元。最低售價為第6座2樓J室,實用面積234方呎,連30方呎平台,折實呎價16,513元。

兩房單位折實售價由598.8萬至736.4萬元,折實呎價介乎16,008元至19,690元。最低售價單位為第5座2樓E室,實用面積353方呎,連28方呎平台,折實呎價16,963元。三房單位買家可獲車位認購權,單位折實售價由958.1萬至987.2萬元,折實呎價介乎18,713元至19,281元。最低售價為第5座2樓A室,實用面積512方呎,折實呎價18,713元。

項目提供兩款付款方法,分別為150天現金優惠付款計劃及建築期付款計劃,最高折扣分別為18%及14.5%,是次價單特設匠心租務優惠,買家若不選擇匠心租務安排2%優惠,可獲為期2年租務安排,年度租金為樓價3.5%。

資料顯示,項目位處的第4B區4號地皮曾兩度易手,最初由潘蘇通旗下高銀金融(530)於2018年擊敗6家財團以89.07億元成功投得;之後於2020年7月,地皮以70.4億元蝕沽予內地商人陳壯榮,並獲佳兆業(1638)確認入股。及至2021年11月,再由新世界發展及遠東發展以79.5億元購入該幅地皮,以最高可建樓面約57.47萬方呎計算,每方呎樓面地價約1.38萬元。

柏蔚森I銷售安排

首輪銷售:7月13日 涉及201伙

「柏蔚森I」落實於7月13日首輪推售201伙,當中198伙以價單形式推售,另3伙以招標形式發售。首輪價單推售單位涵蓋35伙一房,142伙兩房及21伙三房,價單定價由471.3萬至1,368.4萬元,呎價介乎19,523元至24,888元,扣除最高折扣18%後,折實售價由386.4萬至1,122萬元,折實呎價介乎16,008元至20,406元,折實平均呎價17,721元。

另3伙連天台特色戶以招標形式推售。特色單位包括第5座29樓A室,三房間隔,實用面積512方呎連369方呎天台;第5座29樓C室,三房一套間隔,實用面積560方呎連394方呎天台;以及第5座29樓G室,兩房連書房間隔,實用面積469方呎連353方呎天台,層與層之間的高度約3.5米。

柏蔚森I會所Forest Pavilion逾5.4萬呎 五大主題區設50項設施|啟德新盤 柏蔚森I會所Forest Pavilion逾5.4萬呎 五大主題區設50項設施|啟德新盤 柏蔚森I 柏蔚森I市場反應踴躍 標準海景兩房示範單位周二曝光|啟德新盤

柏蔚森I周邊配套

「柏蔚森I」自設園林會所「Forest Pavilion」由兩大享譽國際設計師操刀,「Forest Pavilion」會所連園林佔地逾5.4萬方呎,分五大主題區,提供50項設施,包括50米戶外游泳池、25米室內游泳池、羽毛球場及天際海景宴會廳等。項目引入來自日本的「森林浴」的概念,森林浴在1980年代開始流行,現已成為國際潮流,深受名人追捧,能有效放鬆身心,調解繁忙都市生活壓力。有研究指出透過「森林浴」能放鬆身心,調解繁忙的都市生活壓力。

交通出行仍是跑道區生活難題之一,目前設有城巴22X及城巴22往返港鐵啟德站,亦設有多條巴士路線來往東九龍及港島,另外項目鄰近啟德公眾碼頭,周末及公眾假期設航線前往北角、觀塘等地。政府亦正在考慮興建啟德智慧綠色集體運輸系統,設5個車站,包括港鐵啟德站、啟德體育園站、都會公園站、前跑道區住宅帶站及啟德郵輪碼頭站,預計由啟德郵輪碼頭至港鐵啟德站的車程約10分鐘。長達4.7公的中九龍幹線亦預計明年通車,屆時約8分鐘可抵達西九龍高鐵站,方便往來內地。

生活配套方面,區內首個大型商場AIRSIDE去年已正式營運,佔地190萬方呎,有超過40間食肆。另外,K11啟德零售館預計最快年內落成,佔地逾70萬方呎,主建築共3座,每座最多有5層,將雲集超過200家零售及餐飲店舖,為市民提供一站式運動與休閒、娛樂及購物體驗。「The Twins雙子匯」的Tower I及Tower II預計今年9月開幕,建築面積約110萬方呎,將提供國際奢侈品、美妝、時尚服飾,以及生活消閒等包羅萬有的商品類別及服務。

至於校網,「柏蔚森I」小學為34校網,中學屬九龍城區。

adblk6

ADVERTISEMENT

ad