佐敦高臨懶人包 一文睇晒價單、示範單位、平面圖 (多圖有片)
油尖旺區迎來新盤應市,資本策略地產(497)旗下佐敦單幢新盤「高臨」正式亮相。am地產特意為讀者準備「高臨」懶人包,一文睇清「高臨」價單、樓書平面圖、示範單位、呎價、價單、戶型、配套設施、交通與位置等重要資訊。
高臨戶型分布、平面圖、車位
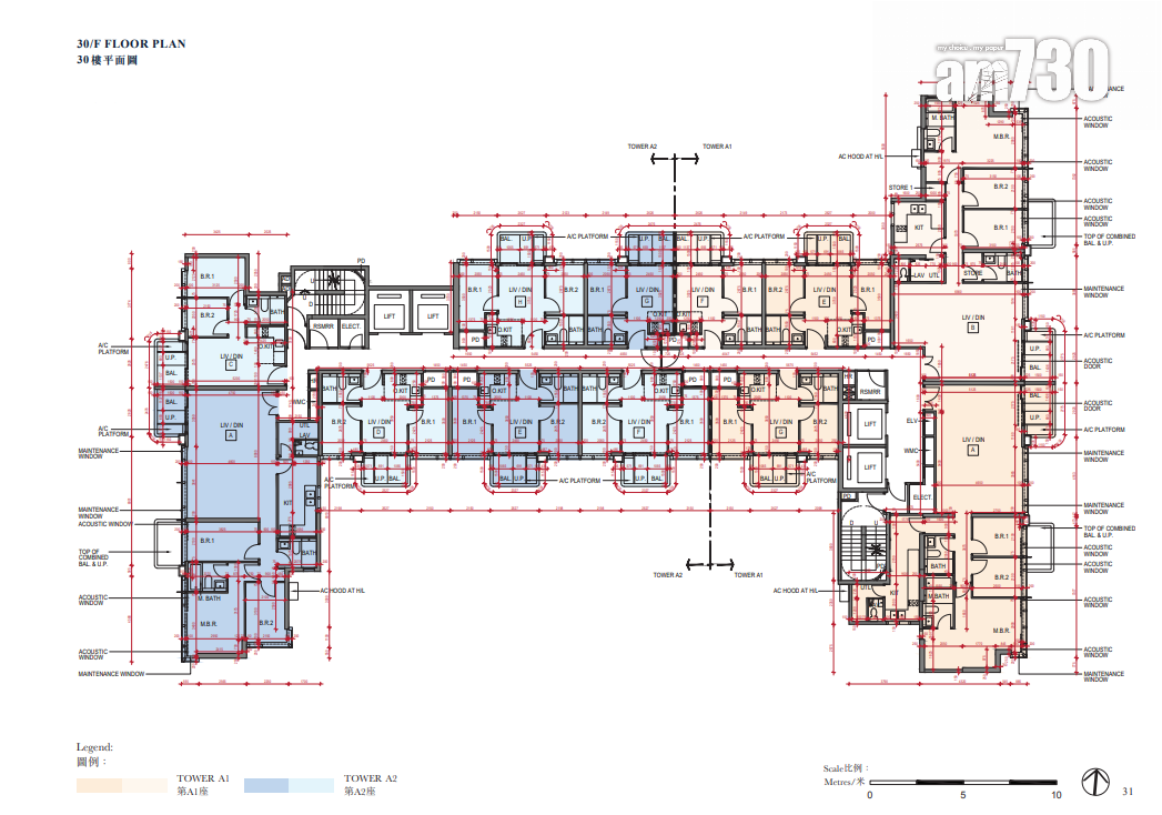
「高臨」為單幢式物業,分為相連的A1及A2座,提供259伙,實用面積由232至1,589方呎,戶型涵蓋一房至三房。物業住宅部分由12樓至31樓(不設13樓、14樓、24樓),合共佔17層,第A1座標準單位每層設5至9伙,第A2座標準單位每層設7至9伙,各設2部升降機。基座則設有9層商業樓面,總樓面面積約14萬方呎,預計作寫字樓及零售用途。
單位戶型方面,項目主打一房及兩房,合共佔近八成,當中兩房涉137伙佔最多約53%,實用面積介乎374至423方呎;一房提供64伙,佔24%,實用面積介乎269至278方呎;三房涉43伙,佔17%,實用面積介乎545至707方呎;另提供15伙特色單位,實用面積介乎232至1,589方呎,僅1伙屬連天台特色單位,實用面積1,452方呎,連386方呎天台,可經由室內樓梯通往;至於連平台面積由52至606方呎。
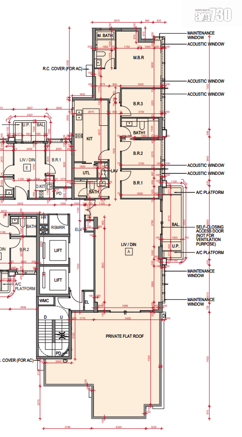
全盤面積最細單位為第A1座12樓H室和第A2座12樓E及F室,一房間隔,實用面積均為232方呎,連170方呎平台。面積最大單位為第A1座31樓A室,四房一套間隔,實用面積1,589方呎,連606方呎平台。「高臨」住宅停車位位於地庫3樓,共提供16個,項目預計關鍵日期為2025年12月31日。
高臨示範單位
「高臨」提供2個示範單位予公眾參觀,包括1個兩房連裝修無改動示範單位,以A1座18樓A室為藍本搭建,實用面積707方呎;以及1個兩房交樓標準示範單位,以第A2座18樓C室為藍本搭建,實用面積423方呎。
兩房連裝修無改動示範單位由英國建築和室内設計公司Conran and Partners設計,原則為兩房,裝修成三房(包括主人套房及工作間)戶型。整體設計以天然石材配搭木製家具及藤製設計,客飯廳為長形設計,整個單位鋪設8吋闊木地板,長約7米,寬約2.8米,樓層與樓層之間高度約3.1米,外連一個約21方呎露台及一個約16方呎工作平台。玄關位置旁設有落地儲物櫃,牆身亦附設多個收納空間裝置。客廳配以一組三座位長梳化及獨特形狀之木制茶几,牆上掛上著名美國藝術家Jean-Michel Basquiat畫作,富有藝術氣息。客廳設計為市場罕有的靈活布局,梳化區的空間劃成半開放的音樂休閒廳,以活動藤製網格作為屏風,打開屏風時便融入客廳一部分。飯廳特意以時尚廂座設計,擴大用餐空間,可放置6人餐桌椅。
主人房為套房設計,配以曲尺落地窗,整體以淺木色為主調,落地衣櫃為住戶提升充足儲物空間。廚房呈L型設計,工作檯面以淺灰色雲石鋪設,淺色系的櫥櫃飾以木紋面板,配以私人酒櫃。浴室為交樓標準設計,設淋浴間、洗手盆及坐廁,設計以金屬色系為主調,配搭天然石材。
兩房交樓標準示範單位客飯廳呈長方形設計,長約4.6米,寬約2.6米,樓層與樓層之間高度約3.1米。飯廳一旁設開放式廚房,放置一組象灰色的L型櫥櫃,提供Cristal酒櫃。客廳間隔方正,玻璃趟門外連一個約22方呎露台及一個約16方呎的工作平台,露台門配以雙層中空玻璃。標準單位全數垂直鋪設近年市區項目少有的8吋闊木地板,露台牆身選用木材飾面配合柔和壁燈,地面則鋪設有特色地磚。
標準單位的廚具採用西門子Siemens,設有電磁爐、抽油煙機、蒸焗爐、雪櫃及洗衣乾衣機,家電一應俱全。浴室配備淋浴間、洗手盆及坐廁,潔具品牌全數採用Hansgrohe及Duravit。另單位更以應用程式連接空調系統及照明系統,用戶透過手機控制家中燈光及空調系統,外出時亦可遙距控制家電,環保之餘亦可更享受便利生活。
示範單位地址:尖沙咀河內道18號K11購物藝術館1樓121至122號舖
高臨價單
3號價單:40伙 折實入場價496.7萬
發展商於5月6日加推第3號價單共40伙,涵蓋12伙一房、22伙兩房,以及6伙三房單位。維持提供15%最高折扣優惠,單位折實售價由496.7萬至1,450.1萬元,折實呎價介乎18,000元至25,485元;折實平均呎價約21,134元,較上張2號價單約21,538元,低約1.9%。
最低售價單位為A1座12樓G室,實用面積272方呎,折實售價496.7萬元,折實呎價18,261元。最低呎價單位為A2座12樓J室,實用面積277方呎,一房間隔,折實售價498.6萬元,折實呎價18,000元。
2號價單:52伙 折實入場價490.2萬
發展商於4月29日加推2號價單,提供52伙,實用面積介乎270至707方呎,當中首度推出實用面積707方呎的三房一套連工作室單位。今批單位價單定價由576.7萬至2,098.5萬元,呎價介乎20,745元至29,682元。扣除15%最高折扣優惠後,單位折實售價由490.2萬至1,783.8萬元,折實呎價介乎17,633元至25,231元,折實平均呎價21,538元,發展商表示,是次屬原價加推。
最低售價及呎價單位同為A1座12樓E室,實用面積278方呎,一房間隔,折實售價490.2萬元,折實呎價17,633元。
1號價單:52伙 折實入場價479.3萬
發展商於4月24日公布首張價單,提供52伙,涵蓋21伙一房、28伙兩房及3伙三房,實用面積介乎269至545方呎。價單定價由563.8萬至1,363.1萬元,呎價介乎20,959元至25,011元。項目為買家提供3種付款計劃,總折扣優惠介乎10%至15%。以最高15%折扣計算,單位折實售價由479.3萬至1,158.7萬元,折實呎價介乎17,818元至21,261元。整批折實平均呎價19,388元,與4年前同區對上應市新盤首張價單23,928元相比,低約19%。以折實價計,首批有8伙低於500萬元。
資本策略地產執行董事何樂輝形容首批單位屬「高鐵臨門啟動價」,定價較市場價存在約20%折讓,但強調之後加推單位價格有調整空間。最低售價及呎價單位同為A1座12樓F室,一房間隔,實用面積269方呎,折實售價479.3萬元,折實呎價17,818元。至於兩房最低售價單位為A1座18樓E室,實用面積378方呎,折實售價705.4萬元,折實呎價18,661元。三房最低售價為A2座15樓A室,實用面積545方呎,折實售價1,149.5萬元,折實呎價21,092元。
中原地產亞太區副主席兼住宅部總裁陳永傑表示,「高臨」訂價有驚喜,比同區二手屋苑有近兩成折讓,起動力十足,相信項目首批單位可一Q清枱。油尖旺區新盤供應一向罕貴,投資者買家比例亦較高,全因該區擁鐵路及高鐵概念,對專才客及中港商人有一定吸引力,而且區內租金可媲美五星級酒店,每呎租金可高逾80元,料租金回報可高達4厘。
高臨銷售安排
次輪銷售
發展商於5月6日上載銷售安排,將於5月10日進行次輪銷售,合共44伙,當中40伙採價單形式推售;另外4伙以招標形式出售,招標期至本月31日。
首輪銷售:104伙價單推售 6伙招標發售
發展商於4月29日上載首輪銷售安排,盡推首2張價單共104伙於5月3日以價單形式發售,當中分為兩組揀樓,先為A組大手客時段,買家須購買最少2伙但不多於8伙。隨後為B組,買家須購買最少1伙但不多於2伙;項目將於本周四(5月2日)下午3時截票。最低售價及呎價單位同為A1座12樓F室,一房間隔,實用面積269方呎,折實售價479.3萬元,折實呎價17,818元。
另外,同日有6伙連平台單位以每日招標形式出售,包括A1座12樓H及J室,以及A2座12樓A、E、F及G室,招標時間為由上午11時至下午2時,招標期至今年5月31日。
高臨周邊配套、交通及校網
「高臨」交通便利,步行3分鐘可達港鐵佐敦站,15分鐘達港鐵柯士甸站;驅車約4分鐘至高鐵西九龍站,另可經由紅磡海底隧道及西區海底隧道過海。區內亦有多個跨境直通巴士站,便於往返內地及澳門。
項目由著名室內設計團隊via.打造天際綠洲會所「CLUB TOPSIDE」。室內設計以「收藏家之宅」(Collector’s House)為概念及英國British Racing Green作主色調,採用歐洲設計風格,配以精雕細琢之材質、紋理、幾何圖案配以大理石和木材,營造出優尚尊貴會員俱樂部的氛圍。會所設有天際綠洲泳池「LAKE of BLISS」,讓住戶於高空暢泳,同時欣賞城市天際線,泳池連接池畔派對屋「HOUSE of CHEERS」及日光池畔「PATIO of SUNSHINE」,住戶可以舉行私人池畔派對。
此外,設有24小時雙健身室,包括室內動態健身室「ARENA of PERSISTENCE」,提供帶氧運動器材如重力訓練器械、伸展、瑜珈、空中瑜珈及普拉提等,同時引入美國健身器材品牌Water Rower水划船機。「高臨」以可持續生活為理念之設計,泳池與健身房之間配以落地玻璃窗,引入戶外陽光進室內,為室內健身房增添活力氛圍。戶外靜態健身園「GROUND of TOUGHNESS」,採用包括來自丹麥 NOORD的戶外健身設備。戶外燒烤庭園「VENUE of TIPSINESS」可舉行宴會派對;日月星林「SPACE of AIR」讓住戶觀星賞月。
購物方面,項目基座設有9層商業樓面,有部分計劃作零售用途。區內大型購物商場雲集,包括美麗華廣場、K11、K11 MUSEA及圓方等,滿足住戶多元化需求。
校網方面,「高臨」屬31小學校網,中學屬油尖旺區。





















