地產
2024-09-17 16:53:00

The YOHO Hub II價單、示範單位、平面圖 元朗新盤懶人包(多圖)|持續更新

分享:
The YOHO Hub II價單、示範單位、平面圖 元朗新盤懶人包(多圖)|持續更新

一文睇清The YOHO Hub II價錢、樓書平面圖、示範單位、周邊配套(多圖有片)

新鴻基地產(016)旗下環港鐵元朗站「YOHO」系列壓軸之作「The YOHO Hub」分兩期發展,第C期「The YOHO Hub II」以現樓形式應市。am地產特意為讀者準備「The YOHO Hub II」懶人包,一文睇清「The YOHO Hub II」價單、樓書平面圖、示範單位、呎價、價單、戶型、配套設施、交通與位置等重要資訊。

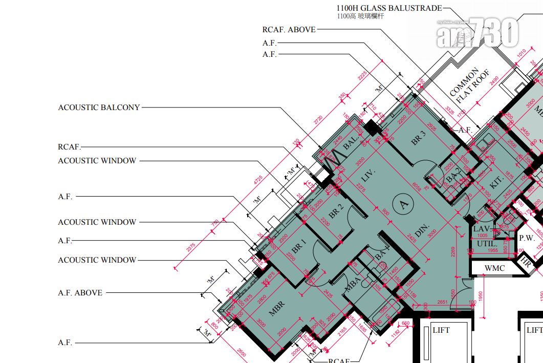
The YOHO Hub II戶型分布、平面圖、車位

The YOHO Hub II」由第6座及第8座兩座住宅大樓組成,最高169.5米,屬YOHO系列最高住宅項目,兩座每層均設10伙及5部升降機,合共提供939伙,戶型涵蓋一房至四房,實用面積由3361,035方呎,不設特色單位。

戶型分布方面,三房佔最多涉及469伙,約一半單位,實用面積由520905方呎;另兩房佔約40%,提供375伙,實用面積由436493方呎;至於一房提供94伙,佔約10%,實用面積由336338方呎;而四房僅提供1伙,實用面積1,035方呎,發展商透露,該單位考慮以招標形式推售。

全盤面積最細單位包括第83樓至28E室,實用面積336方呎,一房間隔,浴室位於睡房內;面積最大單位為第657A室,實用面積1,035方呎,屬四房雙套連工作間間隔。「The YOHO Hub II」停車場位於地庫層,共提供105個住宅停車位。項目已獲滿意紙,將以現樓形式發售。

The YOHO Hub II提供939伙 三房佔半 面積最大1035呎|新盤樓書 The YOHO Hub II提供939伙 三房佔半 面積最大1035呎|新盤樓書 The YOHO Hub II提供939伙 三房佔半 面積最大1035呎|新盤樓書 The YOHO Hub II提供939伙 三房佔半 面積最大1035呎|新盤樓書 The YOHO Hub II提供939伙 三房佔半 面積最大1035呎|新盤樓書 The YOHO Hub II提供939伙 三房佔半 面積最大1035呎|新盤樓書 The YOHO Hub II提供939伙 三房佔半 面積最大1035呎|新盤樓書 The YOHO Hub II提供939伙 三房佔半 面積最大1035呎|新盤樓書 The YOHO Hub II提供939伙 三房佔半 面積最大1035呎|新盤樓書 The YOHO Hub II提供939伙 三房佔半 面積最大1035呎|新盤樓書 The YOHO Hub II提供939伙 三房佔半 面積最大1035呎|新盤樓書 The YOHO Hub II提供939伙 三房佔半 面積最大1035呎|新盤樓書 The YOHO Hub II提供939伙 三房佔半 面積最大1035呎|新盤樓書 The YOHO Hub II提供939伙 三房佔半 面積最大1035呎|新盤樓書 The YOHO Hub II提供939伙 三房佔半 面積最大1035呎|新盤樓書 The YOHO Hub II提供939伙 三房佔半 面積最大1035呎|新盤樓書

The YOHO Hub II示範單位

The YOHO Hub II」設有4個連裝修及家具現樓示範單位,涵蓋兩房及三房戶型;其中兩房示範單位為830A室,實用面積467方呎,包含一個22方呎的露台,樓層與樓層之間的高度為3米。單位布置以米色系為主要色調,選用大量木製家具,客廳放置高雅的象牙白色布藝梳化,另一端牆身設有置物架,另擺放原木地櫃。飯廳天花採用鏡面設計,選以淺色原木4人餐桌,配上同樣淺木原木拼墨綠色皮革餐椅。

單位採用時尚開放式廚房設計,呈長方形設計,工作檯面以淺色雲石紋理鋪砌,配備德國品牌Siemens家電組合,並採用隱藏式設計,裝嵌於貯物櫃當中。主人睡房採用偌大玻璃窗設計,雙人大床放在靠窗位置,睡房另一邊放置一組淺桃木色高身衣櫃。為了切合家庭客的需要,設計師將睡房1打造為童趣滿分的兒童房,睡床側設有矮身書桌及大象造型的兒童椅。浴室貫徹全屋色調,配備淋浴間、洗手盆及坐廁。

The YOHO Hub II 830A 467呎兩房

三房示範單位設有3個,其中830H室,實用面積901方呎,三房一套房連儲物房及工作間連洗手間間隔,包括一個35方呎的露台及16方呎的工作平台。樓層與樓層之間的高度為3米,間隔方正實用。客飯廳整體以色調柔和的大地色系為空間的基調,右側位置放置白色不規則形狀的梳化,配以深啡色長方形地毯,另一端選用三面白色長方形及原木圓柱合拼為牆身,内含壁燈。單位採梗廚設計,特設雙洗滌盆設計,並配備一系列隱藏式木紋設計櫥櫃,以及珠光面白色吊櫃。

主人房整體房間運用大地色系為主調,雙人大床放在靠窗位置,大床的旁邊放置日系實木揭蓋式梳妝臺,旁邊亦設有落地式衣櫃。睡房1設計為客房,單人床擺放靠窗位置,床尾的牆上掛上兩種圓形創意配搭的掛牆式置物架,床邊擺放多用途書桌連珠光白漆面吊櫃以及層架。睡房2為兒童房,同樣貫徹大地色設計,運用一系列淺色原木家具,包括擺放配有衣櫥的單人高架床,上層的單人床貼心地設置圍欄以及壁燈。

The YOHO Hub II830H 901呎三

adblk5
The YOHO Hub II示範單位|逾900呎三房套採大地色系為主調 打造特色閲讀空間|多圖有片 The YOHO Hub II示範單位|逾900呎三房套採大地色系為主調 打造特色閲讀空間|多圖有片 The YOHO Hub II示範單位|逾900呎三房套採大地色系為主調 打造特色閲讀空間|多圖有片 The YOHO Hub II示範單位|逾900呎三房套採大地色系為主調 打造特色閲讀空間|多圖有片 The YOHO Hub II示範單位|逾900呎三房套採大地色系為主調 打造特色閲讀空間|多圖有片 The YOHO Hub II示範單位|逾900呎三房套採大地色系為主調 打造特色閲讀空間|多圖有片 The YOHO Hub II示範單位|逾900呎三房套採大地色系為主調 打造特色閲讀空間|多圖有片 The YOHO Hub II示範單位|逾900呎三房套採大地色系為主調 打造特色閲讀空間|多圖有片 The YOHO Hub II示範單位|逾900呎三房套採大地色系為主調 打造特色閲讀空間|多圖有片 The YOHO Hub II示範單位|逾900呎三房套採大地色系為主調 打造特色閲讀空間|多圖有片 The YOHO Hub II示範單位|兩款現樓三房一齊睇 639呎以日式主題打造|多圖有片 The YOHO Hub II示範單位|兩款現樓三房一齊睇 639呎以日式主題打造|多圖有片 The YOHO Hub II示範單位|兩款現樓三房一齊睇 639呎以日式主題打造|多圖有片 The YOHO Hub II示範單位|兩款現樓三房一齊睇 639呎以日式主題打造|多圖有片 The YOHO Hub II示範單位|兩款現樓三房一齊睇 639呎以日式主題打造|多圖有片 The YOHO Hub II示範單位|兩款現樓三房一齊睇 639呎以日式主題打造|多圖有片 The YOHO Hub II示範單位|兩款現樓三房一齊睇 639呎以日式主題打造|多圖有片 The YOHO Hub II示範單位|兩款現樓三房一齊睇 639呎以日式主題打造|多圖有片 The YOHO Hub II示範單位|兩款現樓三房一齊睇 639呎以日式主題打造|多圖有片 The YOHO Hub II示範單位|兩款現樓三房一齊睇 639呎以日式主題打造|多圖有片 The YOHO Hub II示範單位|兩款現樓三房一齊睇 639呎以日式主題打造|多圖有片 The YOHO Hub II示範單位|兩款現樓三房一齊睇 639呎以日式主題打造|多圖有片 The YOHO Hub II示範單位|兩款現樓三房一齊睇 639呎以日式主題打造|多圖有片 The YOHO Hub II示範單位|兩款現樓三房一齊睇 639呎以日式主題打造|多圖有片 The YOHO Hub II示範單位|兩款現樓三房一齊睇 639呎以日式主題打造|多圖有片 The YOHO Hub II示範單位|兩款現樓三房一齊睇 639呎以日式主題打造|多圖有片 The YOHO Hub II示範單位|兩款現樓三房一齊睇 639呎以日式主題打造|多圖有片 The YOHO Hub II示範單位|兩款現樓三房一齊睇 639呎以日式主題打造|多圖有片 The YOHO Hub II示範單位|兩款現樓三房一齊睇 639呎以日式主題打造|多圖有片 The YOHO Hub II示範單位|兩款現樓三房一齊睇 639呎以日式主題打造|多圖有片 The YOHO Hub II示範單位|467呎兩房連家具 打造兒童房切合家庭客|多圖有片 The YOHO Hub II示範單位|467呎兩房連家具 打造兒童房切合家庭客|多圖有片 The YOHO Hub II示範單位|467呎兩房連家具 打造兒童房切合家庭客|多圖有片 The YOHO Hub II示範單位|467呎兩房連家具 打造兒童房切合家庭客|多圖有片 The YOHO Hub II示範單位|467呎兩房連家具 打造兒童房切合家庭客|多圖有片 The YOHO Hub II示範單位|467呎兩房連家具 打造兒童房切合家庭客|多圖有片 The YOHO Hub II示範單位|467呎兩房連家具 打造兒童房切合家庭客|多圖有片 The YOHO Hub II示範單位|467呎兩房連家具 打造兒童房切合家庭客|多圖有片 The YOHO Hub II示範單位|467呎兩房連家具 打造兒童房切合家庭客|多圖有片 The YOHO Hub II示範單位|467呎兩房連家具 打造兒童房切合家庭客|多圖有片 The YOHO Hub II示範單位|467呎兩房連家具 打造兒童房切合家庭客|多圖有片 The YOHO Hub II示範單位|467呎兩房連家具 打造兒童房切合家庭客|多圖有片 The YOHO Hub II示範單位|467呎兩房連家具 打造兒童房切合家庭客|多圖有片

830J室,實用面積639方呎,三房一套房連開放式廚房間隔,包括一個23方呎的露台及16方呎的工作平台。單位整體的布置以日式為主題,客飯廳呈長方形,客廳以落地玻璃折疊門設計連接露台,單位採用開放式廚房設計,廚房呈L形。主人睡房設有兩個偌大的玻璃窗,靠窗位置擺放雙人大床,另一旁擺放一組高身淺色拼深啡色門柄的衣櫃。設計師將睡房1設計成色彩繽紛的兒童房,靠窗位置掀放一張單人床,側設有矮身書桌及粉啡色毛絨兒童椅。睡房2設計成可供書房或睡房之用的多用途房,以暖色調為主,靠窗位置擺放素雅的象牙白色亮飾面書桌,配以圓形木椅

The YOHO Hub II830J 639呎三

至於830C室,實用面積534方呎,三房開放式廚房間隔,包括一個22方呎的露台。單位一室布置以杏色為主調,客廳放置米白的布藝梳化,配合獨特的灰白色橫紋地毯,擺放杏色雲石紋茶几以及兩張棗紅色皮質椅子後空間仍感寬敞。單位採用開放式廚房設計,灰色亮飾面拼深木紋廚櫃與象牙白色雲石工作檯面互相映襯。主人睡房貫徹單位以杏色調為主軸,睡房1以簡約低調的淺暖灰色為主,睡房2打造成休閒舒適的書房及睡房空間,偌大的玻璃窗旁擺放啡色皮飾面的書桌及米白色布藝椅子,一旁擺放的雲石面活動儲物櫃更以優雅花卉作點綴。

The YOHO Hub II830C 534呎三

示範單位地址:元朗朗樂路1

The YOHO Hub II價單

4號價單:94伙 折實平均呎價14338

發展商於917加推4號價單,涉及94伙,單位均位於全新第6座,涵蓋34伙兩房及60伙三房單位,實用面積介乎462至905方呎。價單定價由808.8萬至1,534.4萬元,呎價介乎15,394元至18,465元。以最高折扣15.5%計算,單位折實售價由683.43萬至1,296.56萬元,折實呎價介乎13,008元至15,603元,折實平均呎價14,338元。以定價計,該批市值超過10億元。入場單位為第6座3樓A室,實用面積462方呎,兩房間隔,折實價683.43萬元,折實呎價14,793元。三房售價最低單位為第6座3樓B室,實用面積538方呎,折實價782.47萬元,折實呎價14,544元。

新地副董事總經理雷霆形容該批單位為「黃金機會無敵價」,他認為減息周期即將開始,未來面對減息,不少人士將把握機會調整資產配置,投資客會買樓收租,租樓客為改善居住環境入市,項目租金表現理想,料能加強買家入市信心。

3號價單:144伙 折實平均呎價16188元

發展商於512加推3號價單,涉及144伙,涵蓋77伙兩房及64伙三房,單位實用面積由436至903方呎,維持最高15.5%折扣,折實售價由663.57萬至1,462.35萬元,折實呎價介乎14,732元至18,843元,折實平均呎價16,188元。因今批主要集中高層單位,景觀較優質,部分單位樓層與樓層之間的高度亦較高,故售價有約1%至2%輕微加幅。

2號價單:94 折實平均呎價15038

發展商於55加推2號價單,涉及94伙,涵蓋40伙兩房及54伙三房單位,實用面積介乎466905方呎。價單定價由809.9萬至1,577萬元,呎價介乎15,519元至19,188元。扣除15.5%最高折扣後,單位折實售價由684.36萬至1,332.56萬元,折實呎價介乎13,114元至16,214元。最低售價單位為第85D室,兩房間隔,實用面積467方呎,折實售價684.36萬元,折實呎價約14,655元。

1號價單:188 折實平均呎價14338

發展商於430公布首張價單,涉及188伙,涵蓋71伙兩房及117伙三房,實用面積介乎467905方呎。價單定價由808.2萬至1,538.3萬元,呎價介乎15,394元至18,396元。以最高折扣15.5%計算,單位折實售價由682.92萬至1,299.86萬元,折實呎價介乎13,008元至15,544元。以定價計,該批市值超過20.7億元。

新地副董事總經理雷霆形容該批價單為「隨行就市價」,他稱集團素來以貼市價推盤,是次定價已考慮和上期位置及景觀有差別,相信該價格為買家所接受。首張價單入場單位為第83D室,兩房間隔,實用面積467方呎,折實售價682.92萬元,折實呎價約14,624元。至於最低呎價單位為第83H室,三房間隔,實用面積905方呎,折實售價1,177.25萬元,折實呎價13,008元。另外,三房最低售價單位為第83C室,實用面積537方呎,折實售價777.56萬元,折實呎價14,480元。

The YOHO Hub II銷售安排

次輪銷售:213伙 最平663.57萬

The YOHO Hub II於5月18日次輪發售213伙,涵蓋107伙兩房及106伙三房,折實售價由663.57萬至1,462.35萬元,折實呎價13,484元至18,843元,折實平均呎價約15,640元。以定價計,該批市值約21億元。入場單位為第8座3樓B室,兩房間隔,實用面積436方呎,折實售價663.57萬元,折實呎價約15,219元。發售當日會安排A、B兩組進行揀樓,當中A組至少購買1伙600方呎及以上單位,或2至4伙單位,此時段可供發售單位包括20伙兩房及58伙三房;B組則可購買1至2伙單位。

首輪銷售:210伙 最平682.92萬

The YOHO Hub II」落實511日首輪發售210,涵蓋81伙兩房及129伙三房,該批折實售價由682.92萬至1,332.56萬元,折實呎價13,008元至16,214元,折實平均呎價14,550元。發售當日將分AB兩組揀樓,其中A組至少購買1600方呎及以上單位,或24伙兩房或三房單位,A組時段共提供131伙;B組則可購買12伙單位。

The YOHO Hub II會所

The YOHO Hub II」採用雙住客會所設計,「Club Vim」連同已啟用的北面會所「Club Vis」組成約4萬方呎室內會所面積,雙住客會所的戶外園林面積達21萬方呎;而項目每方呎管理費約4.62元。Club Vim」會所大堂「耀鑽大堂」以摩登時尚的風格為主題,特意於牆上設計成多個陳列架,以富現代感的幻彩色調設計,陳列出多個藝術擺設、書籍及特色盆栽等;一旁的「爍聚」為住戶提供寧謐的休憩空間。

Club Vim」室外特設約28米戶外泳池「海天池」,住戶可盡情暢泳於寫意的綠化戶外空間,將元朗市的繁華景致盡收眼底。泳池旁更有特別為小朋友而設的「海天嬉水池」,設有不同的玩樂設施,打造兒童專屬的繽紛水上世界。池畔更設有「海天閒座」,為住戶提供舒適寫意的閒坐區。此外,會所提供多用途宴會廳「盛聚」,連同宴會廳的戶外燒烤設備,適合舉辦私人派對,廣宴親朋。為配合現代人追求健康生活的趨勢,會所特設具備多項運動體育設施的「極躍健身室」,備有完善健身器材,包括跑步機、單車機、戰繩、拳擊沙包等。

會所特別為兒童打造室內「童樂天地」,當中設有多個刺激的玩樂設施包括滑梯、障礙賽道、接觸式互動裝置等;地上亦會鋪滿軟墊,讓兒童在盡情奔跑及玩樂之餘,亦可安全地攀爬。會所為締造工作與生活平衡的悠然生活,悉心特設「匯議室」,為住戶提供在公司以外的高效工作空間;更設有「思創坊」,住戶可邀親朋好友進行撲克牌或棋類遊戲或比賽,享受無窮樂趣。

另備有多元化的娛樂配套,包括麻雀房「決戰四方」、設有鋼琴的「音律琴室」等。另外,特設「YOHO工作室I」及「YOHO工作室II」,其中「YOHO工作室 II」可讓富有攝影觸覺的住戶緊貼潮流,在專屬攝影配套下享受攝影樂趣之餘,更可於私隱度高的空間進行拍攝。「YOHO工作室 I」則配置型格螢光天花燈帶、舞台及各種燈光效果,住戶可作排練之用,盡情享受表演的樂趣。

adblk6
元朗The YOHO Hub II住客會所Club Vim有得睇 擁28米戶外泳池|多圖 元朗The YOHO Hub II住客會所Club Vim有得睇 擁28米戶外泳池|多圖 元朗The YOHO Hub II住客會所Club Vim有得睇 擁28米戶外泳池|多圖 元朗The YOHO Hub II住客會所Club Vim有得睇 擁28米戶外泳池|多圖 元朗The YOHO Hub II住客會所Club Vim有得睇 擁28米戶外泳池|多圖 元朗The YOHO Hub II住客會所Club Vim有得睇 擁28米戶外泳池|多圖 元朗The YOHO Hub II住客會所Club Vim有得睇 擁28米戶外泳池|多圖 元朗The YOHO Hub II住客會所Club Vim有得睇 擁28米戶外泳池|多圖 元朗The YOHO Hub II住客會所Club Vim有得睇 擁28米戶外泳池|多圖 元朗The YOHO Hub II住客會所Club Vim有得睇 擁28米戶外泳池|多圖 元朗The YOHO Hub II住客會所Club Vim有得睇 擁28米戶外泳池|多圖 元朗The YOHO Hub II住客會所Club Vim有得睇 擁28米戶外泳池|多圖 元朗The YOHO Hub II住客會所Club Vim有得睇 擁28米戶外泳池|多圖 元朗The YOHO Hub II住客會所Club Vim有得睇 擁28米戶外泳池|多圖 元朗The YOHO Hub II住客會所Club Vim有得睇 擁28米戶外泳池|多圖 元朗The YOHO Hub II住客會所Club Vim有得睇 擁28米戶外泳池|多圖 元朗The YOHO Hub II住客會所Club Vim有得睇 擁28米戶外泳池|多圖 元朗The YOHO Hub II住客會所Club Vim有得睇 擁28米戶外泳池|多圖 元朗The YOHO Hub II住客會所Club Vim有得睇 擁28米戶外泳池|多圖 元朗The YOHO Hub II住客會所Club Vim有得睇 擁28米戶外泳池|多圖 元朗The YOHO Hub II住客會所Club Vim有得睇 擁28米戶外泳池|多圖 元朗The YOHO Hub II住客會所Club Vim有得睇 擁28米戶外泳池|多圖 元朗The YOHO Hub II住客會所Club Vim有得睇 擁28米戶外泳池|多圖 元朗The YOHO Hub II住客會所Club Vim有得睇 擁28米戶外泳池|多圖 元朗The YOHO Hub II住客會所Club Vim有得睇 擁28米戶外泳池|多圖 元朗The YOHO Hub II住客會所Club Vim有得睇 擁28米戶外泳池|多圖 元朗The YOHO Hub II住客會所Club Vim有得睇 擁28米戶外泳池|多圖 元朗The YOHO Hub II住客會所Club Vim有得睇 擁28米戶外泳池|多圖 The YOHO Hub II一至兩周內開價 爭取五一黃金周開放現樓示範單位|元朗新盤 The YOHO Hub II一至兩周內開價 爭取五一黃金周開放現樓示範單位|元朗新盤

The YOHO Hub II周邊配套、交通及校網

The YOHO Hub II」具備多重交通網絡,通過基座商場及行人天橋,項目直連港鐵元朗站,經屯馬線約半小時可直達西九龍高鐵站,亦直通鑽石山站,連接啟德商業區、九龍灣商貿區和觀塘商貿區,經換乘後40分鐘左右可達九龍站ICC及香港站IFC。項目附近商場形點樓下設有巴士總站,路邊亦有多條巴士及小巴路線來往港九新界。

購物方面,項目基座商場「YOHO MIX元點」及鄰近「YOHO PLUS加點」敲定今年61(星期六)開幕,連同旗艦商場「YOHO MALL形點」,3個商場所組成的YOHO品牌都會圈總零售面積由110萬方呎增至120萬方呎,商戶總數亦多約三成,至逾430間,車位數目亦由約1,500個增至2,300個。

YOHO MIX元點」樓面面積近11萬方呎,提供逾70間商店,主打特色食店和音樂藝術廣場,現已確定引進駐商戶包括日本燒肉店YAKINIKU KAKURA、台灣湊湊火鍋、舒芙蕾pancake FufulandBFF Burger、德國糖果店 Bears & Friends等。至於「YOHO PLUS加點」以為新生代建構全面的教育空間,商場樓面面積近4萬方呎,提供逾40間商店。現已獲多個教育中心品牌落實進駐,包括Little Prince ART、狀學堂及啓蒙教育,另引駐美客中心D. Skin Solutions Center、輕食店餃里及幸谷駅。

YOHO系列商場還打造有逾18萬方呎的綠化空間及8大主題多元化的共享設施,而「YOHO MIX元點「的全新設施「戶外廣場」、「光影長廊」及「棒棒糖公園」亦同步於61日開放使用。YOHO系列商場合共提供約2,300個車位,車場已配備多項數碼智能泊車設備,當中包括即時預覽泊車位數目、免觸式泊車無縫進出車場、以手機程式自助換領商場泊車優惠及電動車特快充電等。

校網方面,The YOHO Hub II74小學校網,中學為元朗區。

即睇元朗The YOHO Hub II最新資訊 (House730)

ADVERTISEMENT

立即更新/下載AM730手機APP 體驗升級功能

ad