朗賢峯價單、示範單位、平面圖 何文田新盤懶人包(有片)|不斷更新
港鐵何文田站上蓋壓軸住宅項目、由鷹君集團(041)與港鐵(066)合作發展的「朗賢峯」正式登場。am地產特意為讀者準備「朗賢峯」懶人包,一文睇清「朗賢峯」價單、樓書平面圖、示範單位、呎價、價單、戶型、配套設施、交通與位置等重要資訊。
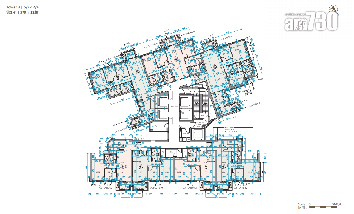
朗賢峯戶型分布、平面圖、車位
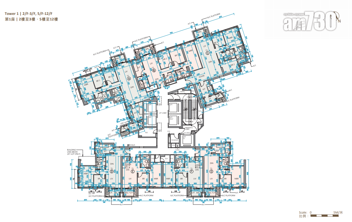
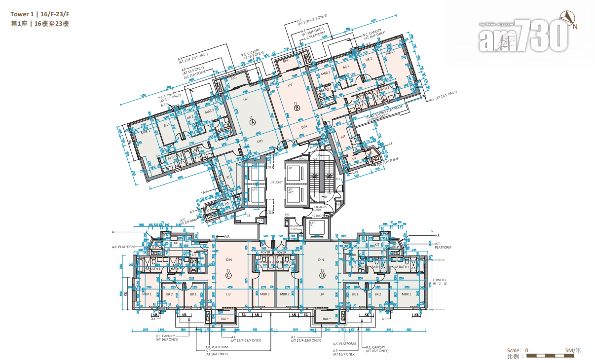
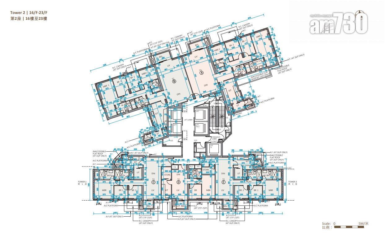
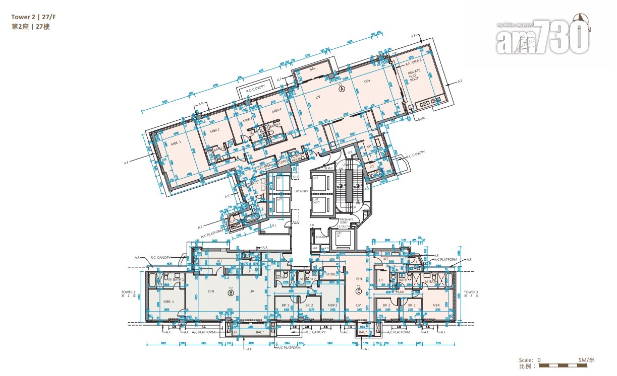
「朗賢峯」由5座住宅大樓組成,第IIA及IIB期各涉418伙及572伙,合共提供990伙,戶型涵蓋一房至四房,實用面積介乎340至2,572方呎。當中第1座至第3座屬第IIA期,標準樓層每層設4至7伙及5部升降機;另第5座和第6座屬第IIB期,細分相連的A、B兩翼,標準樓層每層設12伙及5部升降機。
戶型分布方面,項目主打兩房涉372伙,佔全盤約38%,實用面積由482至685方呎;三房提供281伙或約28%,實用面積由725至998方呎;一房佔198伙或約20%,實用面積由377至388方呎;四房提供60伙或約6%,實用面積由1,271至1,433方呎。另設平台及頂層等特色戶,佔79伙或約8%,實用面積由340至2,572方呎。
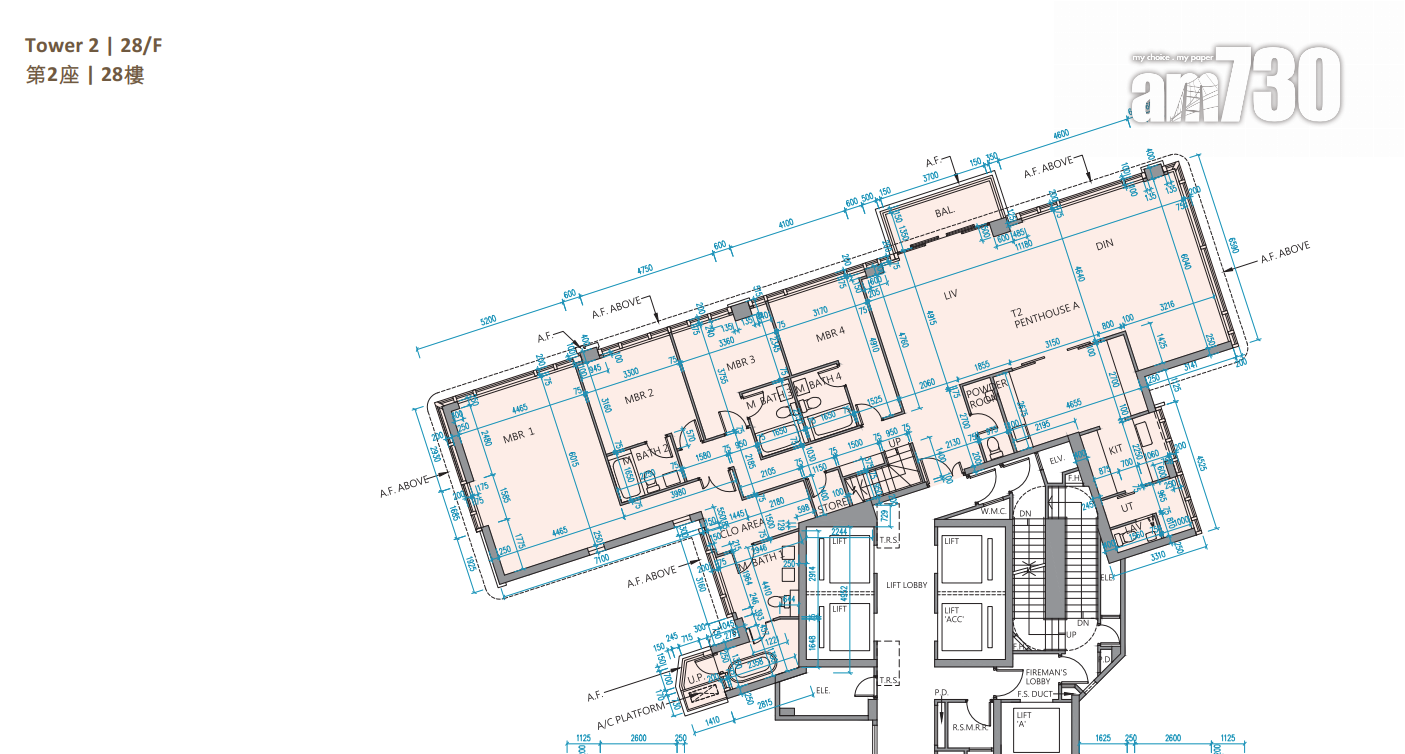
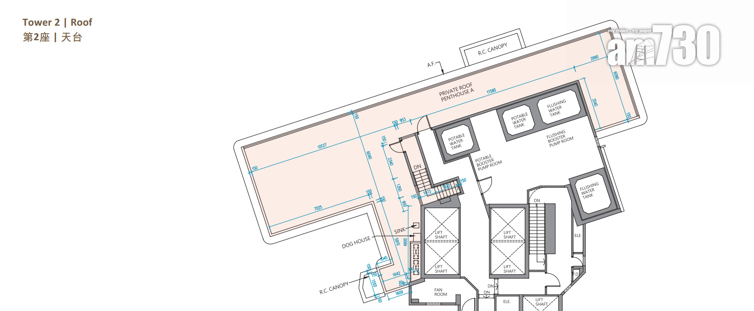
全盤面積最細單位為第IIB期第5B及6B座1樓D及E室,一房間隔,實用面積340方呎,連108至110方呎平台。全盤面積最大為第IIA期2座28樓A室,四房間隔,實用面積為2,572方呎,連1,342方呎天台,可經由室內樓梯抵達。
「朗賢峯」提供264個住宅停車位,預計關鍵日期為2025年3月31日。
朗賢峯示範單位
「朗賢峯」提供2個示範單位,包括1個三房一套連工作間的無改動示範單位,以IIA期1座7樓A室為藍本搭建,實用面積998方呎;以及1個一房開放式廚房無改動示範單位,以IIB期6B座20樓C室為藍本搭建,實用面積388方呎。
三房示範單位向南,層與層之間的高度達3.3米。玄關兩邊均設有多功能櫃,收納空間充足,客飯廳呈長方形布局,間隔方正實用及易於擺放家具。客飯廳長約25.2呎、闊10.2呎,面積逾250方呎。飯廳亦設有對流窗,全屋窗戶採用IGU雙層中空玻璃,露台與冷氣機平台合併於同一空間,便於檢查維修。
單位廚房及浴室均採用「Japandi」設計風格,透過結合日本和風美學和北歐極簡主義的設計。廚房配備雙邊工作枱面提供足夠煮食及備餐空間。至於廚房內的抽油煙機、煤氣煮食爐、兩頭電磁爐、蒸焗爐及雪櫃均採用德國知名品牌Miele,酒櫃及洗衣乾衣機則採用歐洲知名品牌Gorenje;而鋅盤及水龍頭則採用瑞士品牌Franke同意大利品牌Gessi。此外,廚房連接工作間及洗手間,並外接工作平台及冷氣機平台,提供充足空間。浴室設有窗戶,屬「明廁」設計,配備德國知名品牌AXOR及Duravit潔具。鏡櫃及儲物櫃則配以優美線條、雅緻的木紋牆身、儲物櫃,更特別配置Panasonic浴室寶。
一房示範單位採長方形客廳及飯廳設計,客飯廳連開放式廚房長約20.9呎及8.7呎闊,面積逾180方呎,玄關位置更特設多功能櫃。單位亦採用「三合一」露台設計,單位均鋪設複合木地板及裝設大金變頻冷暖分體式空調機,標準單位層與層之間高度達3.3米。
主人房方面,間隔方正實用,寬敞舒適,長約8.6呎、闊7.7呎,面積約66方呎,足夠擺放睡床、衣櫃、書枱或梳妝枱,主人房配備大型落地窗。單位廚廁均採用「Japandi」設計風格,開放式廚房用料講究且空間感十足,帶有個性的深灰色石紋廚櫃面板與特大L型淺色檯面結合。浴室「一廁雙門,客套雙用」靈活運用,收納空間充足,牆身鋪砌天然石材。鏡櫃及儲物櫃配以優美線條,加上雅緻的木紋牆身。至於單位配置LOCKLY智能電子門鎖,配備專利的PIN GENIE防窺視密碼鍵盤,亦包括指紋開鎖、門鐘及實時視訊通話等功能,提升家居安全。
值得一提,「朗賢峯」全數單位備置Miele廚房家電,更選用Miele Generation 7000廚房家電系列,整個項目總零售金額高達逾1.4億元。
示範單位地址:旺角亞皆老街8號朗豪坊辦公大樓15樓
朗賢峯IIB期價單
5號價單:134伙 折實平均呎價22,715元
發展商於4月30日加推5號價單,涉及134伙,扣除最高折扣18%後,折實售價由718.2萬至2,030.7萬元,折實呎價介乎18,558元至27,219元,折實平均呎價22,715元。最低售價及呎價單位同為第5B座2樓C室,實用面積387方呎,一房間隔,折實售價718.2萬元,折實呎價18,558元。
4號價單:150伙 折實平均呎價22,122元
發展商於4月29日加推4號價單,涉及150伙,涵蓋第IIB期全新推出的第5A座及第5B座單位。扣除最高折扣18%後,折實售價由701.1萬至1,943.4萬元,折實呎價由18,597元至28,350元,折實平均呎價22,122元。
3號價單:81伙 折實平均呎價22,398元
發展商於4月23日加推3號價單,涉及81伙,全數屬IIB期單位,涵蓋22伙標準一房、24伙標準兩房、15伙標準三房,實用面積介乎388至774方呎,以及首度推出第IIB期平台特色戶及天台特色戶,實用面積340至761方呎,共20伙。扣除最高折扣18%後,折實售價介乎718.5萬至2,002萬元,折實呎價介乎19,209元至25,866元。
2號價單:88伙 折實平均呎價20,969元
發展商於4月20日加推2號價單,涉及88伙,全數屬IIB期單位,涵蓋44伙一房、22伙兩房及22伙三房,單位實用面積介乎377至760方呎,所有單位均為標準分層戶。價單定價由848.9萬至2,212.6萬元,呎價介乎22,517元至29,113元。扣除18%最高折扣,單位折實售價由696.1萬至1,814.3萬元,折實呎價介乎18,464元至23,872元。有一半單位、約44伙折實呎價低於2萬元。
整批單位折實平均呎價20,969元,由於推出單位的樓層、坐向及景觀略有不同,撇除上述因素後,是次仍屬原價加推。最低售價為6B座2樓D室,實用面積377方呎,一房開放式廚房間隔,折實售價696.1萬元,折實呎價18,464元。
朗賢峯原價加推IIB期88伙 折實均呎20969元 入場一房7球有找|何文田新盤
1號價單:115伙 折實平均呎價19,988元 同區8年最低
發展商於4月17日公布首張價單,提供115伙,全數屬IIB期單位,涵蓋44伙一房、42伙兩房及29伙三房單位,實用面積介乎388至774方呎。單位價單定價由839.9萬至2,255.2萬元,呎價由21,647元至29,137元。以最高18%折扣計算,單位折實售價由688.7萬至1,849.3萬元,折實呎價介乎17,750元至23,892元;當中有68伙折實呎價低於2萬元,佔首張價單約六成。
鷹君地產代理銷售及市務總經理梁淑儀形容首批單位屬「壓軸心動價」,定價已參考近期市場上鐵路新盤,認為項目開價吸引,項目首張價單中最低售價及呎價單位同為6B座2樓C室,實用面積388方呎,一房開放式廚房間隔,折實售價688.7萬元,折實呎價17,750元。
至於兩房最低售價單位為6A座2樓F室,實用面積528方呎,兩房開放式廚房間隔,折實售價1,000.6萬元,折實呎價18,951元。另外,三房最低售價單位為6A座2樓A室,實用面積774方呎,三房一套加工作間連洗手間間隔,折實售價1,501.6萬元,折實呎價19,401元。
朗賢峯銷售安排
IIB期248伙5月4日起價單發售
發展商於4月30日上載IIB期銷售安排,次輪推248伙於5月4日起以價單形式推售248伙,截票時間為本周四(5月2日)下午6時。據銷售安排顯示,銷售當日將會分3節出售,最先為V組,買家必須購買最少3伙及不多於8伙指定單位;緊隨為A組,買家必須購買最少1伙及不多於3伙A組單位;最後為B組,買家必須購買最少1伙及最多2伙B組單位。
IIB期260伙4月27日起價單發售
發展商於4月23日上載IIB期銷售安排,首推260伙於4月27日起以價單形式發售。入場單位為6B座2樓C室,實用面積388方呎,一房開放式廚房間隔,折實售價688.7萬元,折實呎價17,750元。項目特設大手客時段,屆時將按序分3組進行選購,其中V組最先選購,須購買最少3個及不多於8個V組單位,緊接著A組可選購最少1個及不多於3個A組單位,最後B組必須購買最少1個及最多2個B組單位。
IIA期84伙4月25日起招標發售
發展商於4月21日上載IIA期銷售安排,首推84伙於4月25日起以招標形式發售。是次招標單位分布第1座至第3座,首度推出「站頂」獨有標準四房雙套加工作間連洗手間之大宅,實用面積介乎1,271至1,433方呎,共16伙;以及標準三房一套加工作間連洗手間及儲物室單位,實用面積由899至998方呎,共65伙,並同時推出三房一套的平台特色戶,共3伙。
發展商指,招標單位意向價將參考九龍沿線鐵路上蓋豪宅物業。
朗賢峯會所「Club ONMANTIN」設逾30項設施
「朗賢峯」自設住客會所「Club ONMANTIN」,連戶外園林合共佔地近12萬方呎,為何文田站上蓋最具規模的住客園林會所。「Club ONMANTIN」入口以玻璃盒為設計主題,而整個會所由多個主題展館(pavilions)構建而成,分布兩層(地下及地下2層),提供逾30項室內外動靜設施。
包圍項目而建的ON THE FRINGE戶外園林空間,面積達逾2.2萬方呎,沿忠孝街一直伸延至佛光街,長度達約240米。On the Fridge戶外園林設4大主題專區,包括提供近7,000方呎(闊約12米)玩樂空間的的親子花園Chill‘n’Relax樂聚休憩、佔地近8,000方呎的戶外成人健身訓練區Fit‘n’Flex 舒展鍛鍊,以來回折返計算全長約349米On The Track緩跑徑,以及佔地近7,400方呎的戶外兒童體能訓練區的Jump‘n’Roll 遊樂嬉戲。
Club ONMANTIN配備4個各具特色的水類運動設施,包括長約50米無邊際室外游泳池,長約25米室內恆溫游泳池,另備冷暖按摩池,以及7米長的兒童嬉水池。位於泳池旁邊的On the Pulse健身室配備一系列美國知名品牌「Life Fitness」的先進健身器材;當中更設有4部ICG indoor cycles,讓住戶進行專業級的室內單車帶氧訓練。
至於在會所LG2層設有面積約1,600方呎室內運動場,可作多用途活動,更設有逾5米闊的投影機螢幕與投影機。視聽娛樂室除設有Karaoke設施外,內設KOL直播室,提供專業級的影音設備。此外,設有2個寬敞的多用途宴會廳Grand Banquet Room,宴會廳間以趟門分隔,可獨立或相連使用,當中多用途宴會廳1更可與室外BBQ庭院,打開趟門便可舉行燒烤派對。廚藝室Cooking Studio可作8人cooking class。值得一提,2個多用途宴會廳可與廚藝室相連,打通後成面積達1,550方呎、長逾17米宴會廳,可招待近40位賓客,方便住客舉辦生日會或百日宴等小型宴會。
另外,Adventure Base玩樂空間接通G至LG2層、佔地約4,000方呎的兒童玩樂空間,當中設有兩條Tube’n’Cube滑梯,長度分別約9米及約4米,並連接高達10米的Play tower;玩樂空間另設6組不同玩樂設施,包括彈跳床、鳥巢鞦韆、攀爬金字塔等。
位於地下樓層的室內兒童玩樂室The Skyhouse以「空中氣球」為設計主題,適合3歲或以上的幼童玩樂,中央設有熱氣球設滑梯、攀爬樓梯;而閱讀區提供玩具書本、儲物架及休憩空間,配合豐富的色彩設計營造與別不同的空間感。旁邊的MakerSpace才藝空間可作多用途消閒健體的活動室,配有闊約8米、高約3米的落地大鏡、瑜珈墊及芭蕾舞桿,可作舞蹈、劍擊、柔道及瑜伽等活動;才藝空間內另備餐桌、可疊式椅子、附微波爐的儲藏櫃,可作小朋友的生日party,不論大人小朋友亦可使用。
朗賢峯周邊配套、交通及校網
「朗賢峯」屬何文田站上蓋項目,設專屬升降機連接港鐵何文田站A4出口,3站抵達金鐘、尖沙咀及啟德。驅車約9分鐘至高鐵香港西九龍站,可經紅磡海底隧道前往港島。亦有多條巴士及小巴路線穿梭港九新界。
區內購物方面有何文田廣場及愛民廣場,生活便利,供購買日常所需;項目亦鄰近大型購物商場,如尖沙咀K11 MUSEA、啟德AIRSIDE、旺角朗豪坊等。
校網方面,「朗賢峯」屬34小學校網,中學為九龍城區。







































































