朗天峰懶人包|示範單位+平面圖+價單+配套 一房及兩房送傢俬套餐(多圖有片)|元朗新盤
新盤供應重地之一的新界西,嘉里建設(683)最新推出位於元朗十八鄉路39號「朗天峰」,由兩座住宅大樓組成,提供594伙,實用面積介乎245至851方呎,戶型涵蓋一房至三房,另設平台特色單位及頂層特色單位,預計關鍵日期為今年12月31日。《am地產》特意為讀者準備「朗天峰」懶人包,一文睇清價單、樓書平面圖、示範單位、呎價、價單、戶型、配套設施、交通與位置等重要資訊。
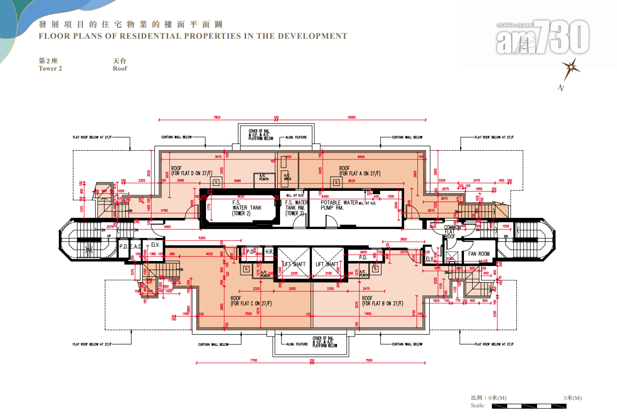
平面圖及戶型分布
「朗天峰」由兩組住宅大樓組成,呈現雙子式布局。第1座細分1A及1B兩翼,樓高23層,第1A及1B座標準單位樓層每層分別設9伙和8伙,均配備2部升降機;第2座樓高22層,標準單位樓層每層設10伙,配備2部升降機。項目著重可持續建築,所有單位均設有私人露台或平台及雙層中空玻璃幕牆,提升自然採光、通風及節能效果。
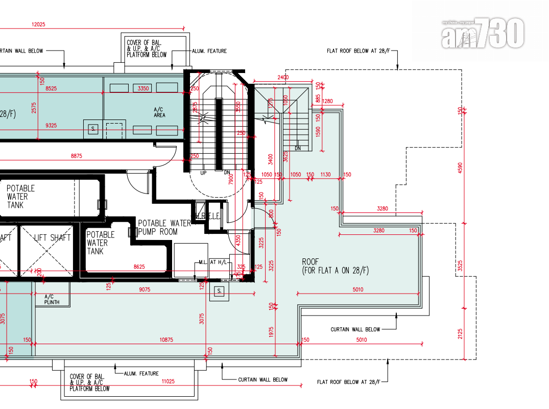
「朗天峰」大部分單位層與層之間的高度為3.5米或以上,戶型分布方面,標準單位主打兩房間隔,提供310伙,佔全盤供應逾五成,實用面積由365至446方呎;其次一房涉226伙佔38%,實用面積由282至311方呎,一房及兩房合佔約90%。至於三房實用面積均為539方呎,提供21伙。另設27伙平台特色單位,實用面積介乎245至502方呎,以及10伙頂層特色單位,實用面積介乎476至851方呎。
全盤面積最細單位為第1B座2樓G室,實用面積245方呎,一房間隔,連66方呎平台;面積最大單位為第1A座28樓A室,實用面積851方呎,三房間隔,連443方呎平台及786方呎天台,單位內設樓梯前往天台。
項目提供60個住宅停車位,位於地庫層,相當於平均近10戶爭一個停車位。
元朗朗天峰樓書出爐!一房最細245呎 兩房佔全盤逾半|新盤樓書
價單、收票及銷售安排
2月12日:1號價單推出120伙
「朗天峰」於2月12日公布首張價單,涉及120伙,涵蓋67伙一房及53伙兩房單位,實用面積介乎286至403方呎。選用120天現金優惠付款計劃享有最高18%折扣,以及不採用傢俬套餐可獲現金回贈計算,單位折實售價由264.8萬元至481萬元,折實呎價介乎8,898元至12,534元,折實平均呎價約10,658元。
首張價單入場單位為第2座3樓J室,實用面積286方呎,一房間隔,折實售價264.8萬元,呎價9,261元。最低呎價單位為第2座3樓B室,實用面積403方呎,兩房間隔,折實售價358.5萬元,折實呎價8,898元。
嘉里發展董事及香港區總經理湯耀宗形容首張價單為「城中森動價」,定價參考同區新盤,相信價格有吸引力,之後有提價空間。他透露,首批單位定價有利潤空間,不需要蝕錢。
朗天峰開價|首推120伙 折實價264.8萬入場 呎價8898元起|元朗新盤
2月16日:2號價單推出70伙
「朗天峰」於2月16日加推2號價單共70伙,涵蓋25伙一房及45伙兩房,實用面積介乎286至403方呎。選用120天現金優惠付款計劃享有最高18%折扣,以及不採用傢俬套餐可獲現金回贈計算,單位折實售價由284.38萬至505.6萬元,折實呎價9,943元至12,736元,折實平均呎價11,376元。發展商指,今批單位涵蓋有角窗大單邊、樓層更高,以及景觀更佳單位,故屬原價加推。
2號價單最低售價及呎價單位同為第2座3樓F室,實用面積286方呎,一房連開放式廚房間隔。
朗天峰原價加推70伙 折實均呎$11376 一房最平284萬|元朗新盤
2月18日:3號價單推出60伙
「朗天峰」於2月18日加推3號價單,涉及60伙,涵蓋32伙一房及28伙兩房,實用面積介乎282至397方呎。扣除最高18%折扣及現金回贈後,折實售價由295.04萬至494.94萬元,折實呎價介乎10,347元至13,558元。
3號價單最低售價單位為第1B座3樓G室,實用面積282方呎,一房連開放式廚房間隔,折實呎價10,462元。最低呎價單位為第1B座3樓F室,實用面積365方呎,兩房連開放式廚房間隔,折實售價377.68萬元,折實平均呎價11,693元。
朗天峰原價加推60伙 折實最平295萬 周六首輪開售250伙|元朗新盤
2月24日:4號價單推出121伙
「朗天峰」於2月24日加推4號價單,涉及121伙,包括32伙一房連開放式廚房單位、53伙兩房連開放式廚房單位、18伙兩房,以及18伙平台特色單位,實用面積由245至446方呎。價單定價由425.6萬至766.5萬元,呎價介乎13,757元至18,761元。扣除最高18%折扣及現金回贈後,單位折實售價由347.2萬至625.73萬元,折實呎價介乎11,210元至15,301元,折實平均呎價12,927元。
發展商表示,是次首次推出平台特色戶及兩房連梗廚單位,同時推出景觀更佳以及更高樓層的單位,故此價錢不能直接比較。今批單位最低售價為第2座2樓J室,實用面積248方呎,連67方呎平台,一房間隔,折實售價347.2萬元,折實呎價14,000元。最低呎價單位為第1B座3樓B室,實用面積395方呎,兩房連開放式廚房間隔,折實售價442.79萬元,折實呎價11,210元。
朗天峰加推121伙 折實均呎近1.3萬 一房最平348萬|元朗新盤
3月1日:5號價單推出120伙
「朗天峰」於3月1日加推第5號價單,涉及120伙,涵蓋37伙一房連開放式廚房單位、62伙兩房連開放式廚房單位、19伙兩房單位,以及2伙兩房連開放式廚房平台特色戶。首度推出景觀及朝向更佳的內園泳池景兩房梗廚單位,並首度推出鳳凰層(第1A座及第1B座的27樓及第2座的26樓)單位,層與層之間高度較標準樓層3.5米更高,達3.6米起。單位實用面積介乎285至446方呎,定價由402.2萬至786.9萬元,呎價介乎13,340元至18,292元。扣除最高18%折扣及現金回贈後,單位折實售價由328.01萬至642.46萬元,折實呎價介乎10,869元至15,000元。
最低售價單位為第1A座3樓D室,實用面積285方呎,一房連開放式廚房間隔,折實呎價約11,509元。至於最低呎價單位為第2座3樓C室,實用面積403方呎,兩房連開放式廚房間隔,折實售價約438.04萬元。
朗天峰加推新價單 折實最平328萬 周四開賣133伙|元朗新盤
收票及首張銷售安排
2月22日首輪銷售250伙 即日沽清
發展商於2月18日上載首份銷售安排,將於2月22日(星期六)推售250伙,即盡推首三張價單所有單位。於出售首日當日,將會分A、B兩組出售,先進行A組,之後B組。A組買家必須揀選最少2個及不多於6個A組單位,或1個「指定兩房單位」;而B組買家揀選最少1個及最多2個B組單位。首輪銷售於2月20日下午2時截票,累收逾14,000票,超額認購逾55倍,暫登上今年「新盤票王」寶座。
首輪發售當日大批準買家於早上9時半前陸續抵達售樓處的報到區排隊等候報到,場面熱鬧,截至下午約5時,全數250伙獲得認購,總成交金額達9.6億元。發展商透露,不少買家選購2伙,亦有3組買家各選購3伙,3組買家各選購4伙,最大手成交涉及金額約1,641萬元。目前已被認購的單位中,最高成交呎價單位為第1A座20樓F室,實用面積397方呎,成交價為港幣508.4萬元,呎價12,806元。
朗天峰首輪截收逾1.4萬票登今年「新盤票王」 超額認購55倍|元朗新盤
朗天峰開賣|首輪250伙8小時沽清勢加推 最豪買家擲1641萬掃4伙|元朗新盤
3月1日次輪銷售121伙
「朗天峰」落實3月1日進行次輪發售121伙,將於2月28日下午5時前截票,之後再進行抽籤決定揀樓次序。
3月5日招標發售10伙頂層特色單位
「朗天峰」落實3月5日招標發售10伙頂層特色單位,每戶均設私家平台及樓梯直達天台,層與層之間高度更達3.65米起。
3月6日第三輪銷售123伙
「朗天峰」落實3月6日進行第三輪銷售,以價單形式推售123伙。
朗天峰加推新價單 折實最平328萬 周四開賣133伙|元朗新盤
一房及兩房示範單位
配備傢俬套餐
「朗天峰」以一房及兩房戶型為主,發展商特別聯同本地著名傢俬品牌Artisan Living推出傢俬套餐,項目所有一房及兩房單位均配備傢俬套餐,傢俬設計採「城中森輕奢風格」,流露自然中的奢華。為配合項目「城中森」的概念,Artisan Living特別打造兩個不同設計風格的系列「Cosmopolitan Collection」和「Natural Collection」,以供客戶選擇。
第1A座18樓J室一房
「朗天峰」設有3個示範單位,其中以第1A座18樓J室為藍本搭建,屬一房連開放式廚房連裝修無改動示範單位,實用面積311方呎。單位間隔方正,層與層之間的高度為3.5米,空間感十足。開放式廚房設曲尺型工作枱面,附設電磁爐、抽油煙機、雪櫃、微波爐及洗衣乾衣機等家電。
第1A座18樓J室展示了「Natural Collection」傢俬套餐,設計風格充滿自然氣息,大地色系為基調,以木和大理石紋製成,搭配灰色暗金色和柔和的米色,營造出高雅又舒適的氛圍。家具的金屬色金屬裝飾線,貫穿兩個系列,以項目LOGO的小鳥為靈感,彷似陽光透射樹林的光線,生機盎然。
另外,這個系列配備多功能的家具,如可轉變形狀的角几和梳化床,實用性十足,配合室內特高樓底的特高約2.4米衣櫃,為項目度身訂造。特寬床底儲物空間,配備油壓裝置,輕鬆收納。
朗天峰示範單位|311呎一房配備傢俬套餐 設計風格充滿自然氣息(多圖有片)|元朗新盤
第1A座18樓H室經改動兩房
至於參照第1A座18樓H室為藍本搭建的兩房連開放式廚房經改動示範單位,實用面積403方呎。單位間隔方正,層與層之間的高度為3.5米,空間感十足。
單位以戶主為咖啡師及插畫師作為設計藍本,透過自然和時尚的用色和設計突顯項目的獨特的風格。客廳飯廳設計以大地色調為主;設計師於客房與客廳的間隔牆身用了半開放的設計,大大增加客廳飯廳的空間感。淺木色吧枱設計作為客廳飯廳的重要元素,為用餐環境增添風格和功能性,設計師更巧妙增設金屬吊櫃用作展示各種沖調咖啡用具。自然材料與玻璃、金屬等結合在一起,創造出富有層次感和對比效果的空間。
至於設計同時亦十分著重實用性和多功能性,設計師運用單位特高樓底的優勢,整個房間均設地台設計,大大增添儲物空間。主人房擺放衣櫃後,仍有足夠空間作三邊落床,同時配合全落地玻璃窗,全屋的採光度大大增加,利用自然光線營造出溫暖而舒適的氛圍。
朗天峰示範單位|403呎兩房開放式廚房戶 特高樓底釋放空間感(多圖有片)|元朗新盤
第1A座18樓H室無改動兩房
發展商同樣備有以第1A座18樓H室為藍本搭建的無改動示範單位,開則方正實用,客飯廳長約5.4米,闊約2.4米,主人睡房長約3米,闊約 2.1米,讓戶主可靈活地擺放不同家具,結合單位的特高樓底,提升室內的空間感,並進一步進行室內設計。
客廳連接特大三合一露台,即露台與工作平台及冷氣機平台合併在一起,讓住戶更舒適地欣賞室外景緻。同時飯廳連接開放式廚房,開放式廚房配備高級MIA CUCINA廚櫃並附設電磁爐、抽油煙機、雪櫃、微波爐及洗衣乾衣機等全方位配備。單位之浴室設計時尚高雅,墨綠色牆身配以圓角處理的鏡框,同時裝設PANASONIC智能浴室寶,設有乾衣、暖氣通風、排氣及配置抗菌過濾網四大功能。
另外,單位大門配備LOCKLY ®智能電子門鎖,設有5種開門方式,配合防偷窺電子按鍵專利技術,提高安全性。
朗天峰示範單位|403呎兩房開放式廚房戶 特高樓底釋放空間感(多圖有片)|元朗新盤
置業優惠
中原按揭推出「置優越按揭優惠」
中原地產及中原按揭特別為「朗天峰」買家呈獻全新按揭及置業優惠,中原按揭董事總經理王美鳳宣布推出「置優越按揭優惠」,凡經中原按揭轉介的「朗天峰」買家均可申請是次優惠,設有兩個選擇,其中「低息定按優惠」計劃由滙豐銀行提供,由中原按揭為客戶轉介,客戶可選擇首5年定息3.03厘,或首3年定息3.18厘,其後按息低至P減1.75厘(P現為5.25厘),按揭年期長達30年,此計劃特設現金回贈,按揭成數高達九成。王美鳳指出,由於此計劃之定息率較現時主要市場按息降低0.32厘至0.47厘,客戶等同可預先享有減息效果、降低每月供款額,並且在定息期內維持供款穩定不變,有利制定預算及進行精確財務規劃。
另一選擇為「置抵H按優惠」,全期按息低至H加1.3厘,實際按息低至3.5厘(以P減2厘;P現為5.5厘計),此設劃特設現金回贈,按揭成數高達九成;客戶並可尊享與按揭相連之高存息戶口,存息與按息一致,高存息現達3.5%,客戶善用高存息收入抵銷按息支出,有效降低淨按息。
王美鳳說,今年銀行對樓按持正面積極取態,上述兩個計劃各具優勢,讓客戶可有更多元化按揭選擇,相信可為「朗天峰」買家提供最適切按揭配套;加上客戶可選擇透過按保計劃申請高達九成按揭,以「朗天峰」首張價單入場價264.8萬元計算,即低至一成基本首期約26萬多元即可輕鬆入場。
首5名中原客戶享「4萬元嘉里酒店餐飲禮券」
中原地產為回饋客戶支持,特別為「朗天峰」買家送出置業優惠。由開售日至今年2月28日,經該行購入「朗天峰」一手單位的首5名買家,將可獲贈「4萬元嘉里酒店餐飲禮券」,優惠總值合共20萬元。先到先得,送完即止。
朗天峰最快周末首輪開售 中原按揭與中原地產推按揭及置業優惠|元朗新盤
中原地產及中原按揭特別為「朗天峰」買家呈獻全新按揭及置業優惠。
付款計劃及折扣
(A) 120天現金優惠付款計劃(照售價減6%)
1. 樓價 5% (臨時訂金)於簽署臨時買賣合約時支付。
2. 樓價 95% (樓價餘額)於簽署臨時買賣合約後120天內支付。
(B) 90天「輕鬆置業」一按貸款現金優惠付款計劃(照售價減3%)
1. 樓價 5% (臨時訂金)於簽署臨時買賣合約時支付。
2. 樓價 95% (樓價餘額)於簽署臨時買賣合約後90天內支付。
(C) 建築期付款計劃(照售價減4%)
1. 樓價5% (臨時訂金)於簽署臨時買賣合約時支付。
2. 樓價95% (樓價餘額)須於賣方就其有能力將物業有效地轉讓予買方一事向買方發出通知的日期後的14天內支付。
*受制於合約,如買方選擇支付條款(C)並提前於簽署臨時買賣合約的日期後120日內或之前及於買賣合約訂明的成交日之前按買賣合約條款付清樓價和其他款項,買方可根據以下列表獲賣方送出樓價2%現金回贈優惠,惟買方必須於付清樓價之前不少於30天以書面通知賣方買方將會付清樓價餘額。賣方會將現金回贈直接用於支付相關住宅物業部份的樓價額餘款或以賣方認為合適的其他方式支付予買方。
售價獲得折扣的基礎
「雙城四區機遇」優惠
買方可獲額外2%售價折扣優惠作為「雙城四區機遇」優惠。
「元朗市中心黃金圈」優惠
買方可獲額外2%售價折扣優惠作為「元朗市中心黃金圈」優惠。
「元朗南城中森」優惠
買方可獲額外2%售價折扣優惠作為「元朗南城中森」優惠。
「Kerry Homes 會員」優惠
買家如屬Kerry Homes會員,可獲額外1%售價折扣優惠。
「印花稅津貼」優惠
買方可獲額外3%售價折扣優惠作為「印花稅津貼」優惠。
「煥活美好時光」優惠
買方可獲額外2%售價折扣優惠作為「煥活美好時光」優惠。
傢具優惠
如若買家不選擇傢具套餐優惠,可獲得現金回贈,一房單位將獲得18,000元現金回贈,而兩房單位將獲得28,000元現金回贈。
會所、生活配套、交通及校網
「朗天峰」整體規劃及建築設計由國際知名團隊呂元祥建築師事務所操刀,貫徹事務所以生命為本、親自然的設計理念,大堂入口以「Gateway to Nature」為設計主題,住戶穿過懸浮式的落地大玻璃會所抵達中央庭園,即被水景園林包圍,營造翠綠怡人的氛圍,讓住戶猶如置身大自然之中。整體建築設計以現代簡約線條為主,配搭淺色、以自然為主題的選材,巧妙演繹都市建築與自然環境的和諧共存。
園林式主題會所「Club HAVA」則由著名團隊ARK Associates Limited負責設計,會所設計結合classic及nature的特點,營造出富有經典氣息的現代感氛圍,同時令人置身於自然慢活、輕鬆有趣的感覺 。項目園林連同會所面積接近7萬方呎,提供超過25項設施,包括寵物樂園、燒烤樂園、約400米緩跑徑、池畔宴會廳、24小時全天候健身室、休閒共享區、最長約25米園林式游泳池等。當中的創意共享天地設有可作為KOL網紅房的多用途空間。
生活配套、交通及校網
「朗天峰」鄰近已有超級市場、便利店、集運自提點,購買日常用品十分方便。元朗區內設有大型「YOHO系」商場,由YOHO MALL形點、YOHO MIX元點及YOHO PLUS加點組成,總零售樓面面積達120萬方呎,合共提供逾430間商舖,亦有千色廣場及元朗廣場等,絕對能夠滿足住客的購物需求。元朗更是不少港人假日覓食必到之處,平價小食以至名牌食店均有選擇。至於元朗文化康樂大樓亦已啟用,集圖書館及體育館於一身,為區內居民提供一個閱讀、運動和消閒好去處。
交通方面,「朗天峰」鄰近的蝶翠峰(十八鄉路)巴士站提供4條九巴路線,當中68E及68F為每日服務,前者往港鐵青衣站,途經港鐵元朗站、YOHO MALL及大欖隧道轉車站;後者往來元朗峻巒(PARK YOHO),途經港鐵元朗站、YOHO MALL;而268C及968分別前往觀塘碼頭及銅鑼灣(天后),不過只於指定時段提供服務。此外,有公共小巴提供元朗站至大樹下西路線。
另外,住客可於蝶翠峰(大棠路)巴士站乘搭港鐵接駁巴士K66,往來港鐵朗屏站及元朗教育路一帶。由屋苑步行約15分鐘亦可到達港鐵元朗站,轉乘其他公共交通工具出入市區。
校網方面,「朗天峰」屬於14小學校網,中學則為元朗區。















































































